C93 Visualisierung Aussen

2007 | Wohnen

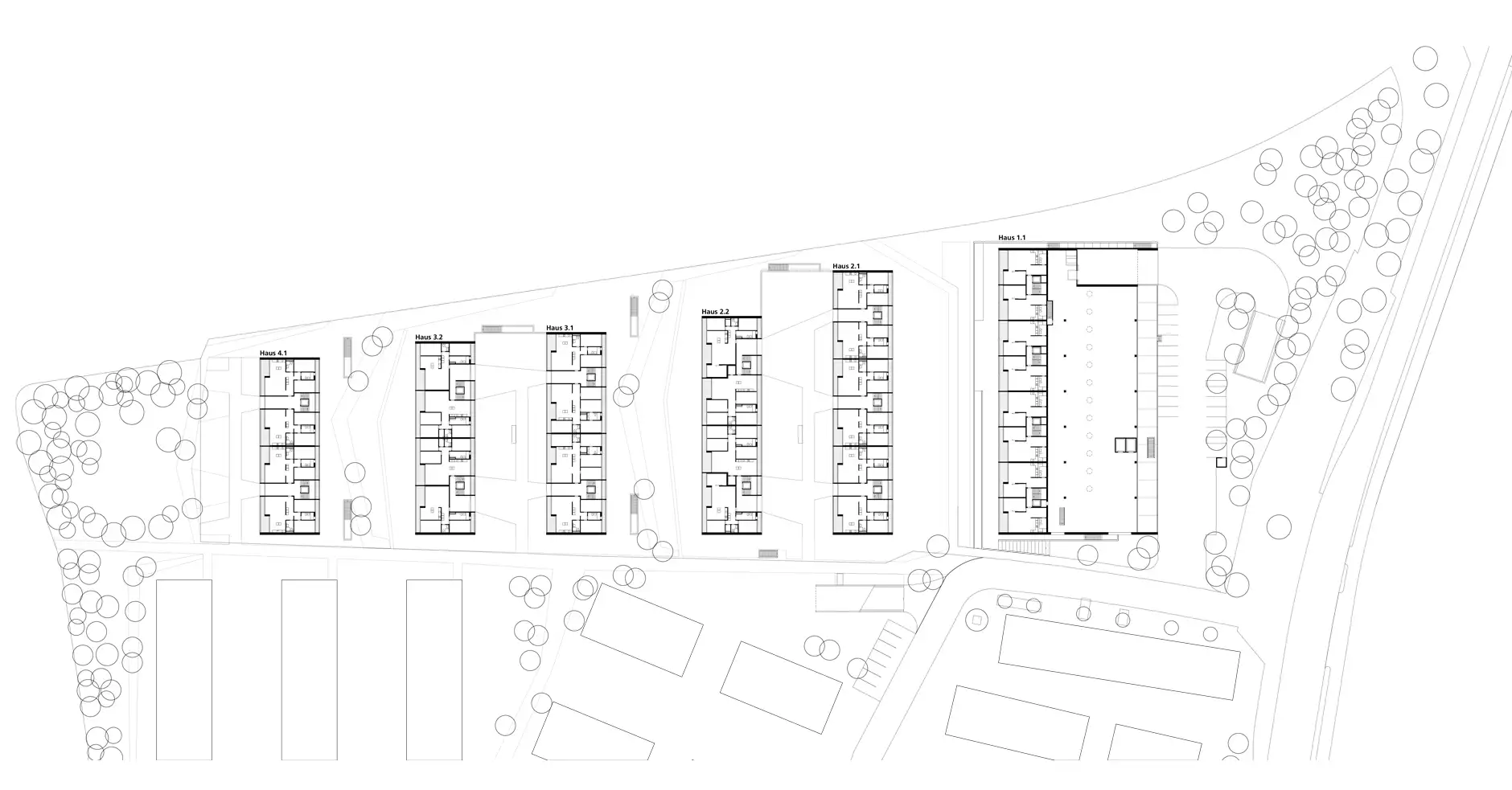
Wohnpark Eichwiesen | Fällanden

Die Aufgabe bestand darin, ein neues Quartier mit ca. 275 Wohnungen und 1500 m² Ladenfläche zu planen. Der Perimeter liegt im Spannungsfeld der historisch gewachsenen Kernzone und der in den letzten Jahren entstandenen Überbauungsstruktur um die "Letzacherstrasse" und der Stichstrasse "Im Rüeblig" in Fällanden. Die möglichst nahtlose Integration der Überbauung in den bestehenden Kontext, die Einbindung loser Strukturen und die Auseinandersetzung mit quartier-planerischen Vorgaben waren Schwerpunkte der Planung.

Der entwerferische Ausgangspunkt ist einerseits, die auf dem Grundstück vorzusehenden Verbindungswege und Platzräume als identitätsstiftende Elemente der Überbauung zu planen. Andererseits soll auf Grund der Grösse der Siedlung und des dörflichen Kontextes eine sozialverträgliche Strukturierung der Wohnsiedlung angestrebt werden. Die Wohnbauten werden dabei paarweise zu Wohnhöfen zusammengefasst, die jeweils einen direkten Zugang zur öffentlichen Erschliessungsstrasse haben.

Architektonisch hat die Siedlung hohen gestalterischen Ansprüchen zu genügen und soll in zeitgemässer Formensprache umgesetzt werden.

Auf der Grundlage des von uns erarbeiteten Masterplans planen verschiedene Architekturbüros die Gesamtüberbauung. Frei Architekten AG realisierten ca. die Hälfte des Bauvolumens.

Impressionen
Pläne
Kenndaten
C93 Visualisierung Aussen
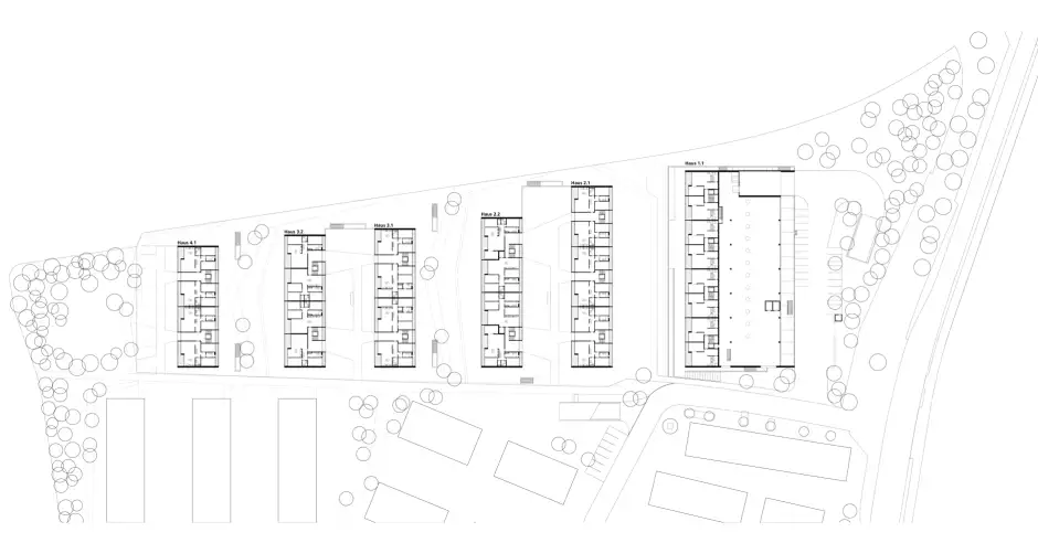
C93 B HP Schwarzplan
C93 B HP Gesamtplan Grundriss Erdgeschoss
C93 B HP Gesamtplan Grundriss Einstellhalle
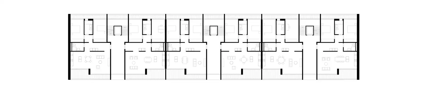
C93 B HP Haus 11 Grundriss Erdgeschoss
C93 B HP Haus 11 Grundriss 2 Obergeschoss
C93 B HP Haus 11 Grundriss Attika
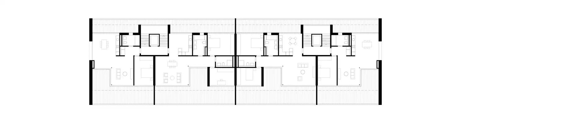
C93 B HP Haus 21 Grundriss Erdgeschoss
C93 B HP Haus 21 Grundriss Obergeschoss
C93 B HP Haus 21 Grundriss Attika
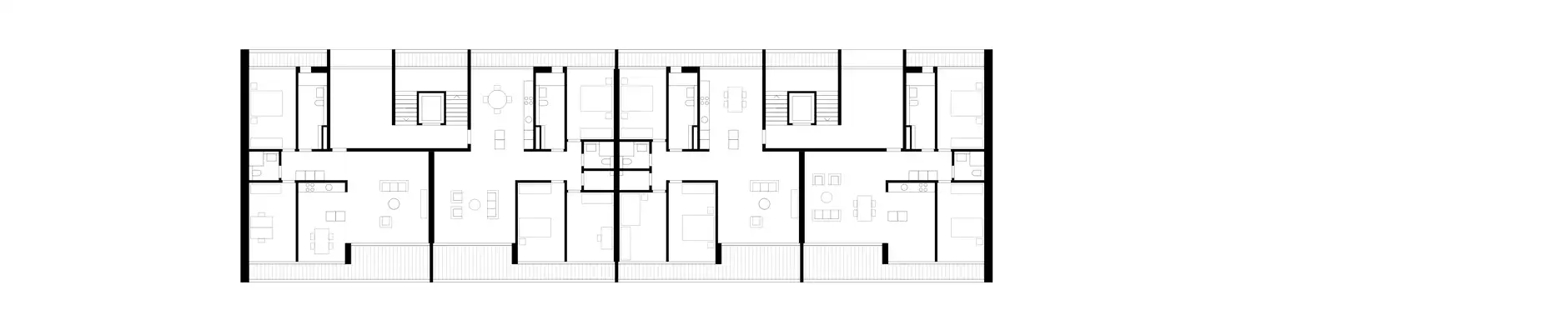
C93 B HP Haus 22 Grundriss Erdgeschoss
C93 B HP Haus 22 Grundriss Obergeschoss
C93 B HP Haus 22 Grundriss Attika
C93 B HP Haus 31 Grundriss Erdgeschoss
C93 B HP Haus 31 Grundriss Obergeschoss
C93 B HP Haus 31 Grundriss Attika
C93 B HP Haus 32 Grundriss Erdgeschoss
C93 B HP Haus 32 Grundriss Obergeschoss
C93 B HP Haus 32 Grundriss Attika
C93 B HP Haus 41 Grundriss Erdgeschoss
C93 B HP Haus 41 Grundriss Obergeschoss
C93 B HP Haus 41 Grundriss Attika
C93 B HP Haus 22 Schnitt
C93 B HP Haus 22 Fassade West
C93 B HP Haus 11 Fassade Ost
C93 B HP Haus 11 Fassade West

Alle Pläne anzeigen

Typ

Wohnen

Ort

Fällanden

Auftraggeber

Allreal GU AG

Fertigstellung

2007

Gebäudevolumen

46'123 m³

Kopiert!