E27 Foto Aussen Westfassade

2012 | Wohnen

Überbauung Dorfmitte | Seengen

Eine optimale Kombination aus Zentrumsnähe und Wohnen im Grünen am entspannenden Hallwilersee bieten die 22 Eigentumswohnungen in Seengen. Die beiden Baukörper stehen versetzt zueinander und lassen dadurch attraktive Freiräume entstehen. Die detailliert geplante, dunkle Naturschieferfassade verleiht den Gebäuden einen edlen und zeitlosen Ausdruck.

3.5- und 4.5- Zimmerwohnungen gliedern sich um die kompakte Kernzone. Alle Wohnungen bieten eine optimale Ausrichtung nach Südwest, Richtung Hallwilersee. Zu den zwei Gebäudevolumen wurden zwei weitere Volumen auf dem Grundstück positioniert. Die Einstellhallenzufahrt, welche ebenfalls Standort für Container und Velos ist und ein Pavillon, der den Bewohnern als gedeckter Sitzplatz, unmittelbar vor dem Spielplatz, und als Aufenthaltsbereich dient.

Impressionen
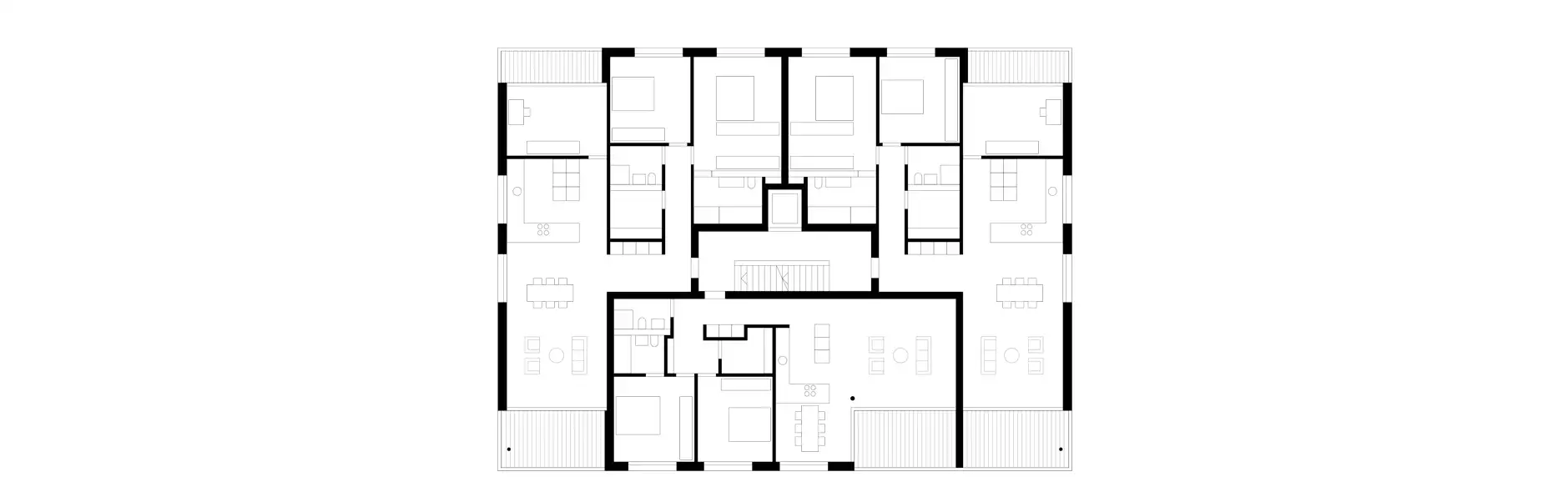
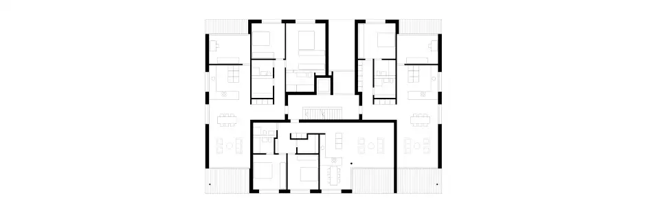
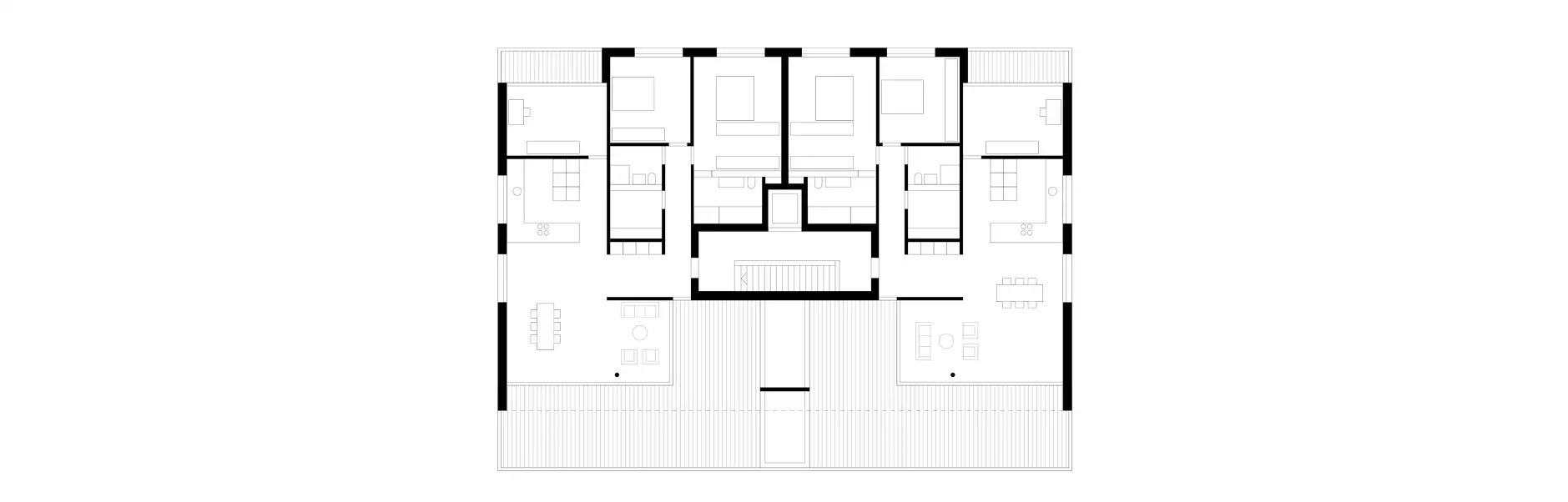
Pläne
Kenndaten
E27 Foto Aussen Südostfassade
E27 Foto Aussen Südfassade
E27 Foto Aussen Velounterstand
E27 Foto Aussen Ostfassade Eingang
E27 Foto Aussen Fassade
E27 HP Schwarzplan
E27 HP Situation
E27 HP Grundriss Erdgeschoss
E27 HP Grundriss Obergeschoss
E27 HP Grundriss Attika
E27 HP Schnitt A
E27 HP Schnitt B

Alle Pläne anzeigen

Typ

Wohnen

Ort

Seengen

Auftraggeber

Grundmann Immobilien AG

Fertigstellung

2012

Gebäudevolumen

17‘947 m³

Kopiert!