I11 HP Schwarzplan

2022 | Wettbewerbe

Werkhof Birch | Schaffhausen

Das Werkhofareal befindet sich am Übergang Mühlental - Merishausertal und fügt sich in eine Abfolge von verschiedenen Siedlungsabschnitten ein, die sich perlenartig in den langgezogenen Tälern aufreihen. Verkehrstechnisch wird das Gebiet zum einen von der Autobahn, die von Schaffhausen nach Deutschland führt, und zum anderen von der Hauptstrasse, die sich vor dem Werkhofareal beim Kreisel in zwei Achsen gabelt, geprägt. Die umliegenden Industriebauten weisen mehrheitlich grosse, längliche Dimensionen auf. Zudem richten sich diese an den umliegenden Verkehrsachsen aus. Die beiden Neubauten des Werkhofs nehmen die Grossmasstäblichkeit der bestehenden Industriebauten auf und orientieren sich parallel zur angrenzenden Mühletalstrasse. Der prägende Kopfbau markiert das Areal, gibt diesem einen eigenständigen, unverkennbaren Charakter und setzt einen Merkpunkt in der Abfolge der verschiedenen Industrie-, Gewerbeareale und Wohngebiete.

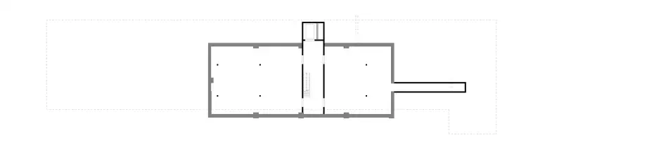
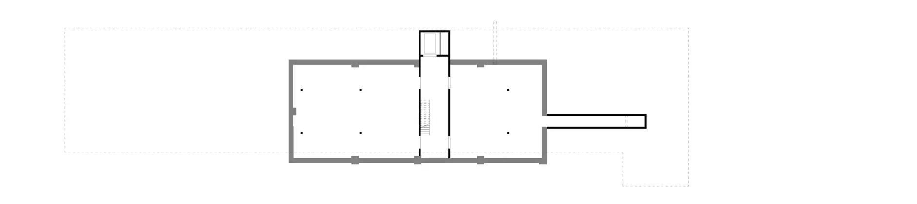
Das Gebäude ist in verschiedene Nutzungsbereiche eingeteilt, die in der Gebäudeform aussen abgebildet werden. Zugänglich resp. befahrbar sind die Gebäude von der mittleren Fahrgasse aus. Die südlichen Gebäudeenden orientieren sich hingegeben parallel zur Gasse und sind von Süden her zugänglich. Das Gebäude an der Strasse zeigt mit Sprüngen in der Gebäudehöhe und unterschiedlicher Materialisierung die Nutzungsunterteilung. Grundsätzlich ist für die Fassade eine horizontale Holzschalung vorgesehen. Als Abschluss gegen das Terrain verläuft ein Betonsockel um das Gebäude. Die Erhöhung des Betonsockels am nördlichen Ende bildet einen massiven Abschluss des Areals. Beim Garderoben-Büro-Trakt am Südende findet mit der Eternitfassade ein Materialwechsel und gleichzeitig eine Betonung des Kopfbaus statt. Das westliche hintere Gebäude weist keine Versprünge in der Höhe auf. Auch hier kommt es beim nördlichen Ende zum Wechsel auf Beton und gleicht sich somit dem anderen Gebäude an. Beide Gebäude werden in der Mittelgasse nebst der Holzfassade auch durch die Torfront geprägt, die fast über die gesamte Gebäudelänge reicht.

Impressionen
Pläne
Kenndaten
I11 Visualisierung Aussen 01
I11 Visualisierung Aussen 02
I11 HP Schwarzplan
I11 HP Situation
I11 HP Grundriss Erdgeschoss
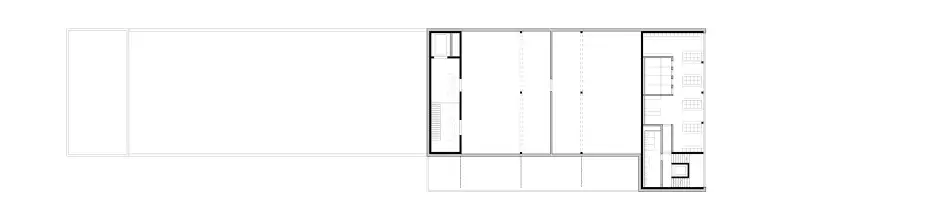
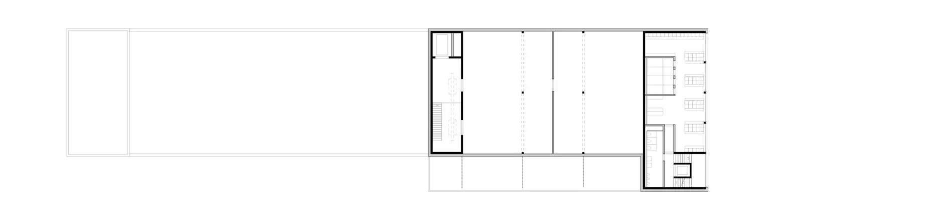
I11 HP Grundriss 1 Obergeschoss
I11 HP Grundriss 2 Obergeschoss
I11 HP Grundriss Untergeschoss
I11 HP Querschnitt 1
I11 HP Querschnitt 2
I11 HP Querschnitt 3
I11 HP Längsschnitt 1
I11 HP Längsschnitt 2
I11 HP Fassade Nord
I11 HP Fassade Ost
I11 HP Fassade Süd
I11 HP Fassade West
I11 HP Detailschnitt

Alle Pläne anzeigen

Typ

Wettbewerbe

Ort

Schaffhausen

Auftraggeber

Stadt Schaffhausen

Kopiert!