2016 | Wettbewerbe
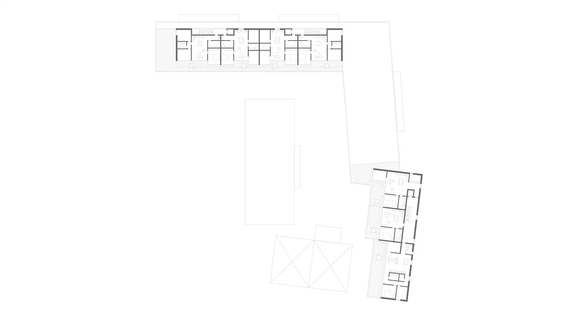
Mehrfamilienhaus Girardstrasse | Grenchen
Typ
Wettbewerbe
Ort
Grenchen
Auftraggeber
Privat
Gebäudevolumen
44'914 m³
Hauptnutzfläche
7‘613 m²
2016 | Wettbewerbe
Typ
Wettbewerbe
Ort
Grenchen
Auftraggeber
Privat
Gebäudevolumen
44'914 m³
Hauptnutzfläche
7‘613 m²