I39 Visualisierung Aussen 01 Header

2023 | Wettbewerbe

Bleichemattstrasse | Aarau

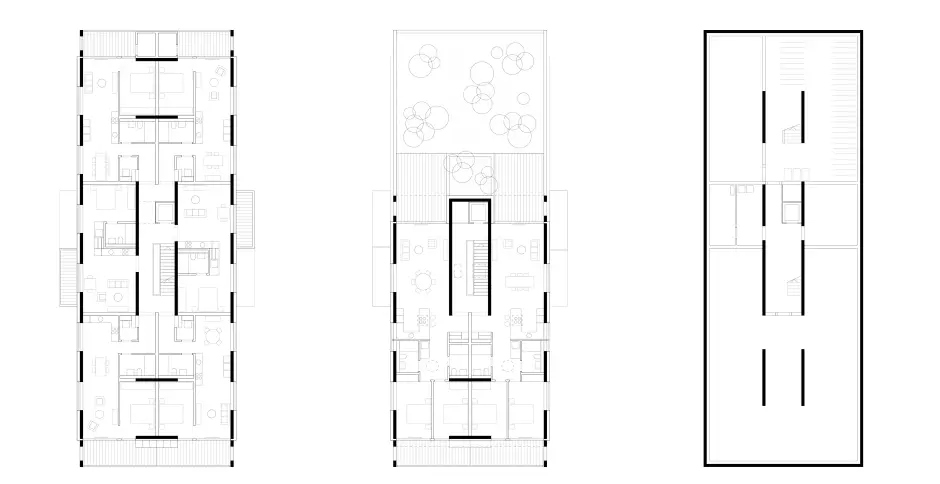
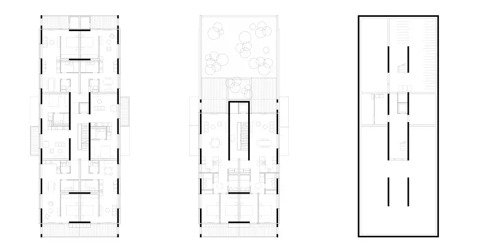
Das zu bebauende Grundstück liegt direkt am WSB-Bahnhof und ist aufgespannt zwischen der Bleichemattstrasse und den Gleisen der WSB. Um die Probleme der nichtionisierenden Strahlung und dem Lärm der WSB möglichst zu minimieren, wird ein schlanker und tiefer Baukörper vorgeschlagen, der in vier Meter Grenzabstand an der Bleichemattstrasse steht und zu den Gleisen der WSB einen maximalen Abstand einhält. Dadurch fügt sich der Neubau in die entlang der Bleichemattstrasse, mit leicht unterschiedlichen Abständen zur Strasse, aufgereihten Bauten ein. Er wird ein selbstverständlicher und selbstbewusster Teil des Ensembles. In der Höhe tritt der Bau als Sechsgeschosser mit Attika in Erscheinung. Im rückwärtigen Bereich verbleibt ein grosser zusammenhängender Grünbereich, der mit hochstämmigen Bäumen bepflanzt wird und als «Filter» zu den Gleisanlagen dient.

Das Gebäude ist als klassisches «Baumeisterhaus» konzipiert. Das heisst alle konstruktiven, statischen und gestalterischen Massnahmen folgen einer inneren Logik und sind nicht das Resultat eines übergeordneten «architektonischen» Anspruchs. Die Architektur ist das Resultat eines intelligenten Entwurfsprozesses bei dem jeder Teil seinen spezifischen, sich aus den Anforderungen ergebenden, Beitrag leistet.

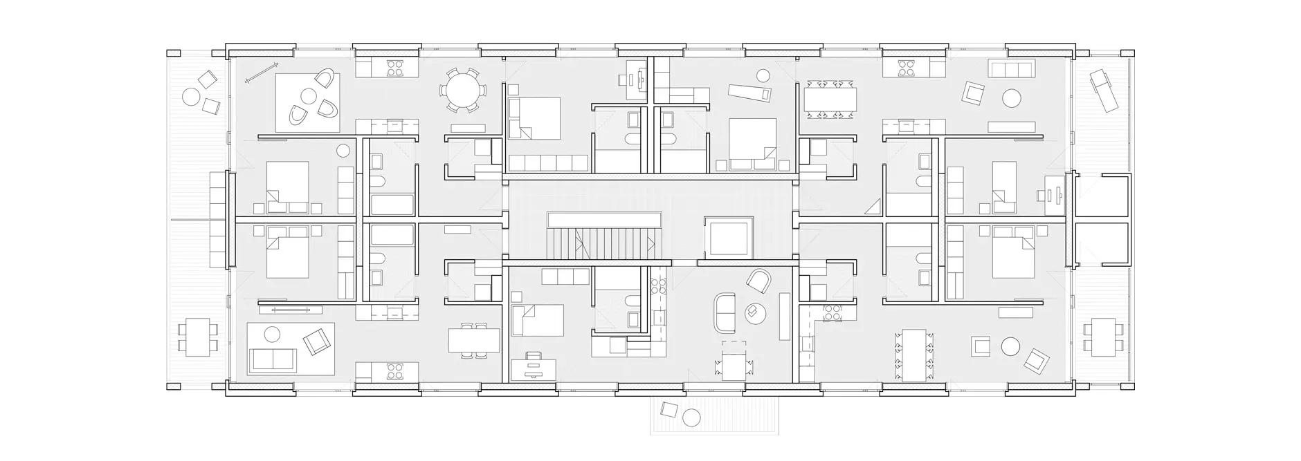
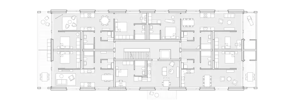
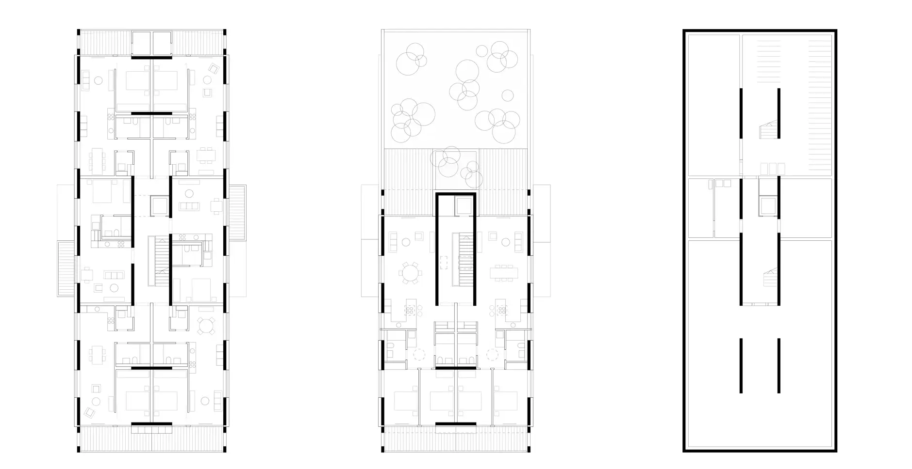
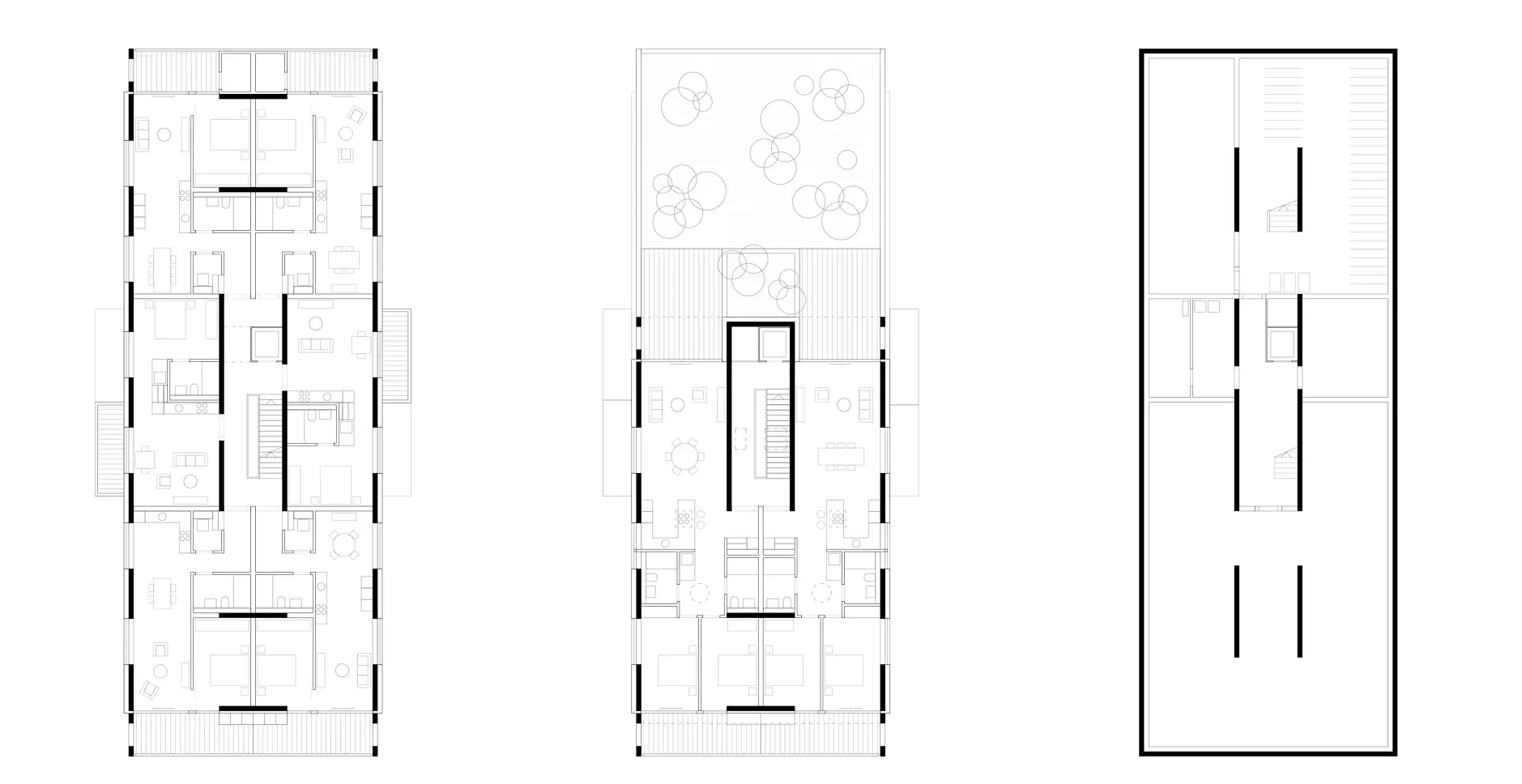
Konkret heisst das Folgendes: Die Tragstruktur in Sichtbeton besteht aus zwei seitlichen Längswänden, die die Fassade bilden, dem mittigen Treppenhaus und vier Querscheiben in der Verlängerung des Treppenhauses. Diese Elemente tragen die Geschossdecken und bleiben mit Ihrer Bretterschalung sichtbar.

Die Fassade wird im Bereich der Wohnungen, aber ohne die drei Balkone, aussen gedämmt und mit einem Alu-Wellblech verkleidet. Die seitlichen Fassaden werden zusätzlich gegliedert durch die Balkone der 1 ½-Zimmerwohnungen deren Verteilung so gewählt wurde, dass eine maximale Aussicht möglich ist. Die stirnseitigen Fassaden haben raumhohe Fenster und einen vorgelagerten Balkon mit einem verzinkten Staketengeländer, das durch die Tiefe der Staketen den Einblick verhindert und trotzdem transparent wirkt. Die nichttragenden Innenwände sind mit Seekiefersperrholz verkleidet und die Küche ist im gleichen Material vorgesehen.

Impressionen
Pläne
Kenndaten
I39 Visualisierung Aussen 02
I39 Visualisierung Aussen 03
I39 HP Schwarzplan
I39 HP Situation
I39 HP Grundriss Erdgeschoss
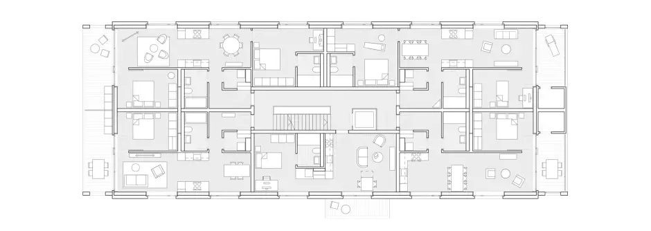
I39 HP Grundrisse 124 Obergeschosse
I39 HP Grundrisse Attika Untergeschoss
I39 HP Querschnitt
I39 HP Längsschnitt
I39 HP Fassade Nord
I39 HP Fassade Ost
I39 HP Fassade Süd
I39 HP Fassade West
I39 HP Grundriss Obergeschoss Möbliert

Alle Pläne anzeigen

Typ

Wettbewerbe

Ort

Aarau

Auftraggeber

Grundmann Immobilien AG

Gebäudevolumen

11'425 m³

Hauptnutzfläche

1'863 m²

Kopiert!