2023 | Wettbewerbe
Artoz-Zeughaus Areal | Lenzburg
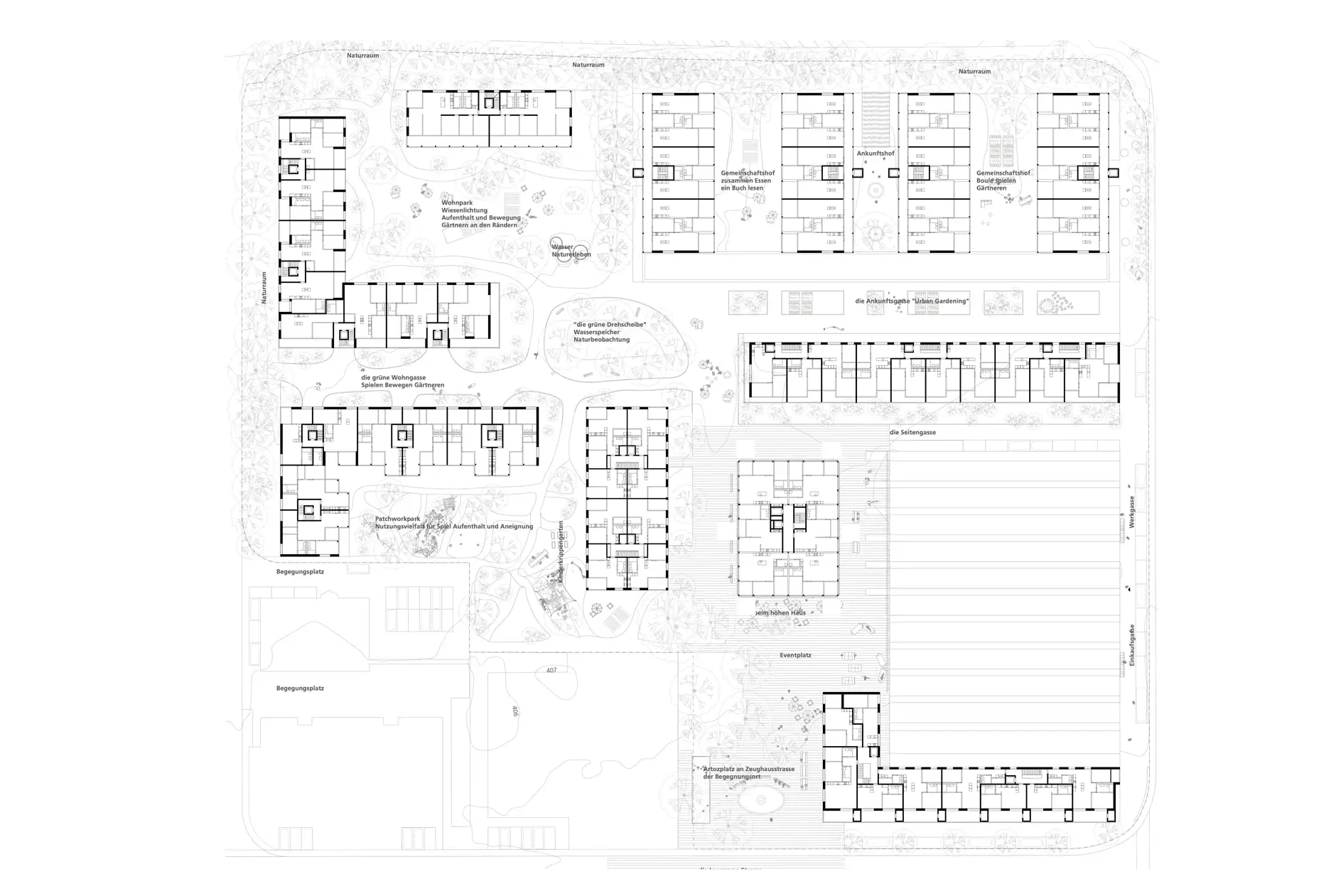
Ein ergänzender Quartierbaustein - Artoz Areal
Die Strukturierung in geometrische Felder beider Areale bildet eine günstige Ausgangslage zur städtebaulichen Weiterentwicklung. Aus der Analyse zum Städtebau wird festgestellt, dass die Voraussetzungen für eine Quartierbildung mit Wohnnutzung heute nur fragmentarisch im Be-stand vorhanden ist. Dazu fehlen insbesondere ein Quartierzentrum, Quartier-Identität, Hierarchisierung der Räume und eine konsistente zusammenhängende Wohnnutzung mit Quartiervernetzung. Der Vorschlag zum städtebaulichen Entwurf versteht sich dementsprechend als Bindeglied und ergänzender Quartierbaustein, welcher der aktuell fragmentierten Wohnstruktur eine neue Zentrumsfunktion mit Vernetzung zum Bestand, zusätzliche Wohnungsdiversität und eine Quartieridentität verleiht.
Quartierplatz Artoz - Zeughaus
Mit dem neuen Quartierbaustein Artoz – Zeughaus wird durch den Quartierplatz als «Konnektor» ein Ort für eine quartierübergreifende Gemeinschaft und Identifikation angeboten. Der Platz bietet nicht nur Raum für Veranstaltungen und Aufenthalt an, sondern verbindet zusätzlich durch seine arealübergreifende Situierung das Artoz- mit dem Zeughausareal. Durch räumliche Hierarchisierung und unterschiedlich ausgestaltete Er-schliessungen, werden attraktive Durchwegungen und neue Vernetzungen mit dem bestehenden Quartier geschaffen. - Mit dem öffentlichen Durch-gang quer durch die Artoz-Werkhalle, entsteht eine direkte Verbindung für Fussgänger vom Quartierplatz als Nutzungsschwerpunkt zum Bahnhof als Knoten der öffentlichen Verkehrsmittel.
Typ
Wettbewerbe
Ort
Lenzburg
Auftraggeber
Lentia Liegenschaften AG