H87 Visualisierung Aussen Strasse

2023 | Wettbewerbe

Areal Weierweg | Buchs

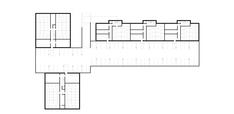
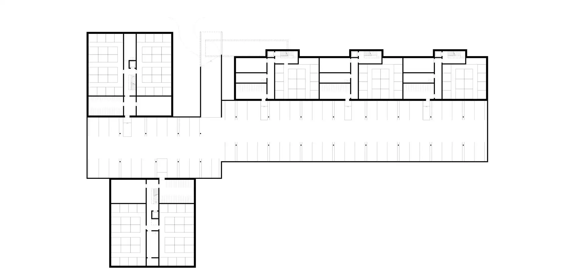
Die zu bebauenden Parzellen befinden sich in der Gemeinde Buchs am Weierweg. Wie sich aus den historischen Karten ableiten lässt, sind ab dem Jahr 1861 die Gebäude im Quartier, jeweils orthogonal zu den Quartierstrassen stehend, entstanden. Im Laufe der Jahre sind die Volumen der Gebäude grösser und die Bebauungen dichter geworden. Die Setzung der Volumen orientiert sich ebenfalls orthogonal zu den Quartierstrassen und in ihrer Grösse in Anlehnung an die umliegenden Bauten. 

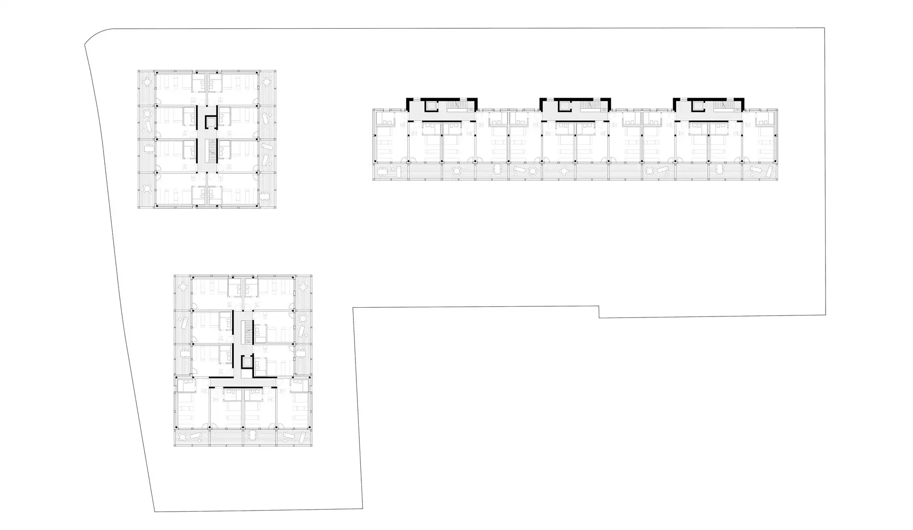
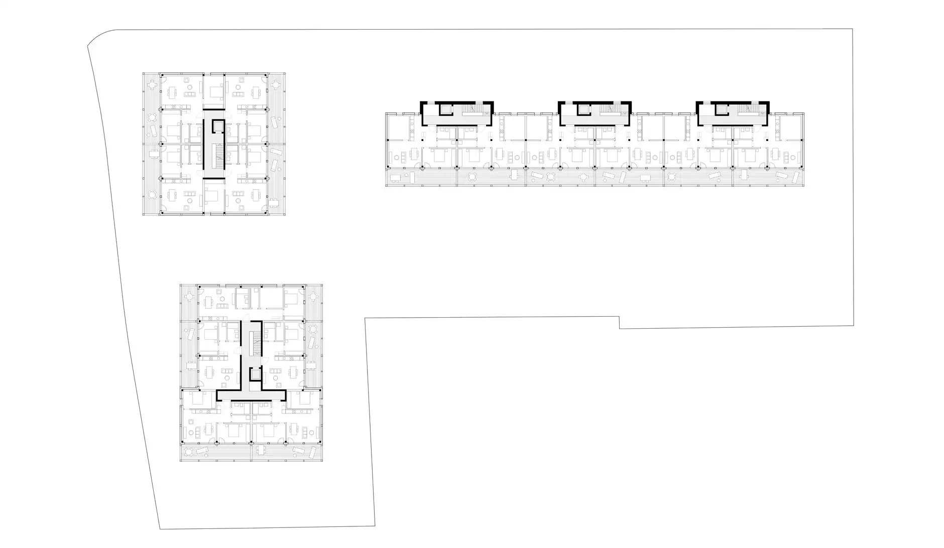
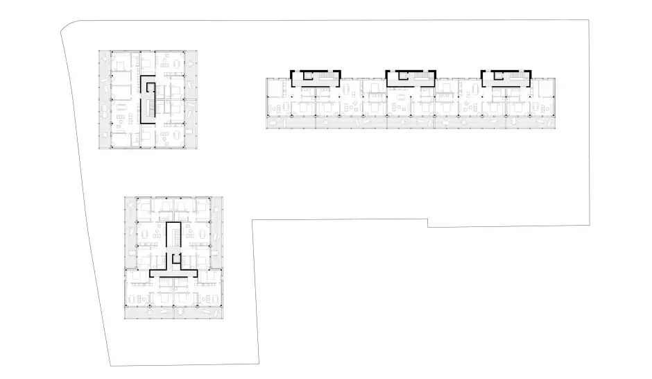
Die bestehenden Grossbauten der Umgebung werden neu mit drei Grossformen zu einem stimmigen Ganzen ergänzt. Der Bau am Webereiweg übernimmt die Dimensionen des bestehenden Baus im Süd-Osten. Die beiden Bauten am Weierweg übernehmen die Proportionen des bestehenden Gebäudes im Osten des Areals. Das Gebäude an der Ecke Webereistrasse und Weierweg wird sechsgeschossig, die beiden anderen Häuser werden viergeschossig geplant. Zwischen den bestehenden Gebäuden und den Neubauten entsteht ein grosszügiger Aussenraum, welcher auch die zentrale Erschliessungsachse bildet.

Die drei Gebäude sind modulartig konzipiert und aufgebaut.  Die Basis bilden jeweils die Module der Junior- und Senior- MOVEments. Aufbauend auf dieser Basis können durch Addieren dieser Module auch konventionelle 2.5 bis 5.5 Zimmerwohnungen geplant werden. Die Positionen der Nasszellen und der Steigzonen erlaubt eine hohe Nutzungsflexibilität, welche sich auch im Wohnungsspiegel abzeichnet. Durch das Zusammenstellen der verschiedenen Grundrisstypen kann man einen beliebigen Wohnungsschlüssel generieren.

Die Gebäude sind als Massivbauten konzipiert mit einer vorgehängten Wand- und Fassadenkonstruktion in Holz. Die vorfabrizierten Balkonplatten sind ebenfalls in Beton. Die Fassaden sind mit Holz verkleidet und fein gegliedert. Die Fenster sind in Holz-Metall vorgesehen. Die einheitliche Materialisierung der Fassaden in Holz fasst die drei Gebäude zu einer Einheit zusammen. 

Impressionen
Pläne
Kenndaten
H87 Visualisierung Aussen Innenhof
H87 HP Schwarzplan
H87 HP Situation
H87 HP Schema Flexibilität
H87 HP 3 D
H87 HP Grundriss Erdgeschoss
H87 HP Grundriss 1 Obergeschoss
H87 HP Grundriss 2 Obergeschoss
H87 HP Grundriss 3 Obergeschoss
H87 HP Grundriss 4 Obergeschoss
H87 HP Grundriss 5 Obergeschoss
H87 HP Grundriss Untergeschoss
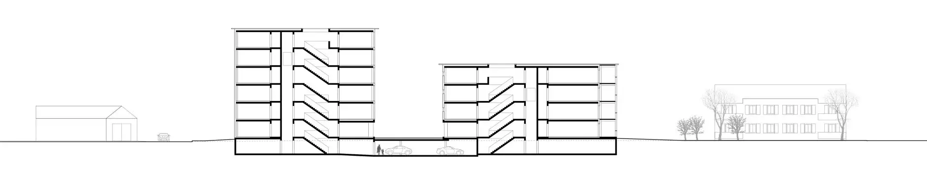
H87 HP Schnitt 1
H87 HP Schnitt 2
H87 HP Schnitt 3
H87 HP Fassade Nord
H87 HP Fassade Süd
H87 HP Fassade West
H87 HP Grundriss 1 100 Obergeschoss Möbliert
H87 HP Grundriss 2 100 Obergeschoss Möbliert
H87 HP Fassadenschnitt

Alle Pläne anzeigen

Typ

Wettbewerbe

Ort

Buchs

Auftraggeber

Halter AG

Gebäudevolumen

29'125 m³

Hauptnutzfläche

4'658 m²

Kopiert!