H71 Visualisierung Aussen 01

2021 | Wettbewerbe

In der Ey | Wangen bei Olten

Die Liegenschaft gehört der römisch-katholischen Kirchgemeinde Wangen an und befindet sich an der Strasse ‚In der Ey‘ mitten in der Ortsbildschutzzone. Auf der Parzelle steht heute ein zweigeschossiges Haus mit Dachgeschoss.  Im Erdgeschoss gibt es eine Gewerbenutzung und in den Obergeschossen Wohnungen.  Das Haus steht mittig auf dem asphaltierten Areal, welches nahtlos mit dem öffentlichen Strassenraum verbunden ist. Südöstlich grenzt die Parzelle an den stark durchgrünten Umschwung der Kirche. Nördlich der Parzelle dominieren Häuser mit privaten Gärten das Dorfbild. Ein Halbwalmdach mit einem für die Umgebung typischen, grosszügigen Dachvorsprung prägt das Aussehen des bestehenden Hauses.

Der vorgeschlagene Neubau positioniert sich an gleicher Stelle wie der bestehende Bau und steht mit seiner Schmalseite zur Strasse. Die Gebäudetiefe von 12m lässt eine elegante Proportion der Stirnfassaden zu. Das Satteldach weist wie der bestehende Bau einen grosszügigen Dachvorsprung auf. Der Neubau übernimmt die vorhandenen Strukturen und gliedert sich gut in die Ortsbildschutzzone ein. Anlehnung an die Vorgärten, welche bei den Häusern in der Umgebung anzutreffen sind, wird das Haus mit einer privaten Gartenanlage umgeben. Durch die vorgeschlagene Gartenmauer entsteht eine klare Zonierung zwischen öffentlichem und privatem Raum.

Impressionen
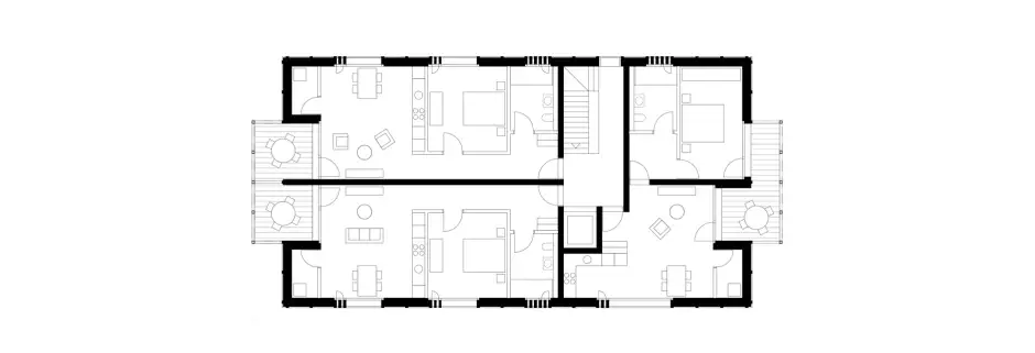
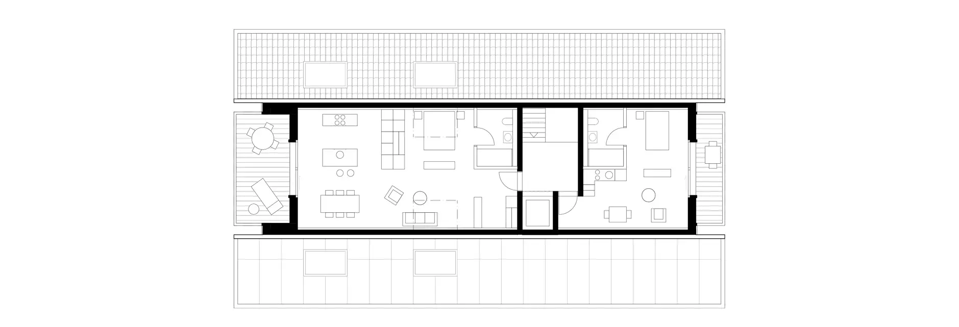
Pläne
Kenndaten
H71 Visualisierung Aussen 01
H71 HP Schwarzplan
H71 HP Grundriss Erdgeschoss
H71 HP Grundriss Obergeschoss
H71 HP Grundriss Dachgeschoss
H71 HP Grundriss Untergeschoss
H71 HP Schnitt
H71 HP Fassade Nord
H71 HP Fassade Ost
H71 HP Fassade Süd

Alle Pläne anzeigen

Typ

Wettbewerbe

Ort

Wangen bei Olten

Auftraggeber

Stiftung Marienheim

Wettbewerb

1. Rang, 2021

Gebäudevolumen

5'555 m³

Kopiert!