H68 Visualisierung Aussen 03

2021 | Wettbewerbe

ÜB Oberstadt | 2. Etappe | Aarburg

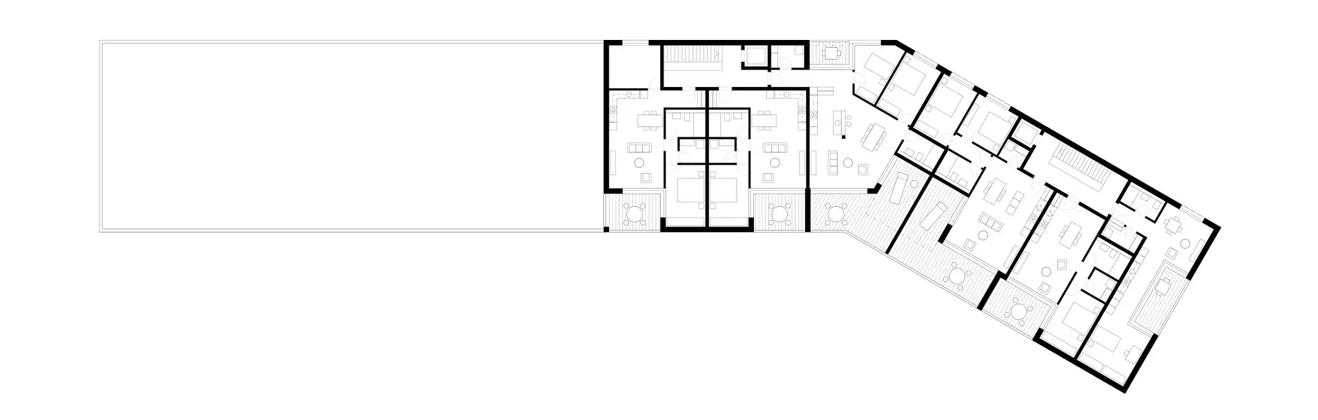
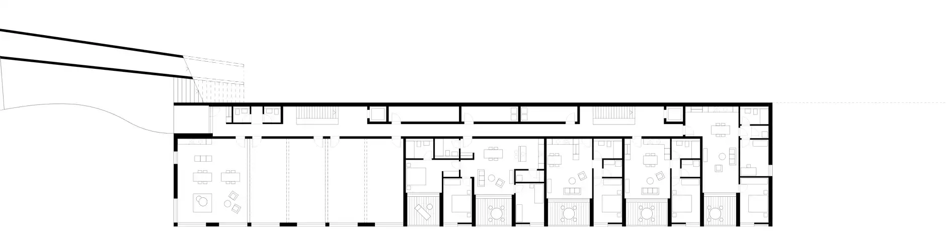
Über das ganze Areal besteht ein rechtsgültiger Gestaltungsplan. Der Wettbewerb umfasst die Baufelder D, E, F. Die Häuser D und E haben ein auf dem Niveau des vorgelagerten Platzes liegendes Sockelgeschoss, das als Eingangsgeschoss dient. Im Haus F liegt der Eingang ebenfalls auf Platzniveau, führt aber ins zweite Vollgeschoss. Darunter liegt das erste Vollgeschoss das hangseitig unter Terrain liegt. Die Anordnung der drei Häuser schafft einen attraktiven Platz und eine klare Adressierung. Die klare Vorgabe betreffend Baulinien und Geschossigkeit, die strikte Vorgabe betreffend zu erzielender aGF pro Baufeld und die Anforderungen betreffend Ausformulierung der Sockelgeschosse, legen die Volumetrie und Positionierung der drei Häuser weitestgehend fest. 

Alle drei Häuser haben eine klare, durchgehende Tragstruktur. Die Fassaden sind mit einer inneren Schale in Backstein, einer Wärmedämmung und einer vorgehängten Fassade in Holz geplant. Alternativ kann auch die ganze Fassade als vorgefertigtes Element in Holz ausgeführt werden.

Die drei Häuser unterscheiden sich sowohl in ihrer architektonischen Ausformulierung als auch in ihrer Farbgebung. Haus D hat eine vertikale Strukturierung mit variierenden Abständen und nicht über alle Geschoss linear durchlaufender Anordnung. Haus E ist dem gegenüber horizontal strukturiert wobei die horizontalen Bänder zusätzlich vertikal gegliedert werden. Haus F ist mit einer horizontalen und vertikalen Primärstruktur konzipiert mit raumhohen Füllungen in Form von Fenstern, Schiebeläden, geschlossenen Wandpartien und Loggien.

Impressionen
Pläne
Kenndaten
H68 Visualisierung Aussen 01
H68 Visualisierung Aussen 02
H68 HP Schwarzplan
H68 HP Situation
H68 HP Grundriss Ebene 0
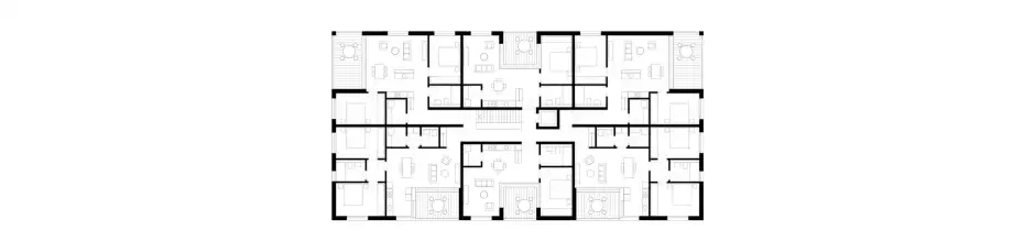
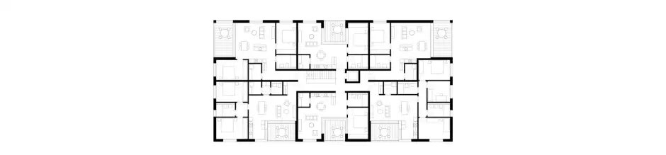
H68 HP Haus D 1 bis 3 Obergeschoss
H68 HP Haus D Attika
H68 HP Haus E 1 Obergeschoss
H68 HP Haus E 2 bis 3 Obergeschoss
H68 HP Haus E Attika
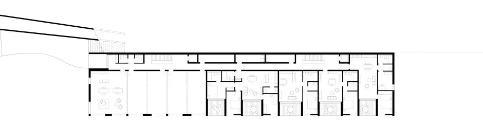
H68 HP Haus F 1 Obergeschoss
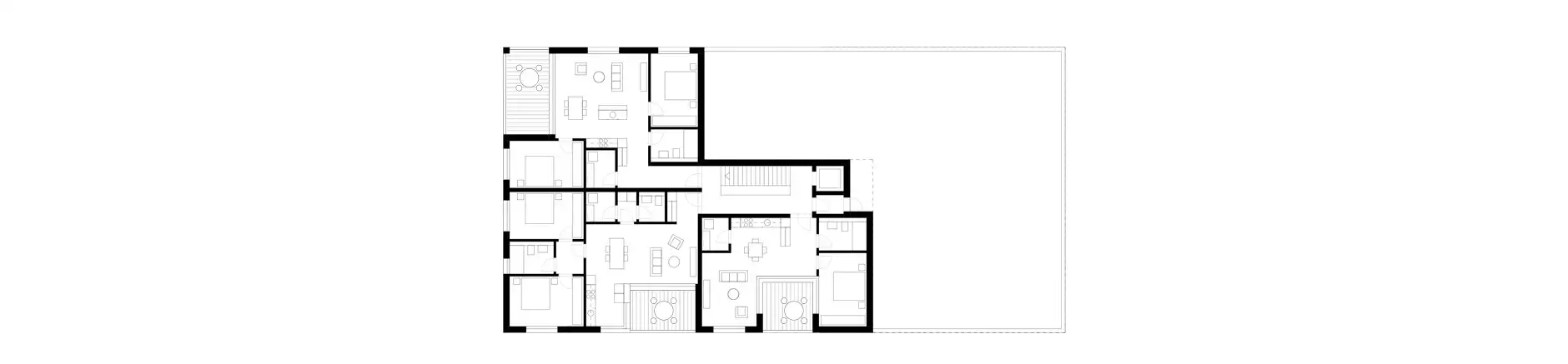
H68 HP Haus F Attika
H68 HP Fassade Süd Häuser D und E
H68 HP Fassade Süd Haus F
H68 HP Fassadenschnitt Haus D
H68 HP Fassadenschnitt Haus E
H68 HP Fassadenschnitt Haus F

Alle Pläne anzeigen

Typ

Wettbewerbe

Ort

Aarburg

Auftraggeber

Artemis Immobilien AG

Gebäudevolumen

31'180 m³

Hauptnutzfläche

6'245 m²

Kopiert!