2010 | Wettbewerbe
Überbauung Gleis Nord | Lenzburg
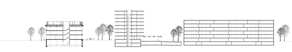
Das Entwickeln von differenzierten Stadträumen, das abwechslungsreiche Nebeneinander von Stadtraum und Grünraum und die Höhenstaffelung der Gebäude untereinander sind die gestaltungsplanerischen Vorgaben. Das städtebauliche Gesamtkonzept betrachtet diese Eckpfeiler als Grundlage und erzeugt durch ein neu interpretiertes Grünraumkonzept ein städtisches Quartier am Übergang zum Landschaftsraum des Aarbachs, welcher bis tief ins Zentrum spürbar ist. Die grosse Baumasse des Quartiers Gleis Nord ist mit dem neuen Projekt in die Stadtstruktur der Stadt Lenzburg eingepasst. Das Projekt schafft ein Miteinander von umgenutzter Industriestruktur, städtischer Dichte und Landschaftsraum, welche den Bewohnern, Beschäftigten und Besuchern ein Quartier mit hoher Identität und Aufenthaltsqualität bietet. Der Planungsperimeter wird als zusammenhängende Einheit betrachtet und durch ein übergeordnetes Grünraumkonzept vernetzt.
Typ
Wettbewerbe
Ort
Lenzburg
Auftraggeber
Losinger Construction AG