H11 Visualisierung Aussen Bahnhof

2018 | Wettbewerbe

Überbauung Bahnhof Nord | Olten

Der Ort ist geprägt durch folgende Elemente: Im Osten das Gleisfeld der SBB, im Norden die Betriebszentrale der SBB und im Westen das stark bewaldete Aareufer, das den Blick und die Bezugnahme auf die Aare verunmöglicht. Im Süden liegt der Bahnhofplatz, der aufgrund der zurzeit fehlenden räumlichen Fassung noch wenig attraktiv ist.

Diese Ausgangslage führt dazu, dass es für das zu projektierende Areal eigentlich keine relevanten Bezugspunkte gibt. Das neue Gebäude muss sich sozusagen selber genügen. Es braucht daher eine gewisse Kraft und Präsenz, um dem Ort eine unverwechselbare Identität zu verleihen.

Das städtebauliche Konzept sieht zwei in der Höhe abgestufte Gebäude vor. Den Auftakt am Bahnhofplatz bildet das höhere Gebäude, welches geprägt ist durch die zweiseitige Auskragung und dadurch ein markantes Zeichen bildet. Das hintere, niedrigere Gebäude hat demgegenüber nur eine einseitige Auskragung nach Norden. Um auch dem Gebäude der Pallas einen attraktiven Zugang zu verschaffen und um den „Boulevard“ kontinuierlich durch das Areal zu führen, schlagen wir vor auch bei diesem Gebäude eine stirnseitige Auskragung nach Süden zu schaffen. Die Volumetrie der beiden Gebäude ist durch den Gestaltungsplan und die Anforderungen des Programmes weitgehend definiert.

Impressionen
Pläne
Kenndaten
H11 Visualisierung Aussen Zug
H11 Visualisierun Aussen Vordach
H11 Visualisierung Aussen Strasse
H11 HP Schwarzplan
H11 HP Situation
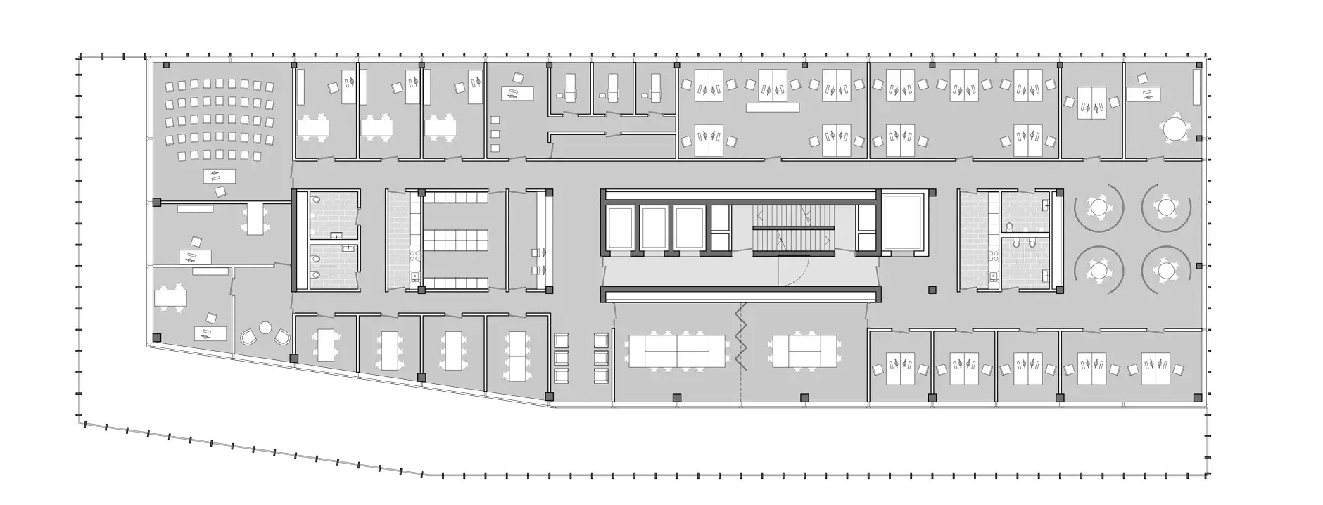
H11 HP Grundriss Erdgeschoss
H11 HP Grundriss 1 2 Obergeschoss
H11 HP Grundriss 3 4 Obergeschoss
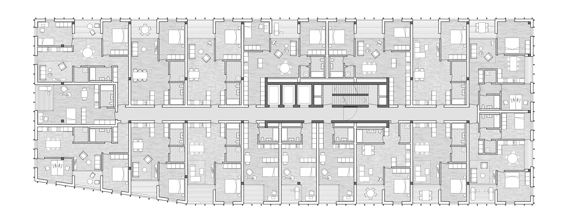
H11 HP Grundriss 5 und 6 8 Obergeschoss
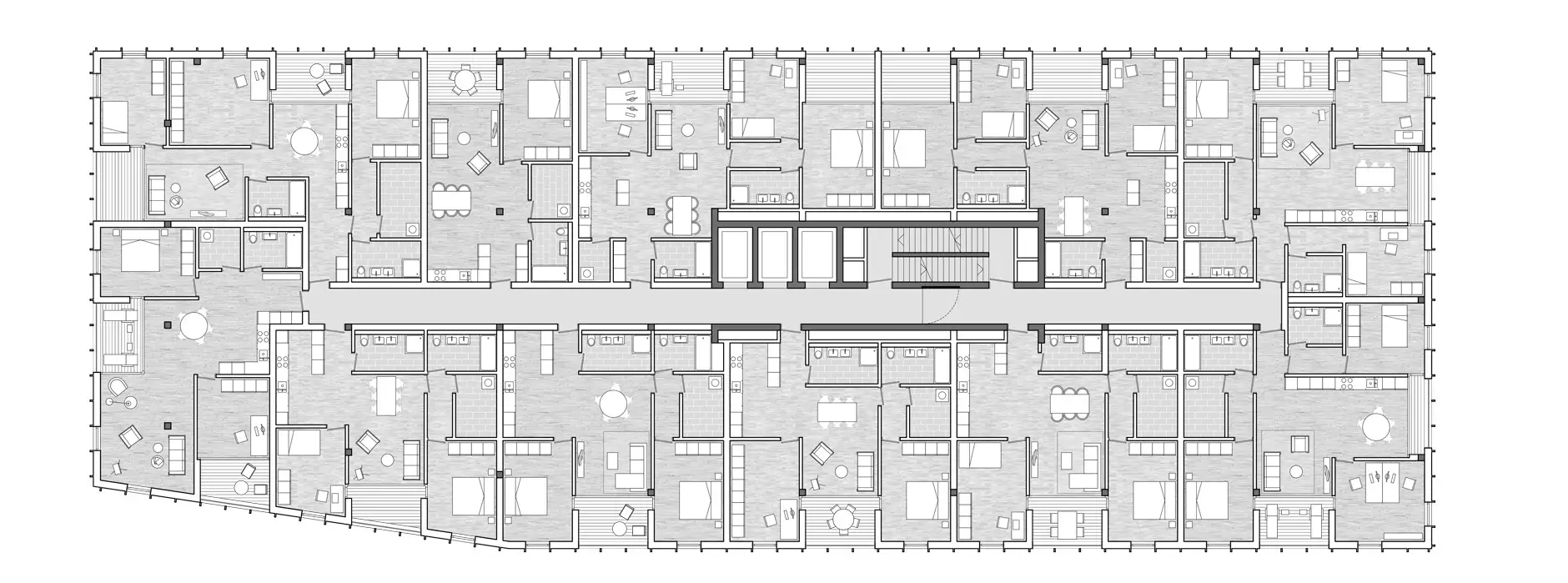
H11 HP Grundriss 9 10 Obergeschoss
H11 HP Grundriss Haus 1 2 Untergeschoss
H11 HP Längsschnitt
H11 HP Fassaden Nord und Süd
H11 HP Fassade Ost
H11 HP Fassade West
H11 HP Fassadenschnitt
H11 HP Grundriss Erdgeschoss Gebäude XII
H11 HP Grundriss 1 Obergeschoss Gebäude XII
H11 HP Grundriss 2 Obergeschoss Gebäude XII
H11 HP Grundriss 5 Obergeschoss Gebäude XII
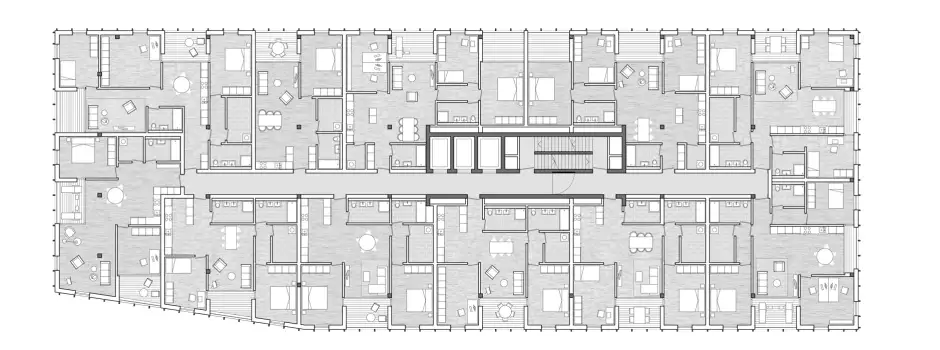
H11 HP Grundriss 10 Obergeschoss Möbliert

Alle Pläne anzeigen

Typ

Wettbewerbe

Ort

Olten

Auftraggeber

Privat

Gebäudevolumen

65'228 m³

Kopiert!