G49 HP VP Schwarzplan

2016 | Wettbewerbe

Überbauung Alte Post | Brugg

Der Projektperimeter befindet sich an der Schnittstelle zwischen der Altstadt und der Stadterweiterung des 19. und 20. Jahrhunderts resp. dem Neumarkt. Das unmittelbare Umfeld ist sehr heterogen mit der denkmalgeschützten ehemaligen Post, der ehemaligen Hufschmiede, dem Haus Müller und weiteren unterschiedlichsten Gebäuden. Das Projekt versucht dieser Vielfalt Rechnung zu tragen. Wir schlagen deshalb keine „Tabula rasa“-Lösung vor, sondern ein Weiterschreiben der Geschichte. Das Haus Müller und die Hufschmiede an der Schulthess Allee werden erhalten. 

Südlich und nördlich dieser beiden Bestandesbauten schlagen wir als Ergänzung zwei neue Gebäude vor. Westlich davon, an der Annerstrasse schlagen wir einen längsrechtigen, 4-geschossigen Baukörper vor, der den Übergang zu den westlich anschliessenden Bauten bildet. Als Erweiterung der ehemaligen Hauptpost sehen wir ein trapezförmiges Gebäude vor, das den Bestandesbau U-förmig umschliesst. Dabei wird der bestehende Bau links und rechts mit einer symmetrischen Erweiterung eingefasst. Der eigentliche Neubau legt sich dabei U-förmig um einen Innenhof der den Bestandesbau auch im Innern wahrnehmbar macht und ihm gleichzeitig seine Dominanz belässt.

Impressionen
Pläne
Kenndaten
G49 Visualisierung Aussen Strasse
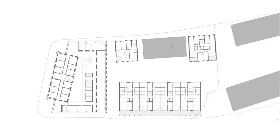
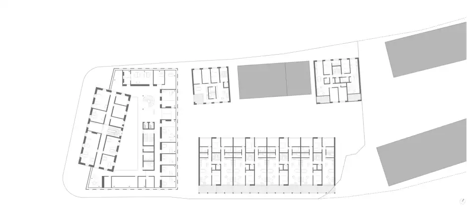
G49 HP VP Schwarzplan
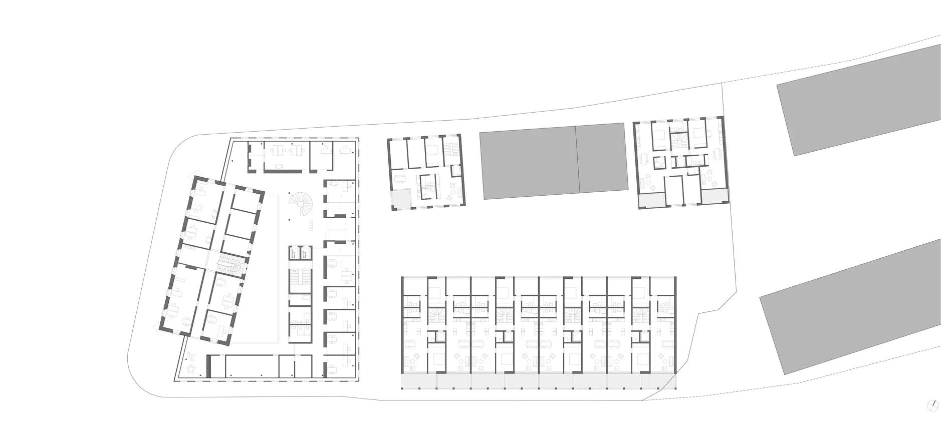
G49 HP VP Situation
G49 HP VP Grundriss Ebene 0
G49 HP Grundriss Ebene 1
G49 HP Grundriss Ebene 2
G49 HP Grundriss Ebene 3
G49 HP Grundriss Ebene 1 Untergeschoss
G49 HP Grundriss Ebene 2 Untergeschoss
G49 HP Grundriss Ebene 3 Untergeschoss
G49 HP VP Schnitte
G49 HP VP Fassaden

Alle Pläne anzeigen

Typ

Wettbewerbe

Ort

Brugg

Auftraggeber

BSS&M Real Estate AG

Hauptnutzfläche

4’315 m²

Kopiert!