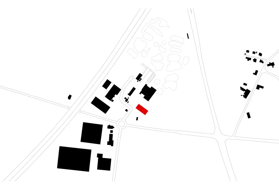
G43 HP Schwarzplan

2015 | Industrie & Gewerbe

Verwaltungsgebäude | Kölliken

Das Projekt sieht ein 4-geschossiges Gebäude vor, welches direkt am Eingang zum weitläufigen Kieswerkareal steht. Das neue Gebäude soll sowohl den Eingang stärken als auch ein markantes Zeichen zur naheliegenden Autobahn bilden. Es beinhaltet Besucherräume, Büros sowie eine Kantine.

Um die Präsenz des Gebäudes zu verstärken, wird das Raumprogramm in die Höhe entwickelt. Das Resultat ist ein mächtiges und kantiges Volumen, bei welchem die klare Geometrie im Gegensatz zum amorphen und staubigen Kontext steht. Die Schicht der Nebenräume und des Treppenhauses bildet einen geschlossenen Rücken, während die Hauptnutzungen vollkommen verglast und dreiseitig von einem Balkon geschützt sind

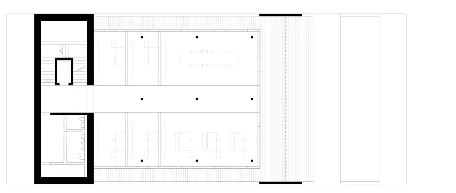
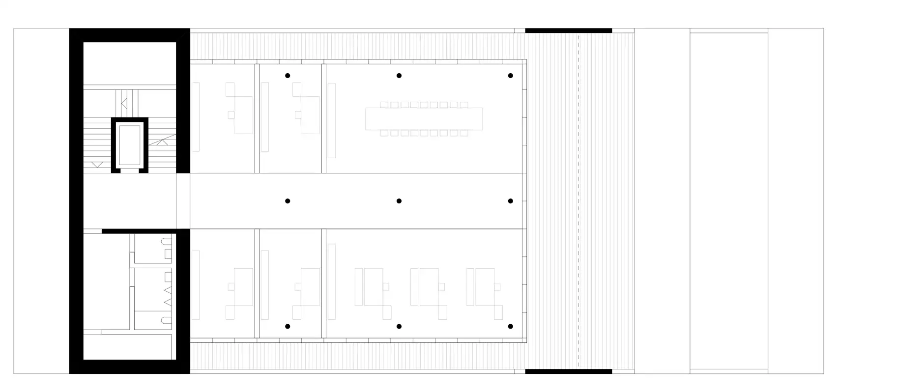
Im Erdgeschoss befinden sich der Haupteingang und die Mensa mit zentralliegender offener Küche. Vorgelagert ist diesem Bereich eine grosse Terrasse deren eine Hälfte gedeckt ist. Im 1. und 2. Obergeschoss sind die Büros der Verwaltung und der Geschäftsleitung. Beiden Geschossen ist ebenfalls eine Terrasse vorgelagert. Im 3. Obergeschoss befindet sich ein Ausstellungsraum mit doppelter Raumhöhe und einem dreieckigen Schnitt.

Die Materialisierung ist sehr reduziert. Die Fassade und die ganze Tragstruktur sind aus Sichtbeton, die Öffnungen aus Glas. Die Hauptfassade, in welcher auch der Eingang liegt, ist von runden frei angeordneten Fenstern gekennzeichnet. Auf dem geneigten Dach in der Südfassade wird eine Photovoltaikanlage installiert.

Impressionen
Pläne
Kenndaten
G43 Visualisierung Aussen Header
G43 HP Schwarzplan
G43 HP Grundriss Erdgeschoss
G43 HP Grundriss 1 Obergeschoss
G43 HP Grundriss 2 Obergeschoss
G43 HP Grundriss 3 Obergeschoss
G43 HP Grundriss 4 Obergeschoss
G43 HP Schnitt 1
G43 HP Schnitt 2
G43 HP Fassade Süd
G43 HP Fassade Ost
G43 HP Fassade West

Alle Pläne anzeigen

Typ

Industrie & Gewerbe

Ort

Kölliken

Auftraggeber

Hochuli AG

Gebäudevolumen

10'646 m³

Kopiert!