I21 Visualisierung Aussen Strasse

2023 | Wohnen

Terrassenhaus Schafrain | Muhen

Impressionen
Pläne
Kenndaten
I21 Visualisierung Aussen Zufahrt
I21 HP Schwarzplan
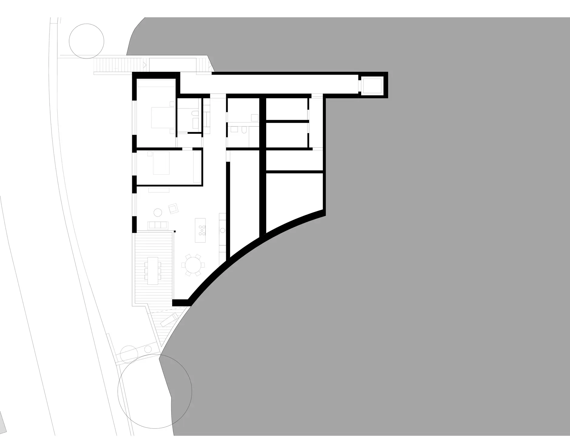
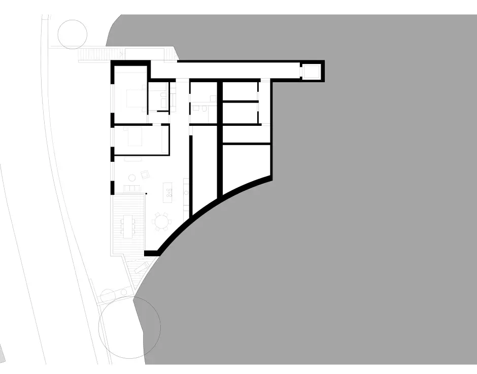
I21 HP Grundriss Ebene 0
I21 HP Grundriss Ebene 1
I21 HP Grundriss Ebene 2
I21 HP Grundriss Ebene 3
I21 HP Grundriss Ebene 4
I21 HP Grundriss Ebene 5
I21 HP Schnitt A
I21 HP Schnitt B
I21 HP Fassade Nord
I21 HP Fassade Ost
I21 HP Fassade Süd
I21 HP Fassade West

Alle Pläne anzeigen

Typ

Wohnen

Ort

Muhen

Auftraggeber

Privat

Gebäudevolumen

3'360 m³

Hauptnutzfläche

512 m²

Kopiert!