I06 Visualisierung Aussen

2023 | Wohnen

Terrassenhaus Gartenweg | Erlinsbach

Die betreffende Parzelle befindet sich unweit vom Waldrand an einem Westhang in Erlinsbach und gilt als eine aussergewöhnlich ruhige Lage. Durch den neu erstellten Gartenweg wurde die Parzelle im Jahr 2023 erschlossen.

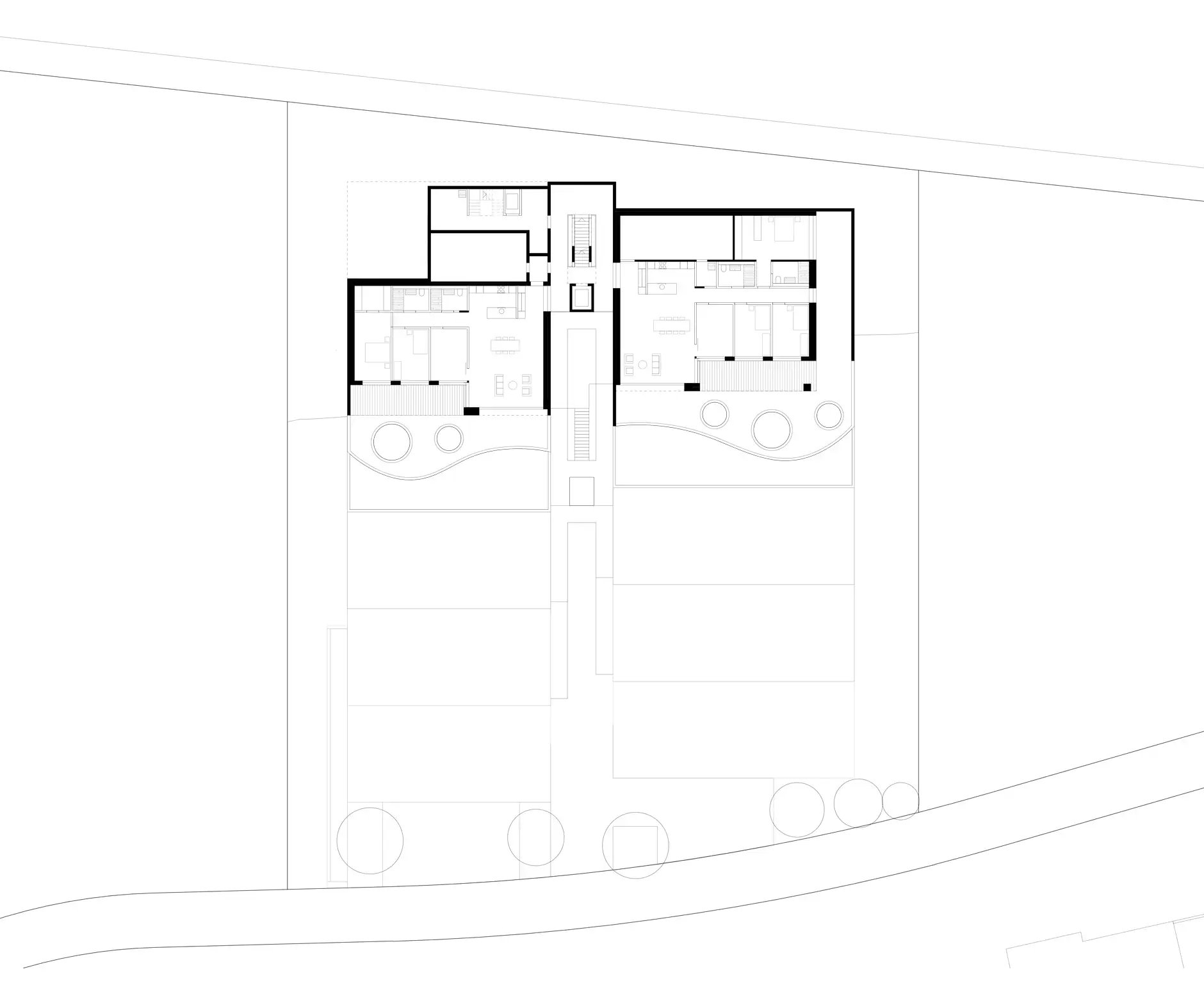
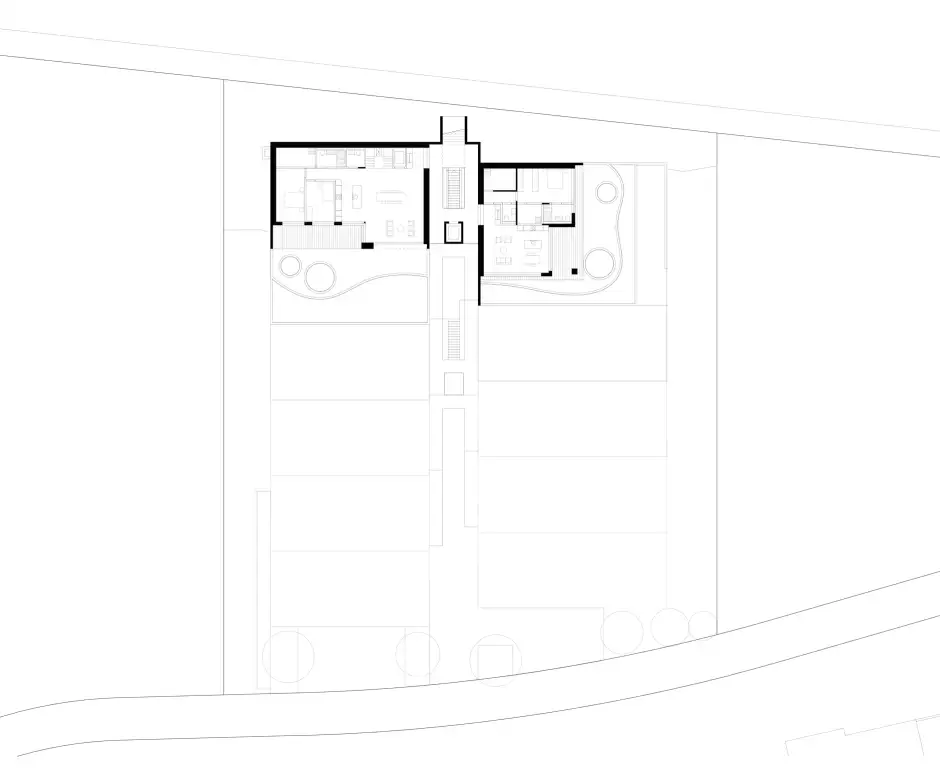
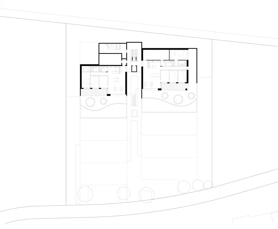
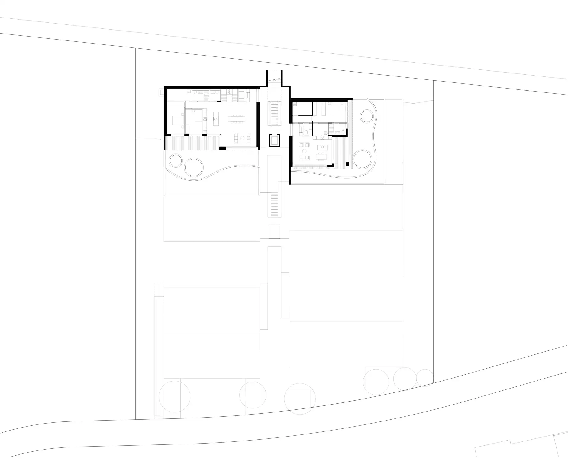
Die Bebauung ist entsprechend der Topografie des Grundstücks zweigeteilt. Es entstehen zwei Baukörper. Die Gebäude sind in horizontaler Richtung zueinander versetzt und nehmen somit die Höhenlage am Hang optimal auf. Der zweigeschossige Auftakt von Sockelgeschoss und erstem Wohngeschoss bildet das Gesicht der beiden Gebäude. Dieser wird durch einen Lichtschlitz sowie eine grosszügige Begrünung aufgelockert. In den übrigen Geschossen springt das Gebäude in einem regelmässigen Abstand von Geschoss zu Geschoss zurück. Die beiden Attikageschosse bilden den Abschluss der Gebäude. Der Zwischenraum dient der Erschliessung und verbindet durch vertikale Lufträume die Geschosse miteinander. Durch eine Bepflanzung an verschiedenen Stellen in der Erschliessung entsteht ein attraktiver Zwischenraum.

Im vorderen Teil befinden sich Wohnräume und Schlafzimmer direkt an der Fassade. Die Nebenraumschicht befindet sich mehrheitlich unter Terrain und wird als tragende Schicht ausgebildet. Die restlichen Leichtbauwände ermöglichen Flexibilität bei der Raumaufteilung. Es gibt eine klare Trennung vom Tag- und Nachtbereich. Die äussere Gestaltung der Bauten ist geprägt durch massive Seitenwände aus Beton, welche die Erschliessung in der Mitte der beiden Gebäude fasst. Gegen Westen befindet sich eine grosszügige Fensterfläche, die auf allen Ebenen eine Aussicht ins Dorf und auf die umliegende Landschaft ermöglicht. Die zurückversetzte Schicht der Zimmer ermöglicht einen gedeckten Aussenbereich. Mit der hinterlüfteten Fassade in diesem Bereich entsteht ein klarer Unterschied zur Betonfassade.

Die Begrünung auf den Terrassen wird im vorderen Bereich der Terrasse angeordnet, um die direkte Einsicht zum darunterliegenden Nachbarn zu verhindern. Dadurch wird eine hohe Privatsphäre auf den Terrassen geboten. Diese Bereiche werden durch ihre geschwungene Form geprägt. Für eine intensive Bepflanzung gibt es einen fassadenbündigen Pflanztrog sowie weiter runde Pflanztröge, die individuell gesetzt und gestaltet werden können.

Impressionen
Pläne
Kenndaten
I06 Visualisierung Aussen Zugang
I06 HP Schwarzplan
I06 HP Grundriss Ebene 0
I06 HP Grundriss Ebene 1
I06 HP Grundriss Ebene 2
I06 HP Grundriss Ebene 3
I06 HP Grundriss Ebene 4
I06 HP Grundriss Ebene 5
I06 HP Grundriss Ebene 6
I06 HP Grundriss Ebene 7
I06 HP Schnitt 1
I06 HP Schnitt 2
I06 HP Fassade Nord
I06 HP Fassade Ost
I06 HP Fassade Süd
I06 HP Fassade West

Alle Pläne anzeigen

Typ

Wohnen

Ort

Erlinsbach

Auftraggeber

Prolius AG

Gebäudevolumen

11'497 m³

Hauptnutzfläche

1'646 m²

Kopiert!