I16 HP Schwarzplan

2023 | Wohnen

Terrassenhaus Farnweg | Gränichen

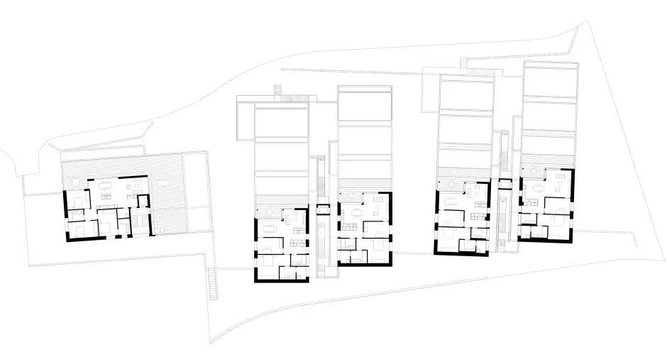
Die Bauparzellen liegen an einem steilen Nordhang und sind über den Farnweg erschlossen. Drei der vier Parzellen erstrecken sich vom Weierwandweg bis zum Farnweg. Auf diesen drei Parzellen entstehen zwei identische Terrassenhäuser. Die Parzelle im Westen reicht nur über die Hälfte der Strecke zwischen dem Weierwandweg und dem Farnweg. Auf ihr entsteht ein Mehrfamilienhaus mit einem Attikageschoss. 

Durch eine jeweils zentral liegende und offene Treppenanlage werden die Terrassenhäuser in sich in zwei weitere Baukörper unterteilt. Die beiden Baukörper sind sowohl in der Horizontalen als auch in der Vertikalen zueinander versetzt. Nebst einer besseren Einfügung in die Topografie ermöglicht dies eine bessere Besonnung sämtlicher Wohnungen. Jede Wohnung verfügt nebst der durch die Hanglage gegebenen Nordorientierung über eine Ost- oder Westorientierung. Mit je 8 Wohnungen pro Terrassenhaus entstehen total 16 neue Terrassenwohnungen. Das Mehrfamilienhaus steht im Westen des Bauareals und verfügt über jeweils zwei Wohnungen pro Regelgeschoss und eine Attikawohnung. Die Regelgeschosswohnungen sind Nordost bzw. Südwest orientiert und weisen einen grosszügigen Aussenraum auf. Das Attika sitzt im Süden und Westen bündig an der Fassade. Mit dem Zurückrücken von der Nord- und Ostfassade entsteht eine grosszügige Attikaterrasse mit Nord-, Ost- und Westorientierung.

Die äussere Gestaltung der Sichtbetonbauten ist geprägt durch die horizontale Gliederung der Brüstungen und den dazwischen liegenden dunkel lasierten Bändern bzw. Terrassen. Durch diese einheitliche Gestaltung erscheinen die drei Bauten als eine Gesamtüberbauung.

Impressionen
Pläne
Kenndaten
I16 Visualisierung Aussen Ausschnitt
I16 HP Schwarzplan
I16 HP Grundriss Ebene 0
I16 HP Grundriss Ebene 1
I16 HP Grundriss Ebene 2
I16 HP Grundriss Ebene 3
I16 HP Grundriss Ebene 4
I16 HP Schnitte
I16 HP Fassade Nord
I16 HP Fassaden Ost und West
I16 HP Fassade Süd

Alle Pläne anzeigen

Typ

Wohnen

Ort

Gränichen

Auftraggeber

Privat

Gebäudevolumen

20'250 m³

Hauptnutzfläche

2'576 m²

Kopiert!