I57 Visualisierung Aussen 03 Header

2025 | Industrie & Gewerbe

Technologiezentrum FlexBase | Laufenburg

Impressionen
Pläne
Kenndaten
I57 Visualisierung Aussen 02
I57 Visualisierung Aussen 01
I57 Visualisierung Aussen 05
I57 Visualisierung Aussen 04
I57 HP Schwarzplan Darstellung 2
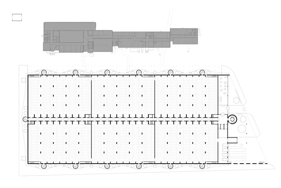
I57 HP Grundriss Erdgeschoss
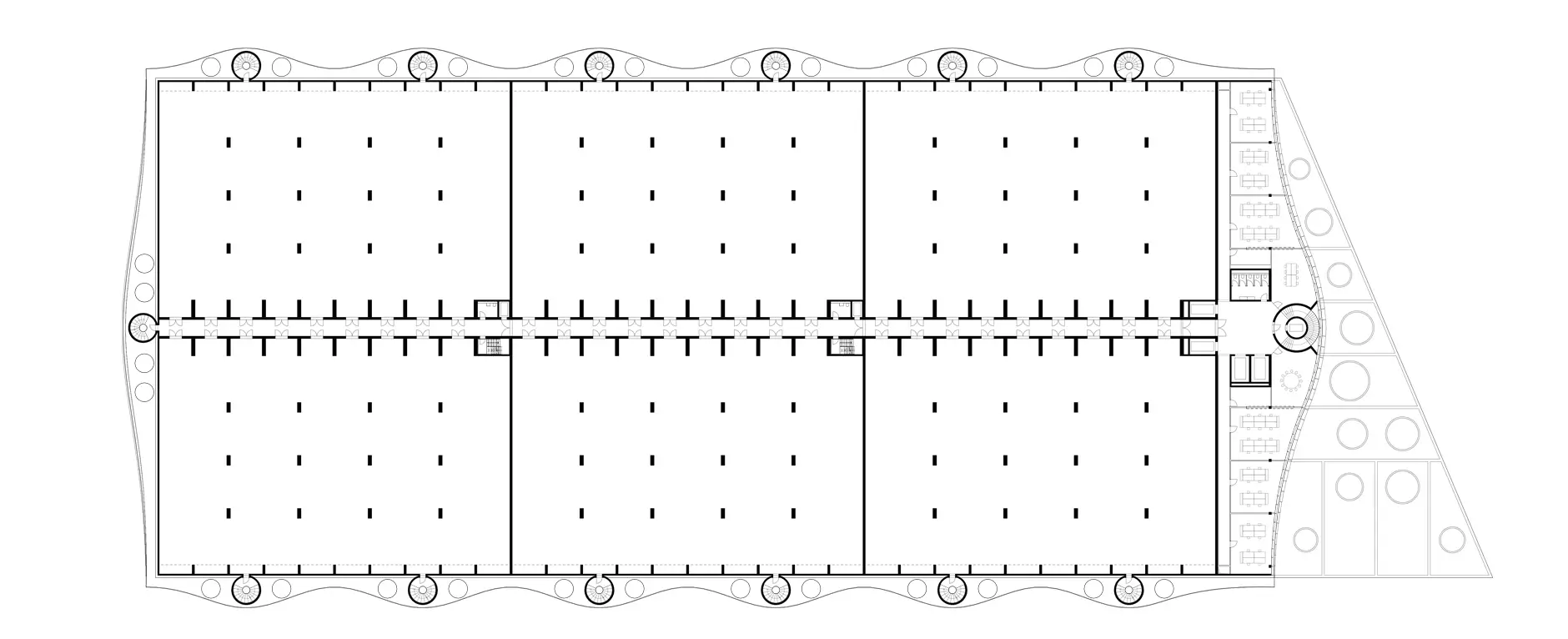
I57 HP Grundriss 1 Obergeschoss
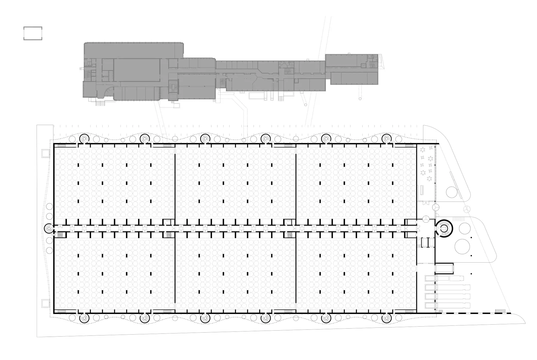
I57 HP Grundriss 2 3 Obergeschoss
I57 HP Grundriss 4 5 Obergeschoss
I57 HP Grundriss Technikgeschoss
I57 HP Grundriss 1 Untergeschoss
I57 HP Grundriss 2 Untergeschoss
I57 HP Grundriss 3 5 Untergeschoss
I57 HP Längsschnitt
I57 HP Querschnitte
I57 HP Fassade Nord
I57 HP Fassade Ost und West
I57 HP Fassade Süd

Alle Pläne anzeigen

Typ

Industrie & Gewerbe

Ort

Laufenburg

Auftraggeber

FlexBase Group

Gebäudevolumen

668'640 m³

Kopiert!