F97 Foto Aussen Fassade Materialisierung

2015 | Industrie & Gewerbe

Tanklager Weinkellereien Aarau | Aarau

Das Tanklager der Weinkellereien Aarau wurde am Ostrand des weitläufigen Areals erstellt und ist die Ergänzung eines Ensembles, bestehend aus verschiedenen Altbauten sowie drei Erweiterungsbauten, die Frei Architekten in früheren Jahren errichtet haben. 

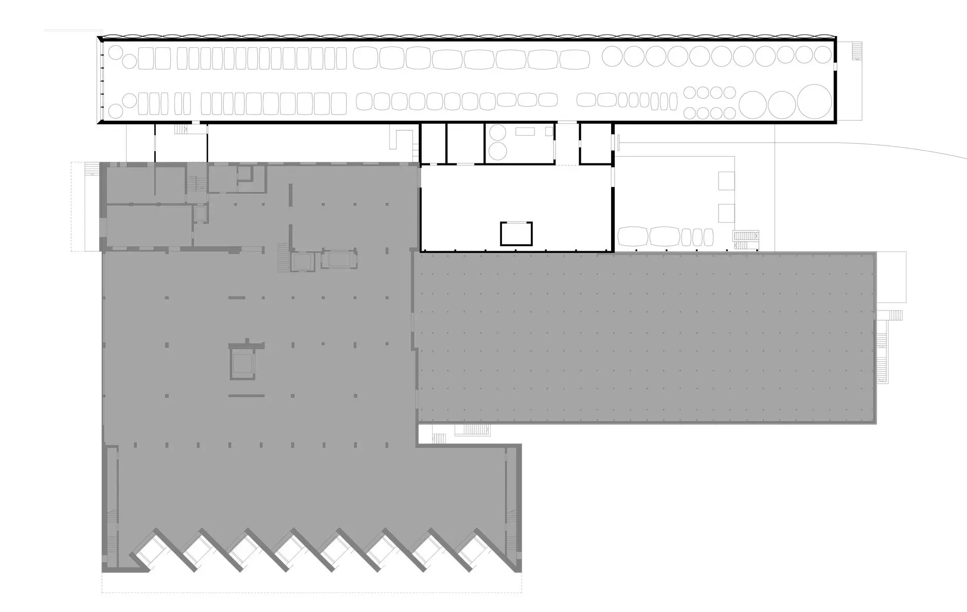
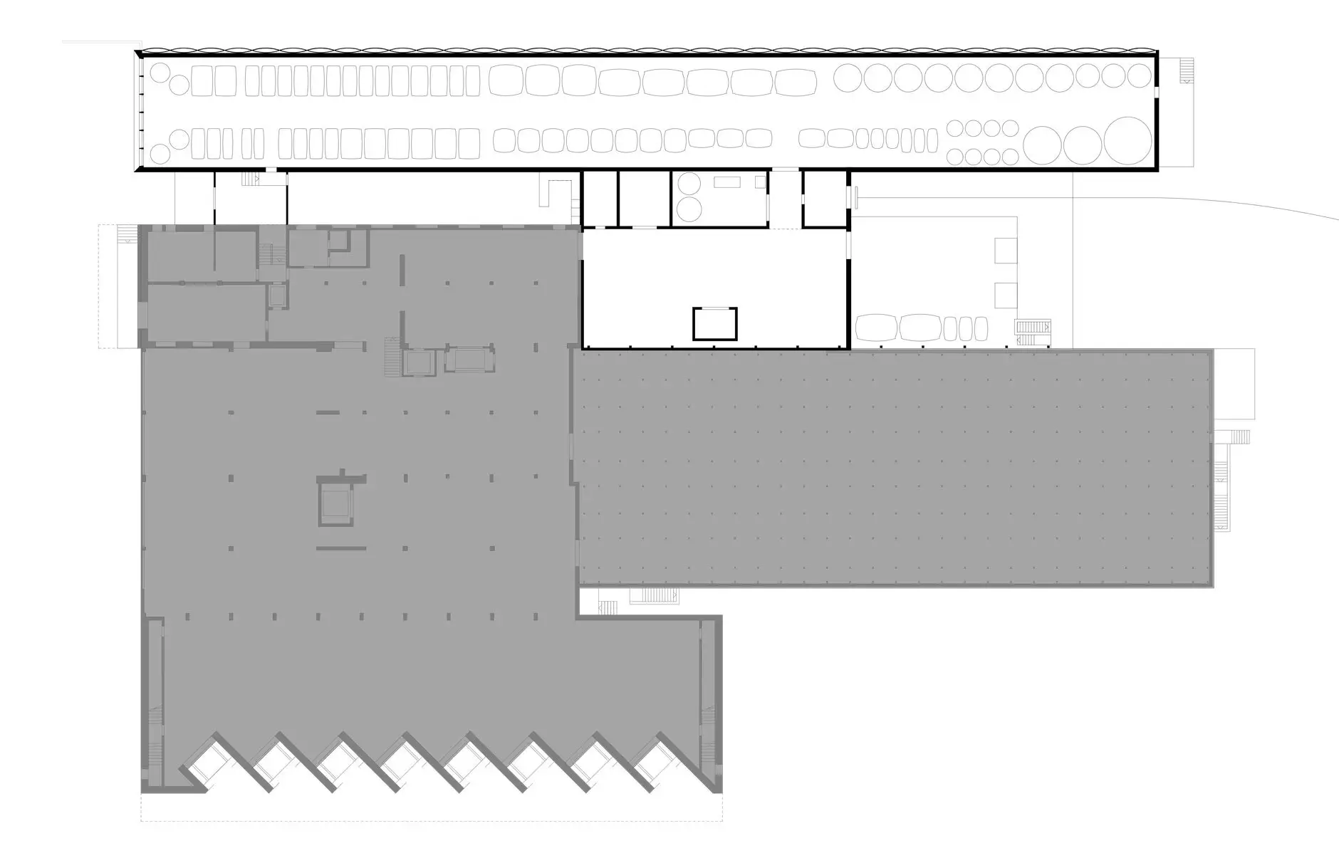
Die klimatisierte Halle ist hundert Meter lang, zehn Meter breit und zehn Meter hoch und mit Tanks unterschiedlichster Dimensionen bestückt. Im Untergeschoss liegen nebst Technikräumen und einem grossen Lagerraum ein Produktionsraum für «Bag in Box»-Abfüllungen. Zwischen der neuen Halle und den bestehenden Bauten befinden sich unter einem grossen Vordach im Norden der Hauptzugang und im Süden die Anlieferung für Lkws und die Bahn. Ebenfalls in diesem Zwischenbereich ist ein langer, schmaler Raum für «Wine and Dine» angeordnet.

Der Bau wurde als vorfabrizierter Holzbau auf das zum Teil bestehende Untergeschoss in Beton gesetzt. Die Fassade besteht aus zwei markanten Elementen: einem grossen, über die gesamte Raumbreite und Raumhöhe reichenden Fenster nach Norden, das den Blick in die Tankfarm freigibt, sowie einer gewellten, an die Fässer und Tanks erinnernden Holzfassade gegen Osten.

Impressionen
Pläne
Kenndaten
F97 Foto Aussen Fassade
F97 Foto Aussen Fassade Fensterfront
F97 Foto Aussen Anlieferung
F97 Foto Aussen Eingang Nacht
F97 Foto Innen Eingang
F97 Foto Innen Seminarraum 01
F97 Foto Innen Seminarraum 02
F97 Foto Innen Tanklager

Alle Bilder anzeigen

F97 HP Schwarzplan
F97 HP Situation
F97 HP Grundriss Erdgeschoss
F97 HP Grundriss 1 Obergeschoss
F97 HP Grundriss 2 Obergeschoss
F97 HP Grundriss Untergeschoss
F97 HP Längsschnitt 1
F97 HP Längsschnitt 2
F97 HP Längsschnitt 3
F97 HP Querschnitt 1
F97 HP Querschnitt 2
F97 HP Querschnitt 3
F97 HP Fassade Nord
F97 HP Fassade Ost
F97 HP Fassade Süd

Alle Pläne anzeigen

Typ

Industrie & Gewerbe

Ort

Aarau

Auftraggeber

Weinkellereien Aarau AG

Fertigstellung

2015

Gebäudevolumen

16'221 m³

Fotograf

Felix Wey

Kopiert!