H40 HP Grafik 01 Header

2020 | Wohnen

Studie Wohnen am Quellweg | Suhr

Die Parzelle liegt an der Kreuzung vom Quellweg und der Schmittegasse in der Gemeinde Suhr. Das bestehende Zweifamilienhaus soll abgebrochen und durch einen Neubau ersetzt werden.

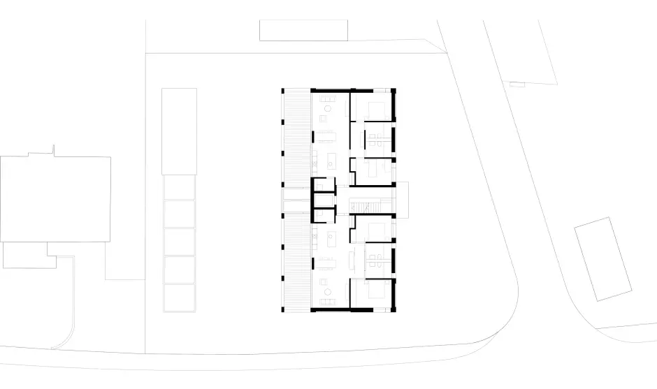
Die Projektstudie schlägt ein sehr einfaches Haus mit einem klaren und symmetrischen Grundriss vor.

Der Zugang erfolgt über den Quellweg. Über das Treppenhaus werden im Erdgeschoss und im Obergeschoss jeweils zwei grosszügige 3.5-Zimmer-Wohnungen erschlossen. Die Wohnungen verfügen über grosszügige westorientierte Loggien. Im Attikageschoss befindet sich ebenfalls eine 3.5-Zimmer-Wohnung. Zu dieser gehört, zusätzlich zur Loggia, eine grosszügige Terrasse mit Ausblick auf die Kirche.

Die Wohnungen sind identisch und klar strukturiert. Der Wohn-/ Ess-/ Küchenbereich ist nach Westen auf die grosszügige Loggia orientiert. Im Osten befinden sich die Nachtbereiche mit jeweils zwei Schlafzimmern und zwei Nasszellen. Die Wohnungen verfügen sowohl über ein Aussen- als auch ein Innenreduit.

Im Untergeschoss sind Velo-, Technik- und Kellerräume vorgesehen. Die Zufahrt zur Einstellhalle mir 12 Parkplätzen erfolgt von der Schmittengasse. Die Besucherparkplätze liegen am Quellweg.

Die strukturierte Fassade gliedert das Volumen durch ihr feines Licht- und Schattenspiel. Die Materialisierung ist in Sichtbeton, Eichenholz und Glas geplant.

Impressionen
Pläne
Kenndaten
H40 HP Grafik 02
H40 HP Schwarzplan
H40 HP Grundriss Erdgeschoss
H40 HP Grundriss 1 Obergeschoss
H40 HP Grundriss Attika
H40 HP Grundriss Untergeschoss
H40 HP Schnitte
H40 HP Fassaden Ost und Nord
H40 HP Fassaden West und Süd

Alle Pläne anzeigen

Typ

Wohnen

Ort

Suhr

Auftraggeber

Privat

Gebäudevolumen

4'200 m³

Kopiert!