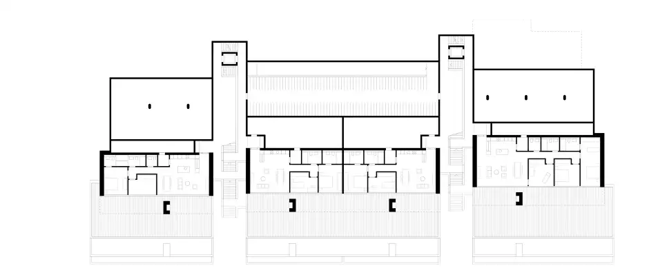
2022 | Wohnen
Studie Terrassenhaus | Künten
Typ
Wohnen
Ort
Künten
Auftraggeber
Privat
Hauptnutzfläche
2'384 m²
2022 | Wohnen
Typ
Wohnen
Ort
Künten
Auftraggeber
Privat
Hauptnutzfläche
2'384 m²