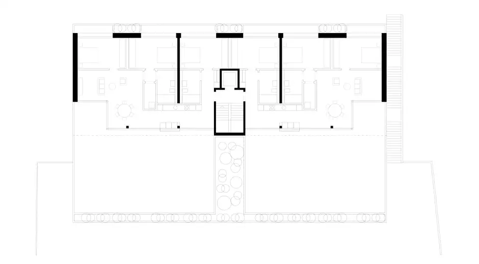
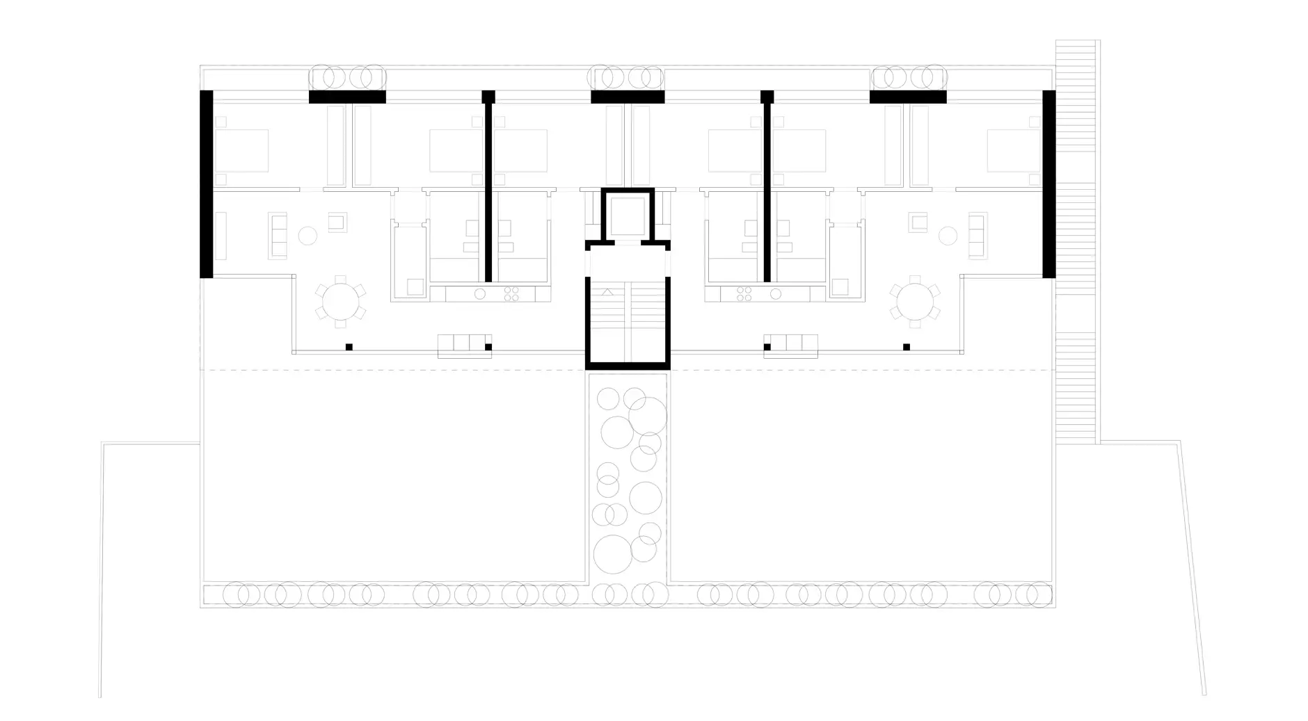
2023 | Wohnen
Studie Mehrfamilienhaus | Brugg
Typ
Wohnen
Ort
Brugg
Auftraggeber
Privat
Gebäudevolumen
9'473 m³
Hauptnutzfläche
1'796 m²
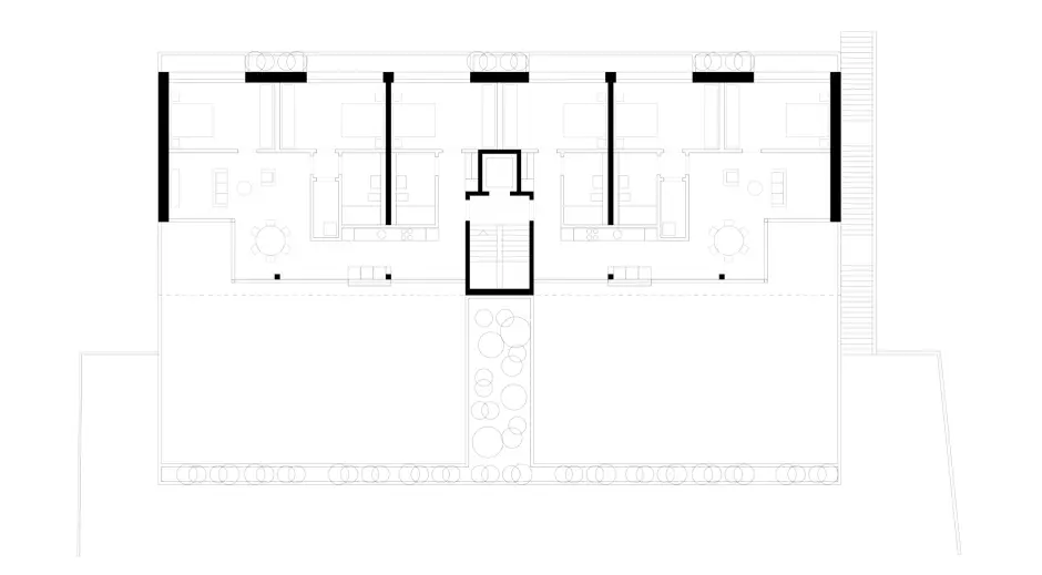
2023 | Wohnen
Typ
Wohnen
Ort
Brugg
Auftraggeber
Privat
Gebäudevolumen
9'473 m³
Hauptnutzfläche
1'796 m²