2020 | Wohnen
Alle Pläne anzeigen
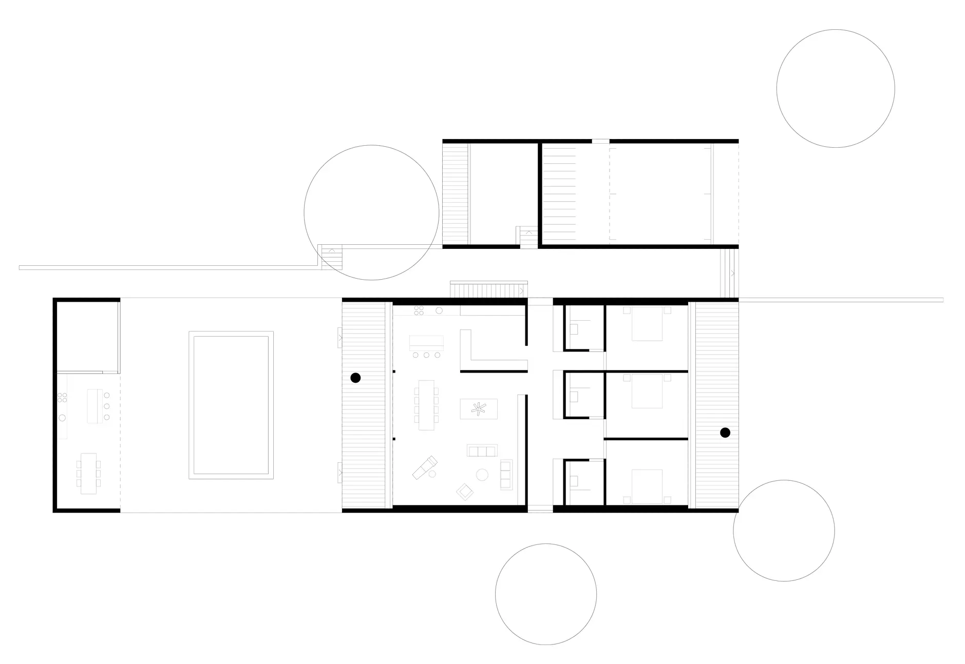
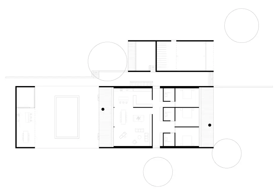
Typ
Wohnen
Ort
Oftringen
Auftraggeber
Privat
Nächstes Projekt
"Orte zum Leben", Oberentfelden