F33 Foto Aussen Erschliessung 02

2015 | Öffentliche Gebäude

Seniorenzentrum Gritt | Niederdorf

Der Neubau für das Alterszentrum Gritt wird als Ersatzbau an der Stelle des ehemaligen Altersheimes erstellt.

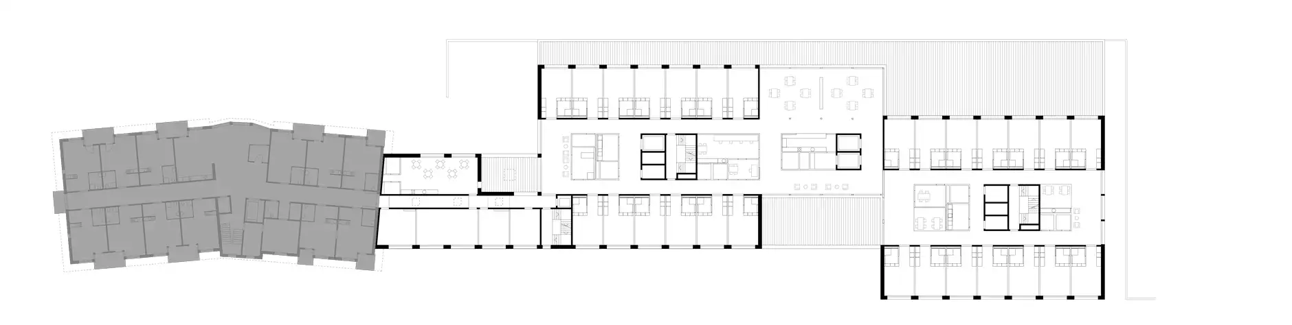
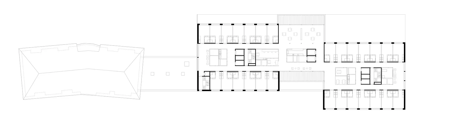
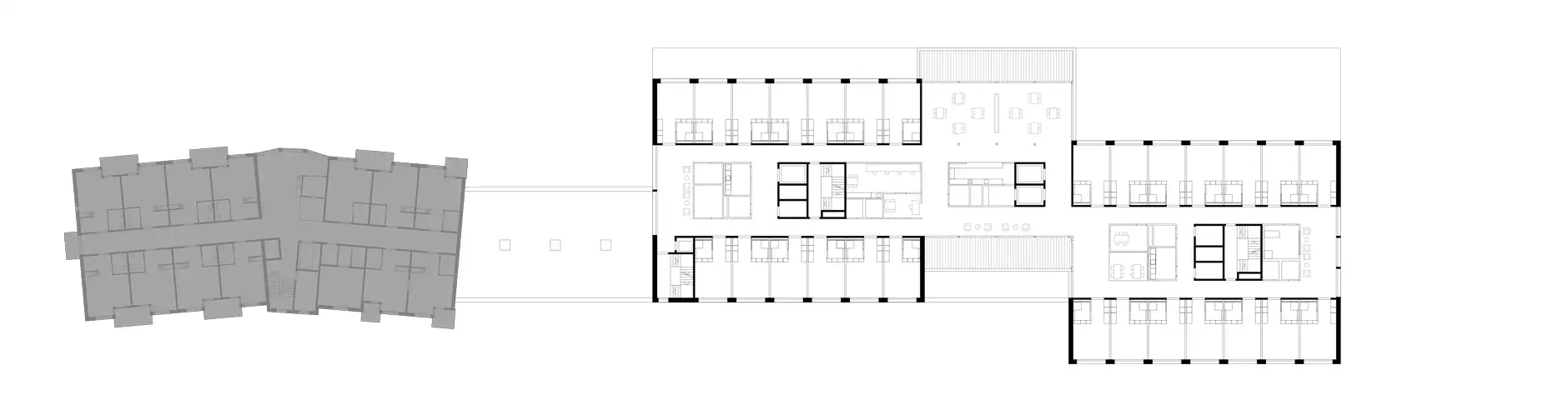
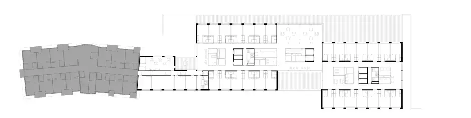
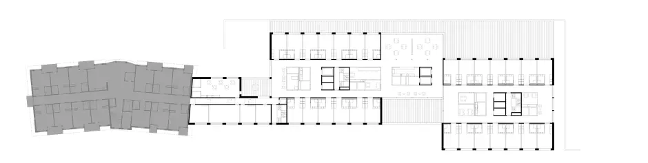
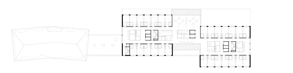
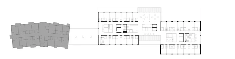
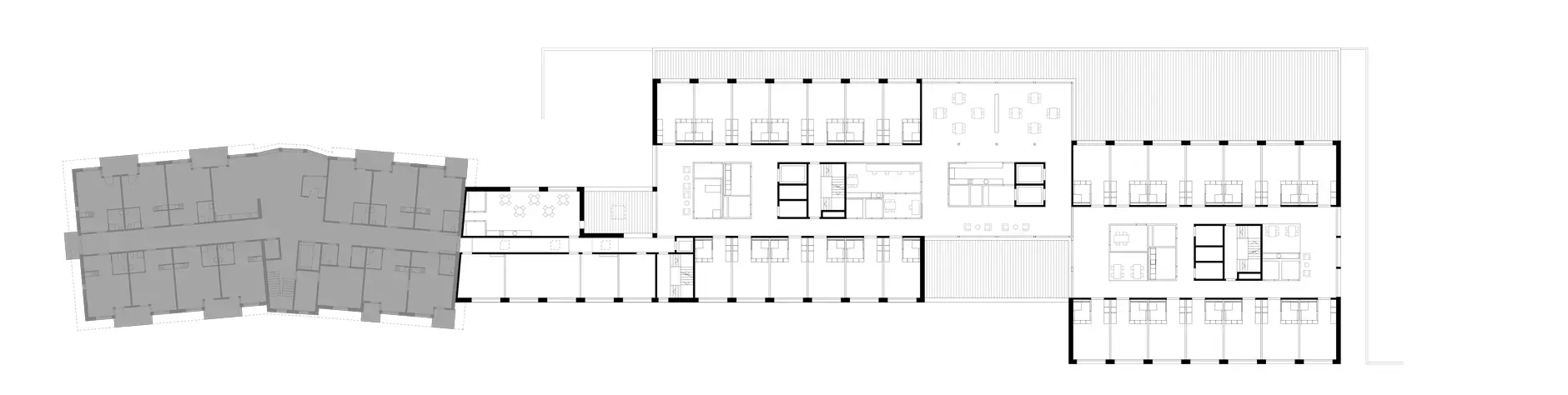
Das relativ grosse Raumprogramm mit 108 Pflegezimmern, Restaurant, Cafeteria, Mehrzweckraum, Verwaltung, Spitex, Küche, Wäscherei, Therapieräumen und Aufenthaltsräumen wird in einem 3‑teiligen, im Grundriss gestaffelten Baukörper angeordnet. Das Volumen tritt ostseitig am Grittweg 5‑geschossig in Erscheinung und auf der Talseite 6‑geschossig. Die öffentlich zugänglichen Räume wie Eingangsbereich, Restaurant, Cafeteria, Verwaltung und Spitex sind im Erdgeschoss angeordnet und werden von Osten her erschlossen. In diesem Bereich liegen auch die Einfahrt und die Besucherparkplätze. Im Sockelgeschoss, das sich talseitig nach Westen öffnet, sind die Wäscherei, Therapieräume, Werkstätten, Garderoben sowie die Lager- und Technikräume angeordnet. In den vier Obergeschossen befinden sich je 27 Pflegezimmer mit den zugehörigen Aufenthaltsräumen und Nebenräumen. Diese Geschosse sind so organisiert, dass sich jeweils zwischen zwei Stationen ein gemeinsamer Aufenthaltsraum mit Kochnische befindet. Diesem Bereich wird auf der Ost- und Westseite je eine grosszügige Terrasse vorgelagert. Das grosse Volumen wird sowohl im Grundriss als auch im Schnitt mehrfach gestaffelt um den Baukörper zu gliedern und kleiner wirken zu lassen.

Die Fassade wird charakterisiert durch eine starke horizontale Gliederung, die den Bau elegant und leicht wirken lässt. Die Brüstungsbänder werden mit einer beige/gelben Tonplatte verkleidet und bilden einen starken Kontrast zu den bronzefarbenen Fensterbändern.

Impressionen
Pläne
Kenndaten
F33 Foto Aussen Teich
F33 Foto Aussen Erschliessung 01
F33 Foto Aussen Feld
F33 Foto Aussen Terrasse
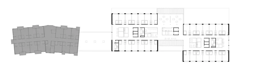
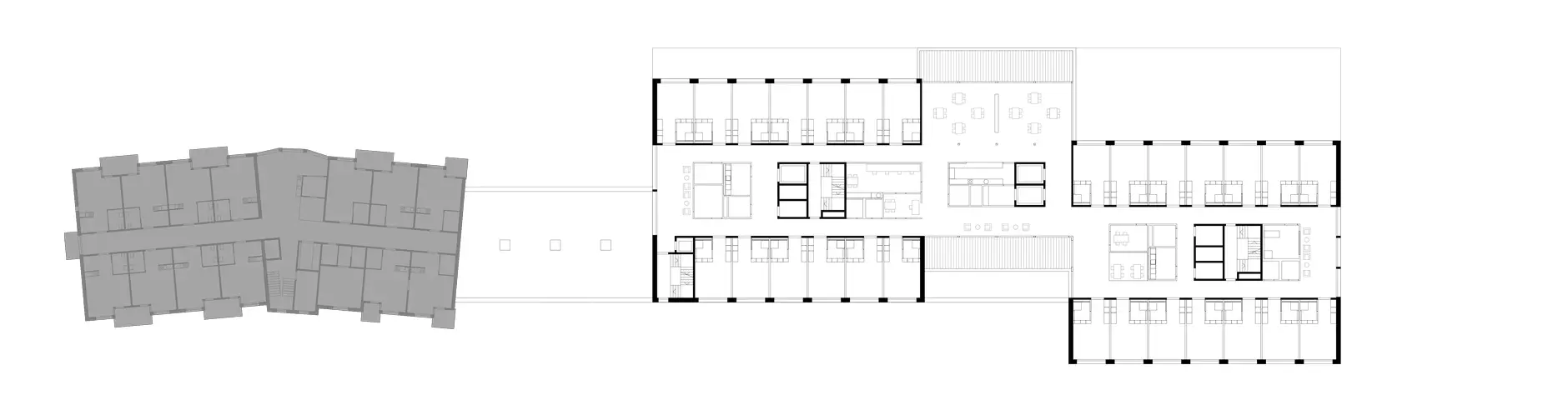
F33 HP Schwarzplan
F33 HP Grundriss Sockelgeschoss
F33 HP Grundriss Erdgeschoss
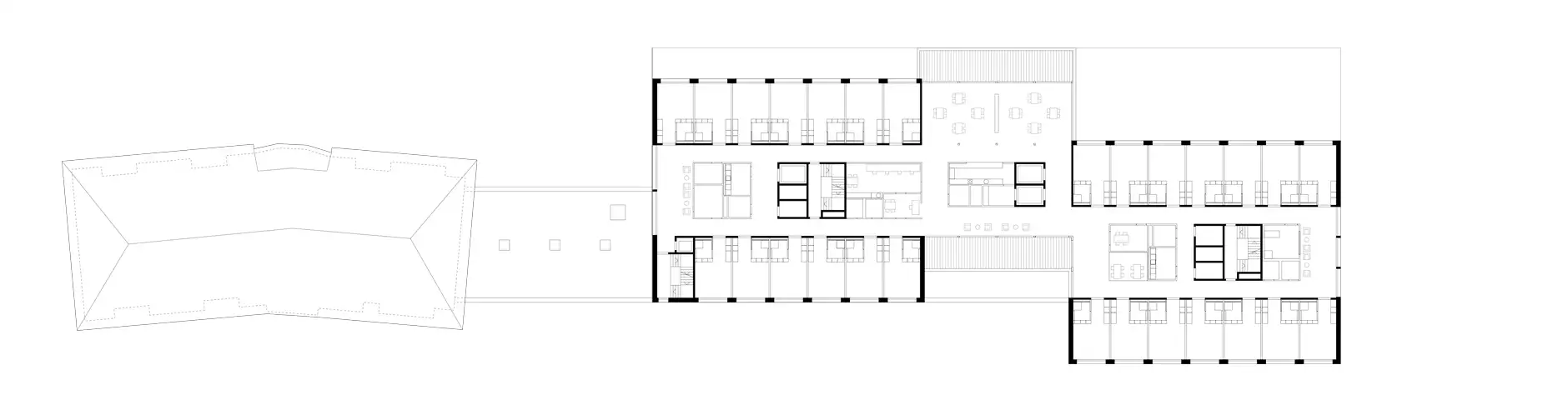
F33 HP Grundriss 1 Obergeschoss
F33 HP Grundriss 2 Obergeschoss
F33 HP Grundriss 3 4 Obergeschoss
F33 HP Längsschnitt
F33 HP Fassaden Nord und Süd
F33 HP Fassade Ost
F33 HP Fassade West

Alle Pläne anzeigen

Typ

Öffentliche Gebäude

Ort

Niederdorf

Auftraggeber

Stiftung Gritt Seniorenzentrum Waldenburgertal

Fertigstellung

2015

Gebäudevolumen

43'977 m³

Fotograf

Guido Schärli

Kopiert!