2020 | Wohnen
Reiheneinfamilienhaus Bühlrain | Aarau
Die vier Reihenhäuser stehen in einem ruhigen Einfamilienhausquartier auf einer Parzelle mit vielen grossen Bäumen. Die Häuser sind so platziert, dass sämtliche Bäume, darunter eine riesige alte Linde, zwei grosse Lärchen, eine Blutbuche, eine wunderschöne Waldföhre, verschiedene Winterlinden und ein Apfelbaum stehenbleiben konnten. Um das Wurzelwerk zu schonen, wurde der Keller des alten Hauses weiterverwendet und nur minimal vergrössert.
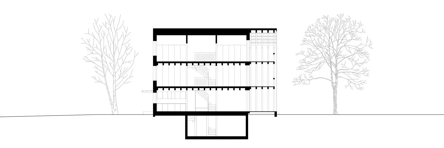
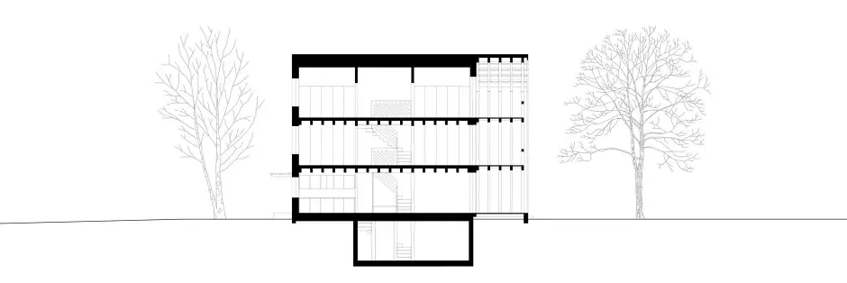
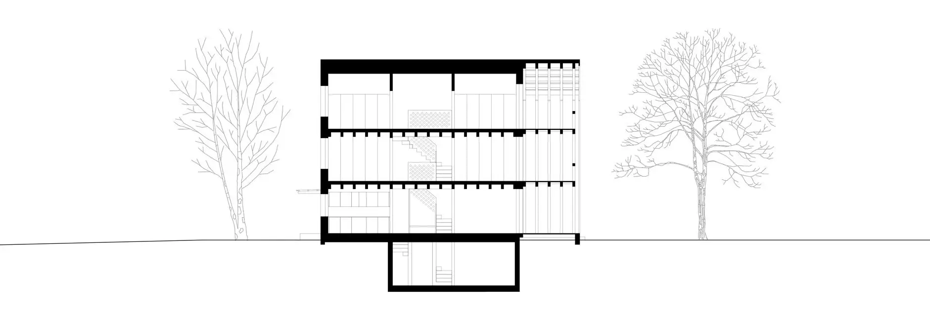
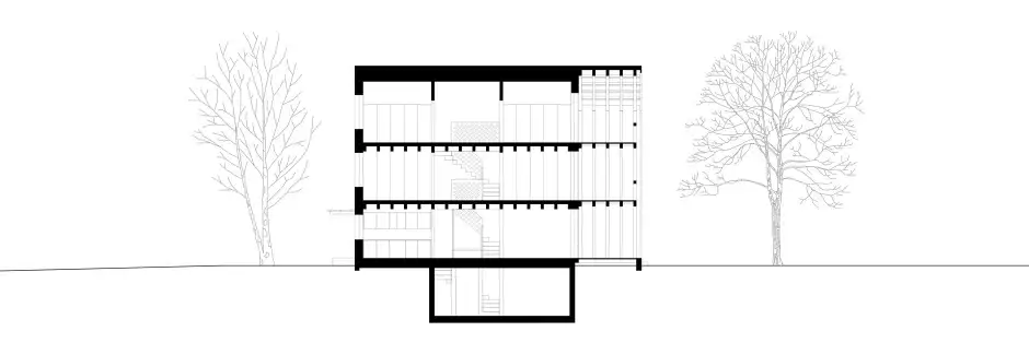
Die vier Häuser basieren auf einem einfachen dreiteiligen Grundriss mit vorgelagerter Terrasse beziehungsweise Balkon. Im Erdgeschoss befinden sich im Norden der Eingang mit Garderobe und die Küche, im mittleren Teil die Treppe und das Esszimmer und im südlichen das Wohnzimmer mit Terrasse. Im Ober- und im Dachgeschoss liegt jeweils ein Schlafzimmer an der Nord- und an der Südfassade, dazwischen die Treppe und ein Badezimmer. Um ihre Autonomie zu stärken hat jedes Haus ein eigenes Satteldach.
Die Konstruktion besteht aus einem Kellergeschoss in Beton, darüber ist ein reiner Holzbau, der aus mehreren kreuzweise verdübelten Bretterlagen konstruiert ist. Dank diesen massiven Wänden und Decken in Holz konnte auf zusätzliche Dämmung verzichtet werden. Dies wirkt sich positiv auf die Wärmespeicherung, die Abschirmung gegen Elektrosmog, die Luftfeuchtigkeit und die Atmungsaktivität aus. Die Fassaden sind mit schwarzen Holzschindeln dreilagig verkleidet und das Dach ist mit Welleternit gedeckt.
Typ
Wohnen
Ort
Aarau
Auftraggeber
Goldern Immobilien AG
Fertigstellung
2020
Gebäudevolumen
3'230 m³
Hauptnutzfläche
560 m²
Fotograf
Felix Wey