H22 Visualisierung Aussen Strasse 2 Header

2020 | Öffentliche Gebäude

Parkhaus KSA | Aarau

Das Bauvolumen richtet sich orthogonal zu den restlichen KSA-Bauten. Das Parkhaus steht mit der Stirnseite zur Tellstrasse und ist zum angrenzenden KSA Therapiehaus zurückgesetzt. Hierdurch erlangt der Nord-Süd ausgerichtete Baukörper im Strassenverlauf eine untergeordnete Rolle. 

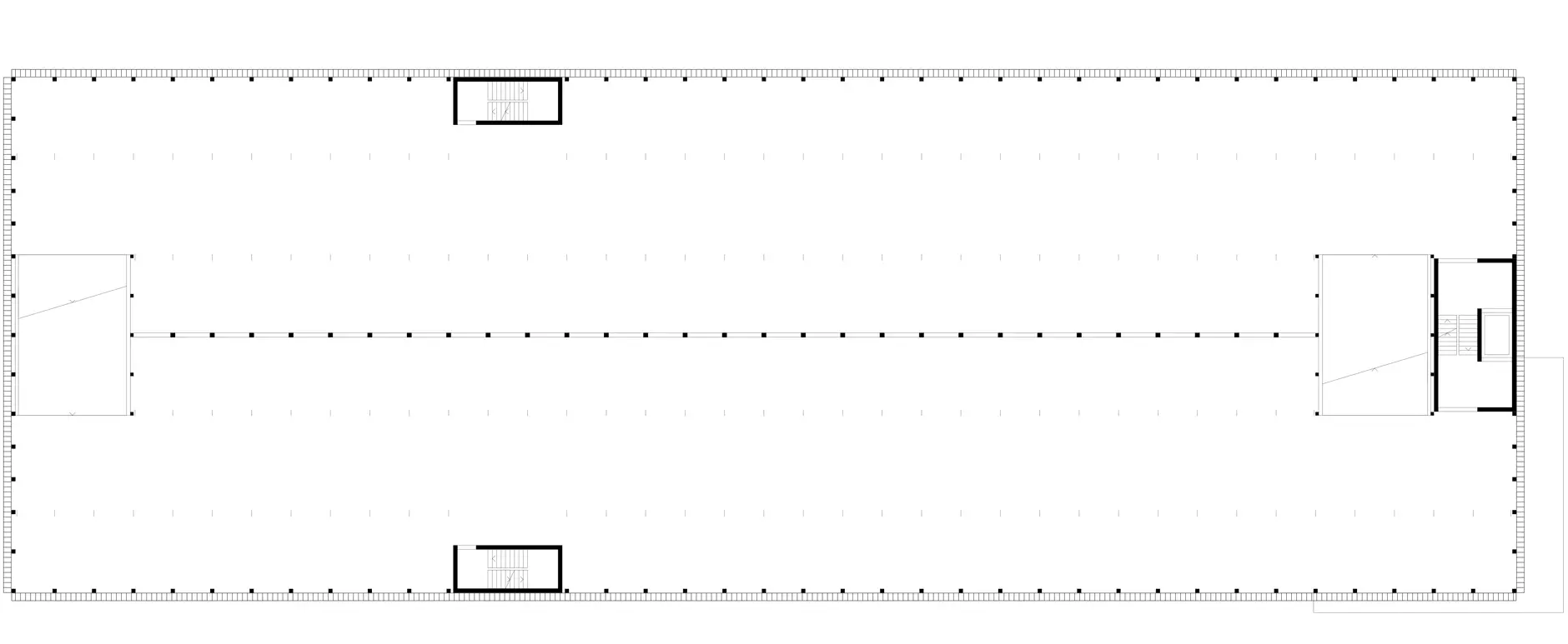
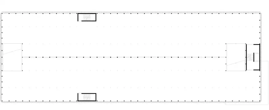
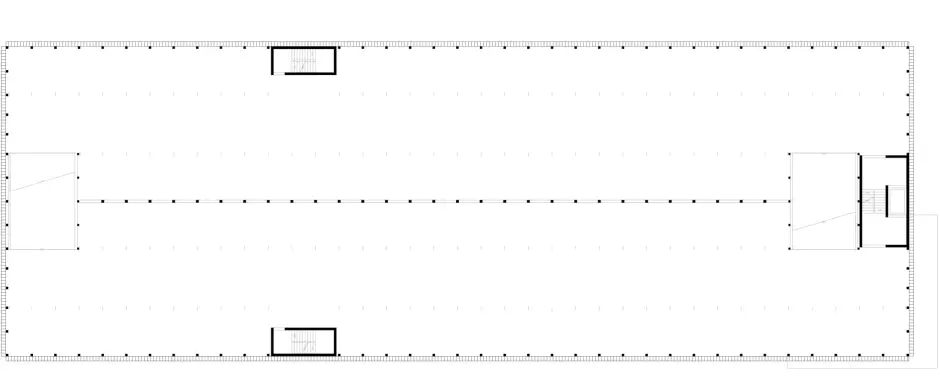
Das Parkhaus beinhaltet gesamthaft 11 Ebenen, welche als Split-Level ausgeführt werden. Durch diese Halbgeschosse lassen sich die Ebenen problemlos innerhalb des Parkhauses miteinander verbinden. Gesamthaft entstehen so über 710 Parkplätze für die Mitarbeiter des KSA. 

Die äussere Gestaltung der Baute ist geprägt durch eine vertikale, flechtartige Holzlamellenfassade, welche auf einem Ortbetonsockel aufgesetzt ist. Der Betonsockel ist robust und dient gleichzeitig als Anfahrschutz. Aus dem Sockel entwickelt sich das Vordach für den Mitarbeitereingang und Ausfahrt, welcher gleichzeitig das Bauvolumen in der Ecke zur Tellstrasse fasst und akzentuiert. In gleicher Formsprache entsteht aus dem Sockel das Vordach für die Einfahrt zum Parkhaus. Die in vorvergrauten Holz angedachte Fassade erfüllt mehrere Anforderungen zugleich. Durch die flechtartige Struktur wird das grosse Volumen gebrochen. Wie eine Hülle wird das Flechtwerk über das Parkhaus gestülpt. Dies verleiht der Fassade eine gewisse Leichtigkeit und erfüllt intelligent die brandschutztechnischen Anforderungen hinsichtlich der Durchlüftung. Auf mechanische Lüftungs- und Sprinkleranlagen kann dadurch verzichtet werden. Gegenüber den angrenzenden Wohnhäusern ist die Fassade mit der flechtartigen Struktur geschlossen und erfüllt somit ebenfalls die erforderlichen Lärmschutzanforderungen. Der Rohbau besteht aus einem Stahlskelettbau und horizontalen Stahl-Betonverbunddecken.

Impressionen
Pläne
Kenndaten
H22 Visualisierung Aussen Strasse 1
H22 HP Schwarzplan
H22 HP Grundriss Ebene 0
H22 HP Grundriss Ebene 1 8
H22 HP Grundriss Ebene 1 Untergeschoss
H22 HP Grundriss Ebene 2 Untergeschoss
H22 HP Längsschnitt 1
H22 HP Querschnitte
H22 HP Fassade Nord und Süd
H22 HP Fassade Ost
H22 HP Fassade West

Alle Pläne anzeigen

Typ

Öffentliche Gebäude

Ort

Aarau

Auftraggeber

KSA

Gebäudevolumen

46'418 m³

Kopiert!