2014 | Industrie & Gewerbe

Neubau Taracell | Niederwil

Pläne
Kenndaten
F56 HP Schwarzplan
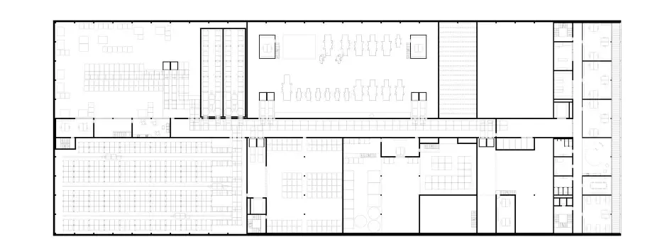
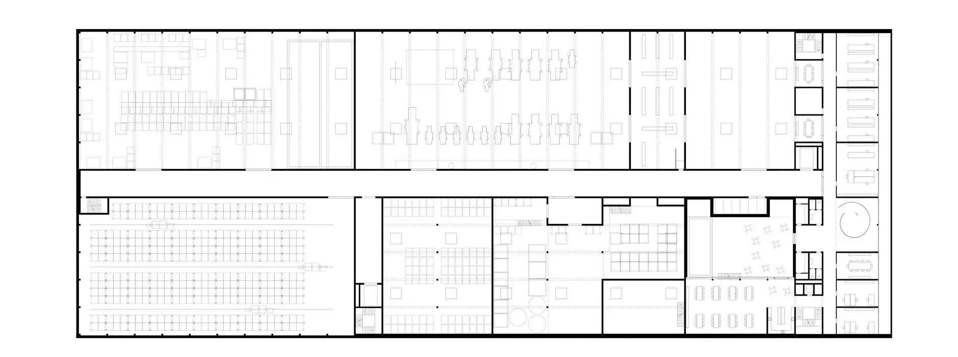
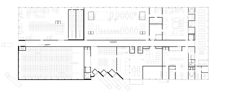
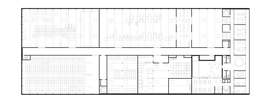
F56 HP Grundriss Erdgeschoss
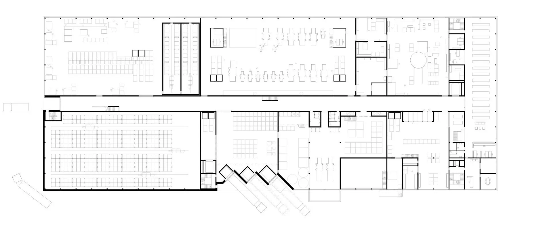
F56 HP Grundriss 1 Obergeschoss
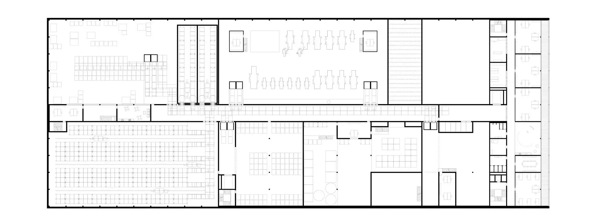
F56 HP Grundriss 2 Obergeschoss
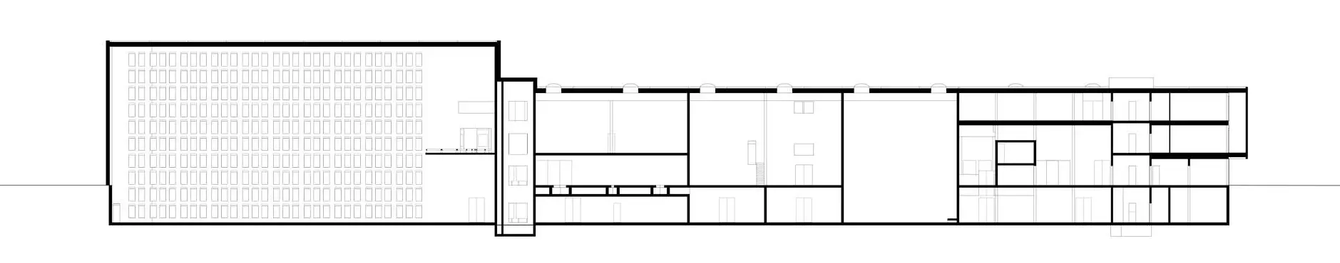
F56 HP Schnitt
F56 HP Fassade Nord Sued
F56 HP Fassade Ost
F56 HP Fassade West

Alle Pläne anzeigen

Typ

Industrie & Gewerbe

Ort

Niederwil

Auftraggeber

Taracell AG

Kopiert!