G57 Foto Aussen Strasse

2018 | Wohnen

Mehrfamilienhaus R | Aarau

Die Herzogstrasse, weiter südlich bereits im Perimeter der Gartenstadt, ist geprägt durch die Gartenmauern im Strassenraum. Eine starke Durchgrünung mit grossen alten Bäumen und Sträuchern charakterisiert das Quartier und seine Liegenschaften. 

Das neue Gebäude an der Herzogstrasse wird als Ersatzneubau eines alten Mehrfamilienhauses realisiert. Das Projekt respektiert den Charakter und die baulichen Eigenheiten des Quartiers. Wie sein Vorgänger steht auch der Neubau als „Haus im Garten“ da. Von der Herzogstrasse zurückversetzt, wahrnehmbar durch die Filterschicht der zum Teil mächtigen alten bestehenden Bäume, orientiert sich das Haus wiederum genau in Nord-Süd-Richtung, parallel zur Hangneigung. Die alte Gartenmauer samt der als Tor ausgebildeten Zufahrt und die Bäume bleiben bestehen. Der Neubau, rechteckig in seiner Grundform, fügt sich ins Quartier und in die Topographie ein. Die leichte Hanglage, welche eine natürliche Höhendifferenz von rund 2.2m zwischen Nord- und Südfassade ergibt, erlaubt es, den Eingang, die gedeckten Autoabstellplätze und die Kellerräume ab dem Zugang direkt im Erdgeschoss zu realisieren. Das erste Wohngeschoss liegt im 1. Obergeschoss, welches gegen Süden und den Garten orientiert ist.  Typologisch entspricht dieses Geschoss einem Hochparterre. Über einige Stufen erreicht man von der Loggia her den Garten.

Das Gebäude ist in Sichtbeton, als zweischalige Konstruktion realisiert. Das Material unterstützt die körperhafte Volumetrie und verspricht eine dauerhafte Fassade inmitten des zum Teil mächtigen Baumbestands. Die monolithische Volumetrie wird durch ein horizontales und vertikales Grundraster geprägt. Der Einschnitt im Erdgeschoss, die Setzung des Attikas und die Art der verschiedenen Fassadenöffnungen zusammen mit subtilen Störungen innerhalb des Rasters machen die Nutzung von aussen her erkennbar und verleihen dem ruhigen Körper die Eigenheiten eines Wohnhauses.

Impressionen
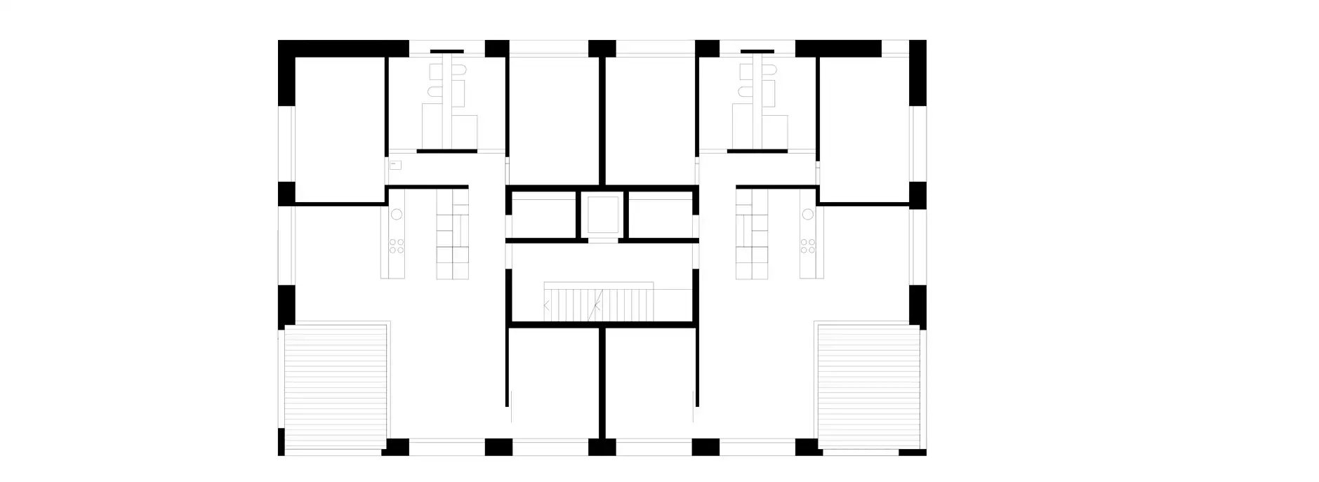
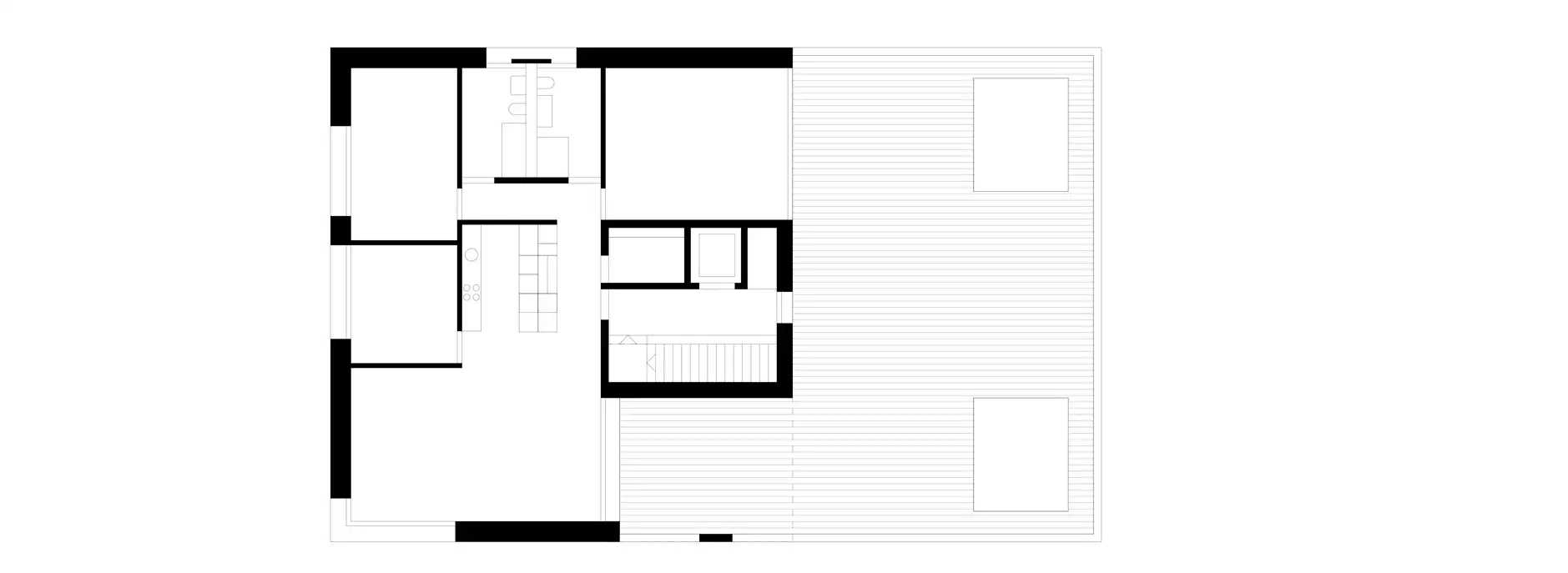
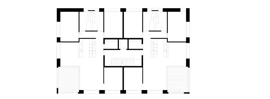
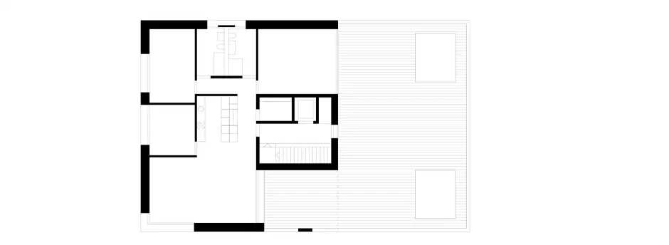
Pläne
Kenndaten
G57 Foto Aussen 01
G57 Foto Aussen 04
G57 Foto Aussen 03
G57 Foto Aussen 02
G57 Foto Aussen Eingang 01
G57 Foto Aussen Eingang 02
G57 Foto Aussen Eingang 03
G57 Foto Aussen Terrasse 02
G57 Foto Aussen Terrasse 01
G57 Foto Innen Eingang
G57 Foto Innen Treppenhaus 01
G57 Foto Innen Treppenhaus 04
G57 Foto Innen Treppenhaus 02
G57 Foto Innen Treppenhaus 03
G57 Foto Innen Kochen Wohnen
G57 Foto Innen Korridor Nasszelle
G57 Foto Innen Korridor Wohnen
G57 Foto Innen Küche
G57 Foto Innen Wohnzimmer 01
G57 Foto Innen Wohnzimmer 03
G57 Foto Innen Wohnzimmer 04
G57 Foto Innen Wohnzimmer 05

Alle Bilder anzeigen

G57 HP Schwarzplan
G57 HP Grundriss Erdgeschoss
G57 HP Grundriss 1 Obergeschoss
G57 HP Grundriss 2 Obergeschoss
G57 HP Grundriss Attika
G57 HP Längsschnitt
G57 HP Querschnitt
G57 HP Fassade Nord
G57 HP Fassade Ost
G57 HP Fassade Süd
G57 HP Fassade West

Alle Pläne anzeigen

Typ

Wohnen

Ort

Aarau

Auftraggeber

Privat

Fertigstellung

2018

Gebäudevolumen

3‘7921 m³

Fotograf

Felix Wey

Kopiert!