2014 | Wohnen
Mehrfamilienhaus mit Zahnarztpraxis | Muhen
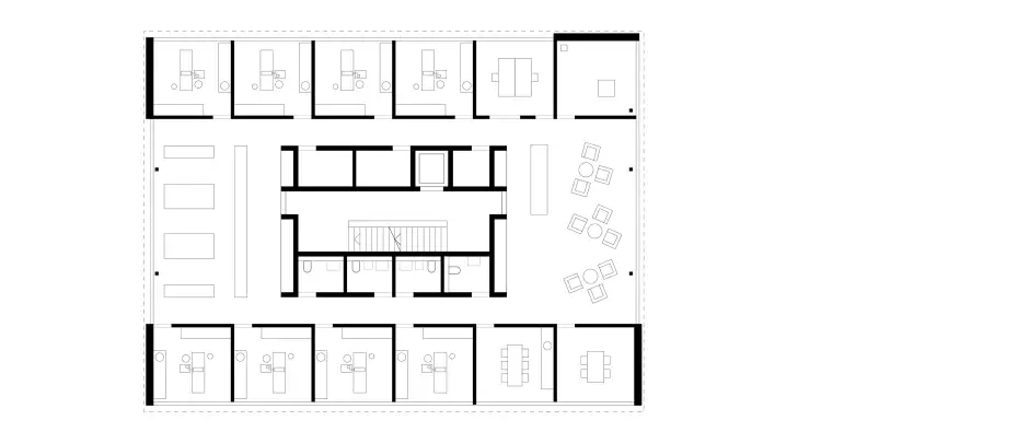
Das L-förmige Grundstück liegt zwischen der Hauptstrasse und dem Stöcklimattweg. Auf dem Grundstück entsteht ein Wohnhaus mit 10 Wohnungen und einer Zahnarztpraxis im Erdgeschoss.
Aufgrund der Grösse und der Anforderungen der Zahnarztpraxis wurde der Eingang zu den Wohnungen über einen abgesenkten Garten ins Untergeschoss verlegt. Dieser Garten kann über eine Rampen- und Treppenanlage sowohl von den Besucherparkplätzen im Erdgeschoss als auch direkt aus der unterirdischen, sich neben dem Haus befindenden, Parkgarage erreicht werden. Die Zahnarztpraxis wird direkt ab den Besucherparkplätzen im Erdgeschoss erschlossen und ist um den innenliegenden Treppenhauskern organisiert. In den zwei Obergeschossen sind je vier 31/2‑Zimmerwohnungen angeordnet. Im Attikageschoss befinden sich zwei über Eck platzierte 41/2‑Zimmerwohnungen mit grosser Dachterrasse.
Typ
Wohnen
Ort
Muhen
Auftraggeber
Privat
Fertigstellung
2014
Gebäudevolumen
7'564 m³
Fotograf
Daniel Erne