2019 | Wohnen
MFH Grabenstrasse | Aarau Rohr
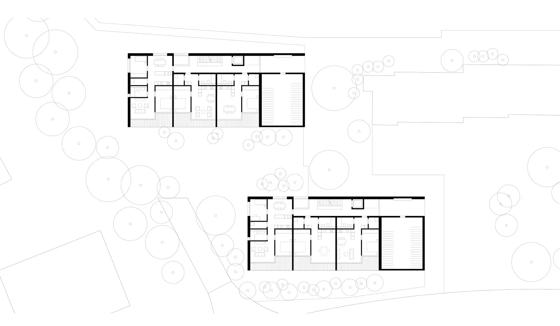
Die zwei Neubauten werden auf der Parzelle so gesetzt, dass eines davon westlich des bestehenden Hauses liegt, während das andere parallel dazu an der Strasse zu liegen kommt und sich in der Ansicht mittig zu den dahinterliegenden Zeilenbauten positioniert. Dementsprechend werden die drei Zeilen auf eine selbstverständliche Art und Weise zusammengelesen, während das Haus Nr. 3 nach wie vor den Auftakt zur Siedlung markiert. Durch diese Setzung entsteht ein grosszügiger Grünraum, welcher zwischen den Zeilenbauten mäandriert und das Wegnetz aufnimmt.
Die beiden Zeilenbauten richten sich genau wie der Bestand nach Südwesten aus. Alle Wohnungen profitieren daher von einer optimalen Besonnung. Je ein Vierspänner erschliesst zwei 3.5-Zi.-Whg. und zwei 2.5-Zi.-Whg. pro Geschoss. Im Erdgeschoss entfällt eine Wohnung zu Gunsten eines grosszügigen Eingangsbereichs und eines Veloraumes. Die Häuser haben je vier Geschosse mit je 15 Wohnungen.
Das grosse, lichtdurchflutete Treppenhaus liegt im Nordosten und erschliesst die vier Wohnungen pro Geschoss. Die Wohn-/Schlafräume mit dem vorgelagerten Balkon orientieren sich nach Süd-Westen. Jede Wohnung verfügt zudem über ein Reduit. Die Zimmer sind mit einer Mindestbreite von drei Metern optimal möblierbar. Eine unterirdische Tiefgarage bietet 24 Parkplätze.
Die beiden neugeplanten Häuser zeichnen sich durch ihre einfache, aber präzise Form aus. Sie sind identisch und verstärken damit den einheitlichen Charakter der Siedlung. Die Einheit der Siedlung soll auch in der Gestaltung und der Materialität zum Ausdruck kommen. Die Fassade wird geprägt durch die grosszügigen Balkone und grossen Fenster.
Typ
Wohnen
Ort
Aarau Rohr
Auftraggeber
Klar Holding AG
Fertigstellung
2019
Gebäudevolumen
12'345 m³
Hauptnutzfläche
1'905 m²
Fotograf
Felix Wey