G65 A Foto Aussen Anlieferung Header

2021 | Industrie & Gewerbe

Logistikzentrum Migros | Schönbühl

Das bestehende Logistikgebäude wurde im Osten erweitert, um Platz zu schaffen für zusätzliche Andockstellen und Lagerräume. Zusätzlich wurde das ganze Gebäude um ein Geschoss aufgestockt. Die Fassaden wurden komplett erneuert. Die markante Südfassade bildet das neue Gesicht zur Autobahn. 

Über dem Sockel mit den Andockstellen liegt ein zweigeschossiger, komplett verglaster Büroteil und darüber ein geschlossenes, mit Profilit-Glas verkleidetes Lagergeschoss. Zusammengebunden werden die drei Teile durch ein neues vertikales Element in Glas und Beton, in dem die neue Fluchttreppe untergebracht ist.

Impressionen
Pläne
Kenndaten
G65 A Foto Aussen Anlieferung 01
G65 A Foto Aussen Treppenhaus
G65 A Foto Aussen
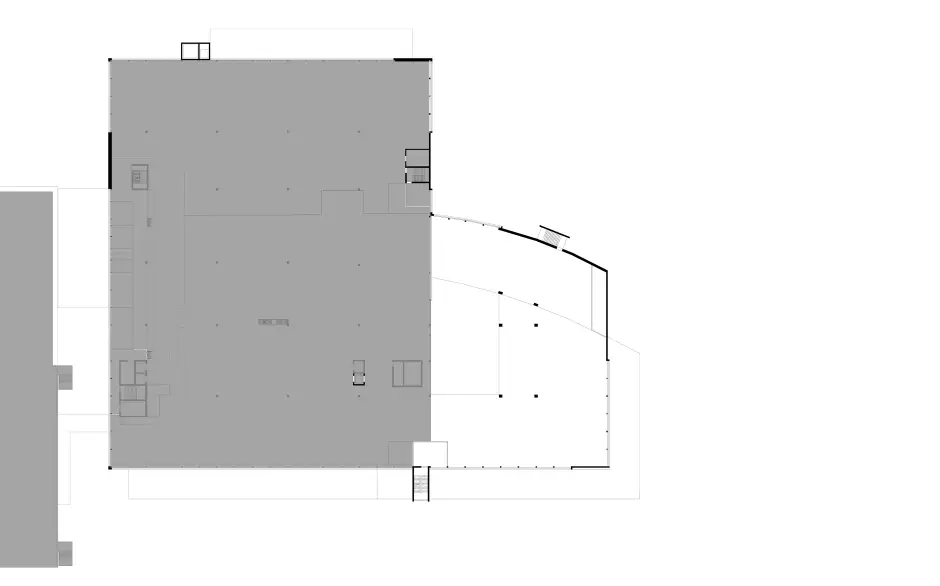
G65 A HP Schwarzplan
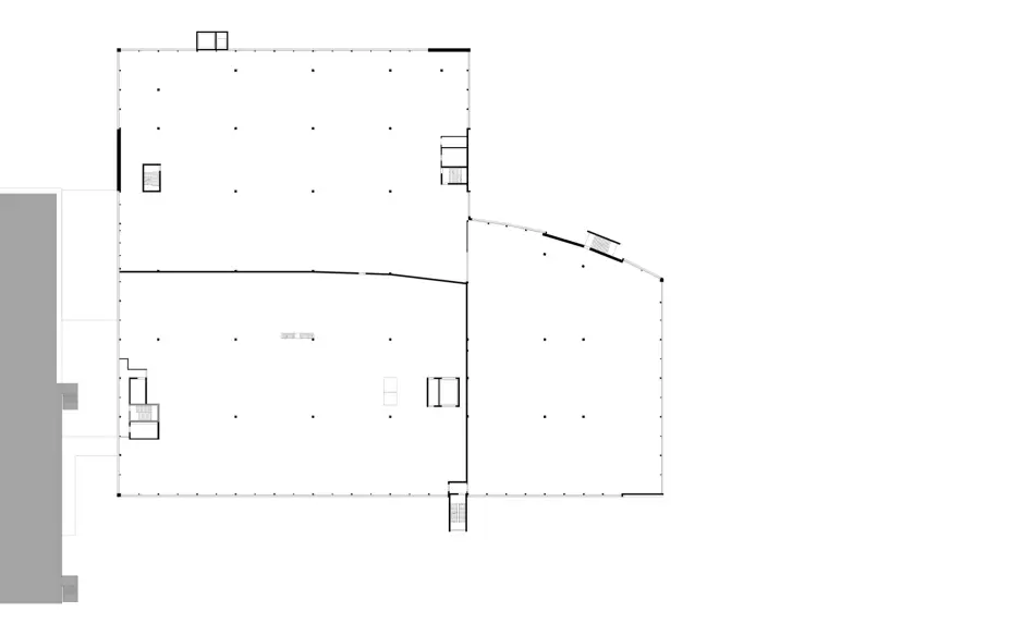
G65 A HP Grundriss Erdgeschoss
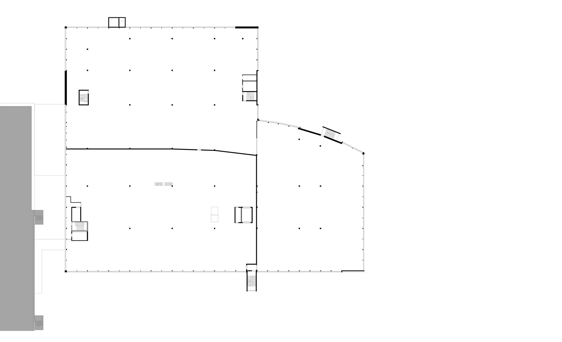
G65 A HP Grundriss 1 Obergeschoss
G65 A HP Grundriss 2 Obergeschoss
G65 A HP Fassade Süd

Typ

Industrie & Gewerbe

Ort

Schönbühl

Auftraggeber

Genossenschaft Migros Aare

Fertigstellung

2021

Wettbewerb

1. Rang, 2016

Kopiert!