H04 Schwarzplan Header

2019 | Industrie & Gewerbe

Logistikplattform LeShop | Moosseedorf

Die Logistikplattform ist ein weiterer Baustein auf dem riesigen Areal der Migros Schönbühl. Das Lagergebäude wird ergänzt durch Anlieferungsrampen, Komissionierbereiche sowie Büroräumlichkeiten.

Die Fassade mit ihrer Profilitverglasung und den grossen Fenstern orientiert sich am Neubau der Betriebszentrale 4, die ebenfalls von Frei Architekten geplant wird.

Impressionen
Pläne
Kenndaten
H04 Visualisierung Aussen Header
H04 HP Schwarzplan
H04 HP Situation
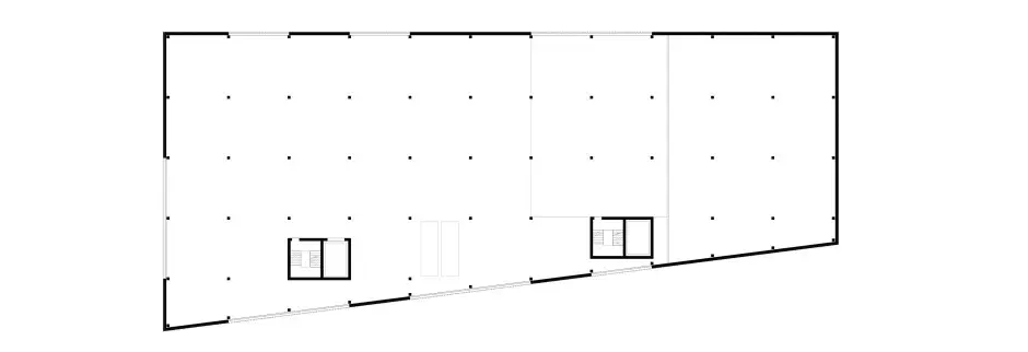
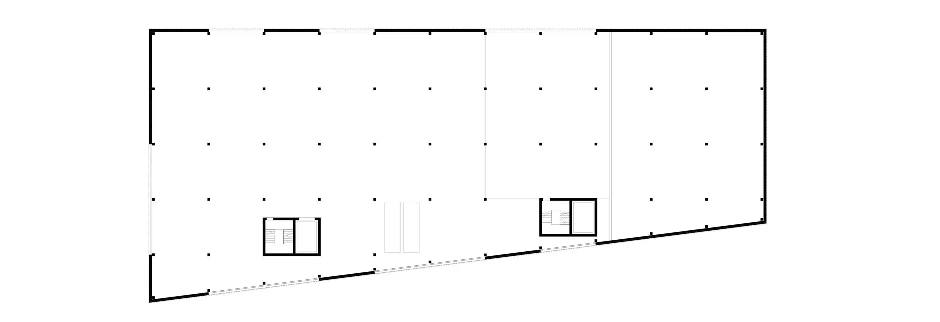
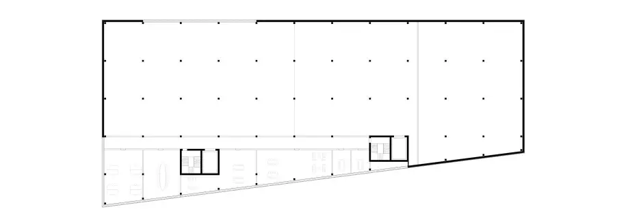
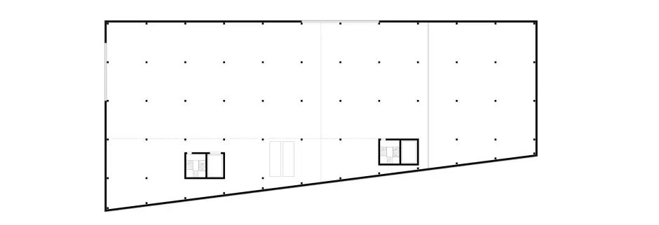
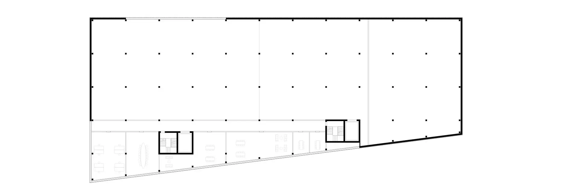
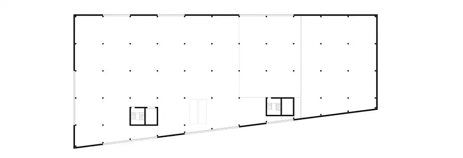
H04 HP Grundriss Erdgeschoss
H04 HP Grundriss 1 Obergeschoss
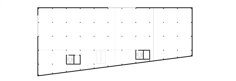
H04 HP Grundriss 2 Obergeschoss
H04 HP Grundriss 3 Obergeschoss
H04 HP Grundriss Untergeschoss
H04 HP Querschnitte
H04 HP Längsschnitt
H04 HP Fassaden Nord und Süd
H04 HP Fassade Ost
H04 HP Fassade West

Alle Pläne anzeigen

Typ

Industrie & Gewerbe

Ort

Moosseedorf

Auftraggeber

Genossenschaft Migros Aare

Kopiert!