H92 C HP Schwarzplan

2025 | Industrie & Gewerbe

Logistikhub Mittelland 3 | Limmatstadt

Impressionen
Pläne
Kenndaten
H92 C Visualisierung Aussen
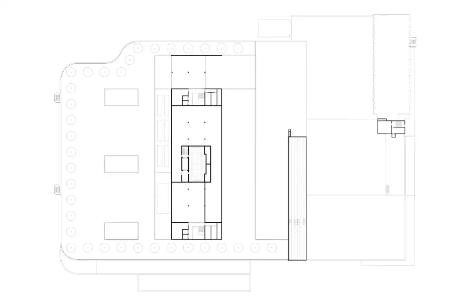
H92 C HP Schwarzplan
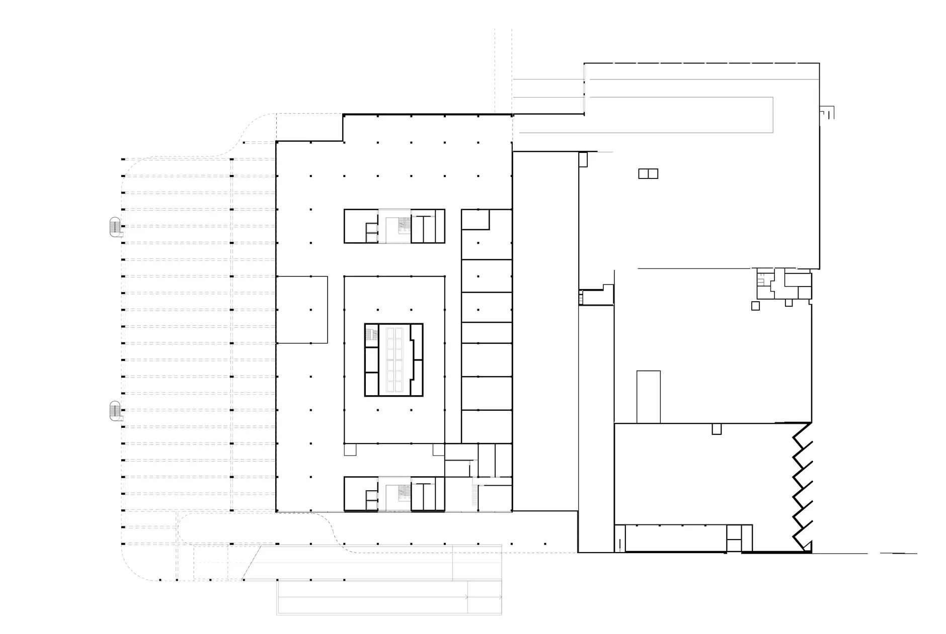
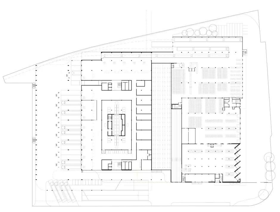
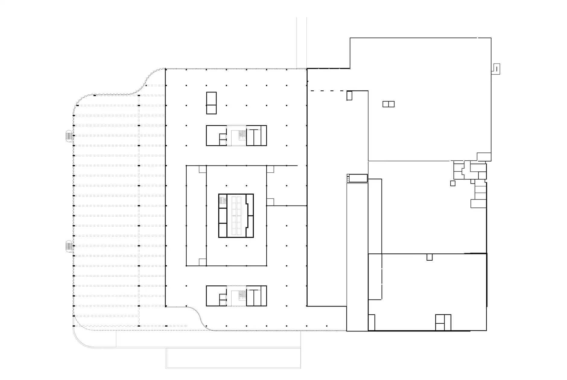
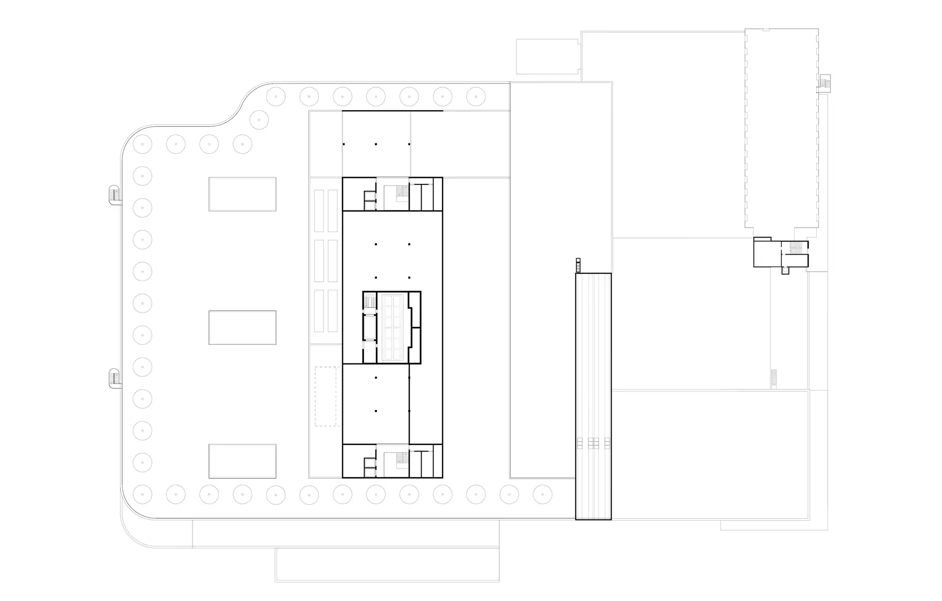
H92 C HP Grundriss Erdgeschoss
H92 C HP Grundriss Erdgeschoss ZG
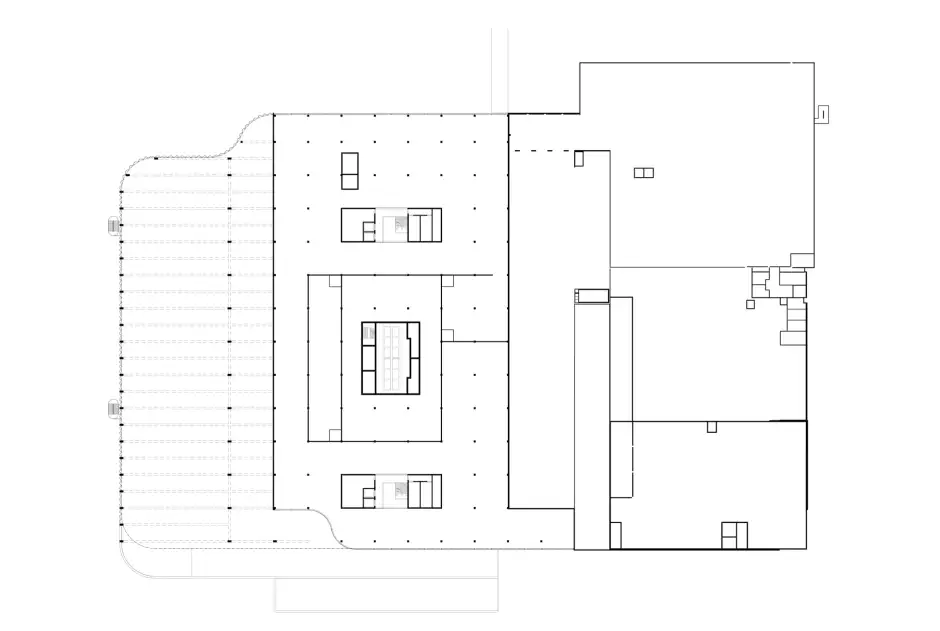
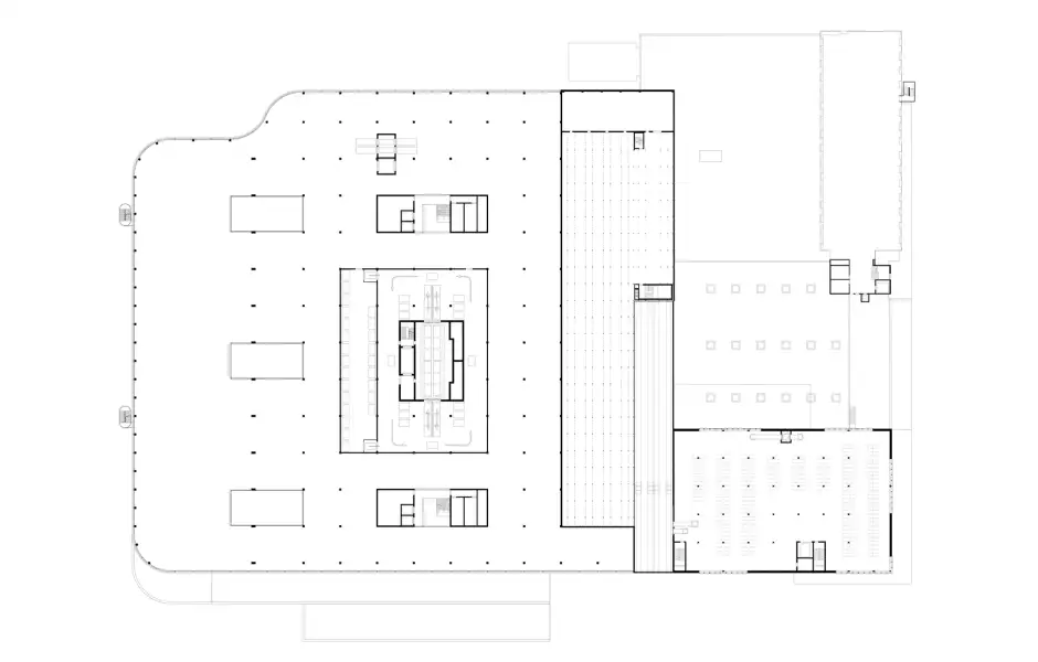
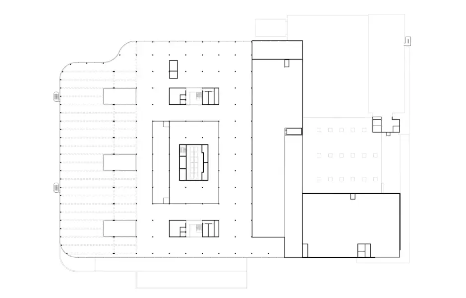
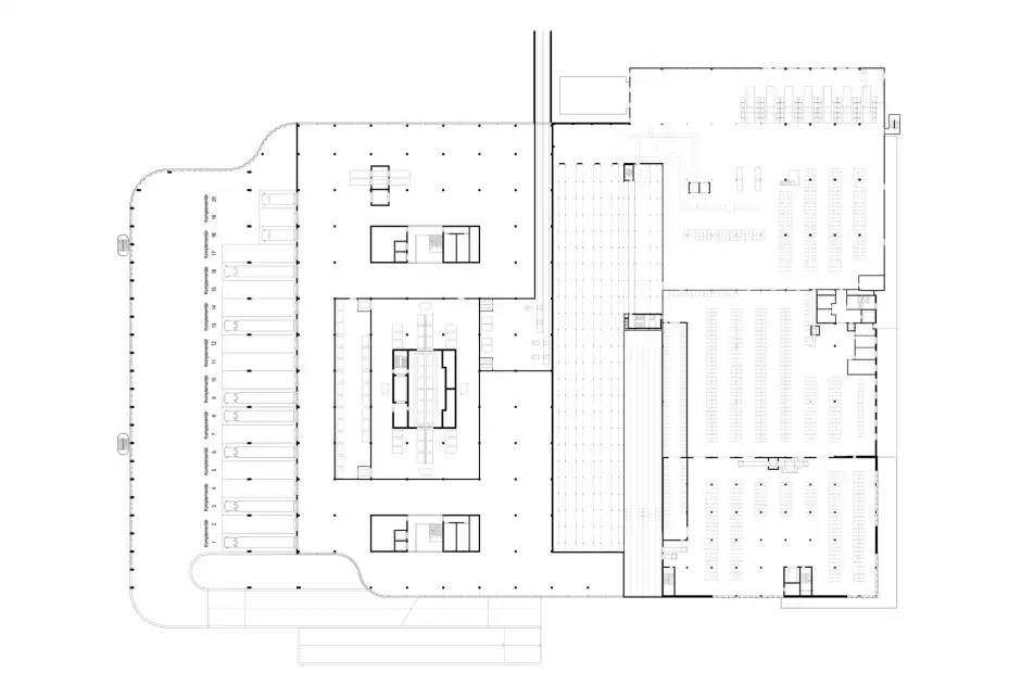
H92 C HP Grundriss 1 Obergeschoss
H92 C HP Grundriss 1 Obergeschoss ZG
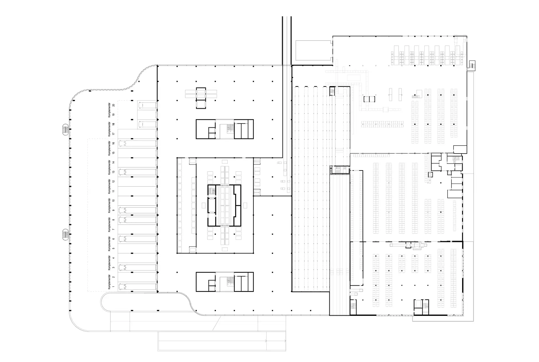
H92 C HP Grundriss 2 Obergeschoss
H92 C HP Grundriss 2 Obergeschoss ZG
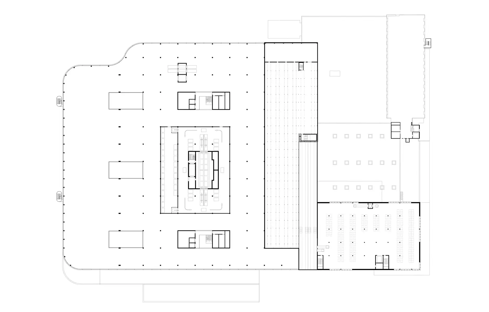
H92 C HP Grundriss Dachgeschoss
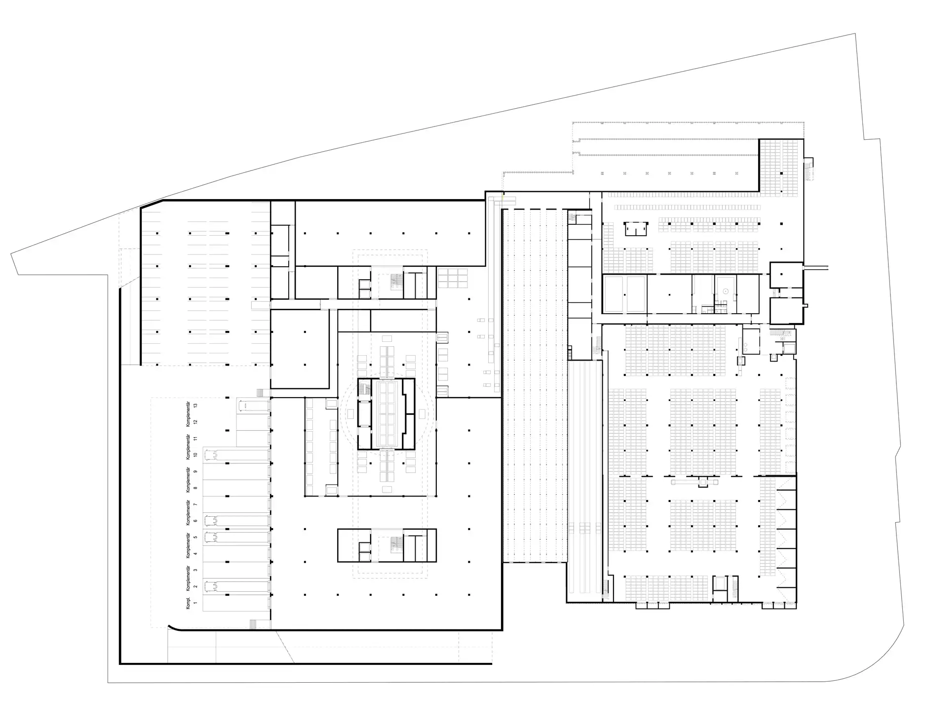
H92 C HP Grundriss Untergeschoss
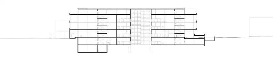
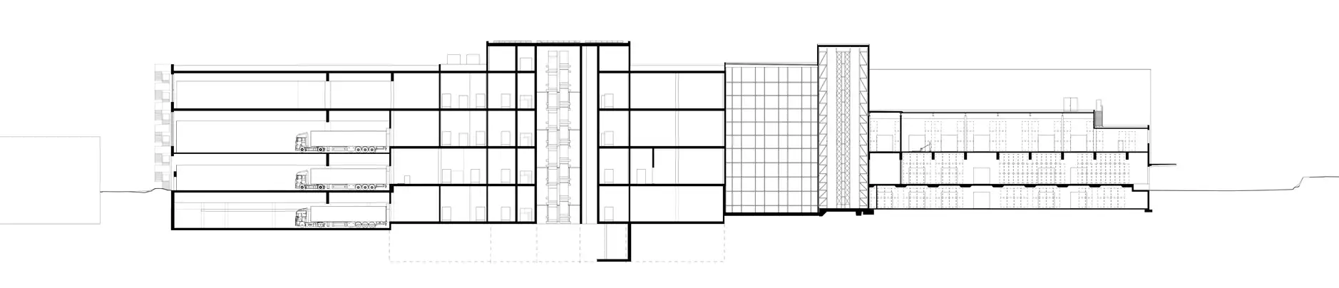
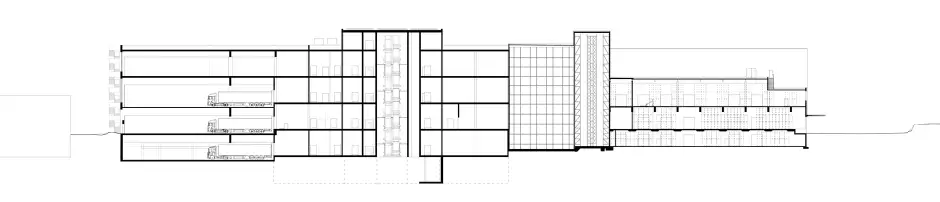
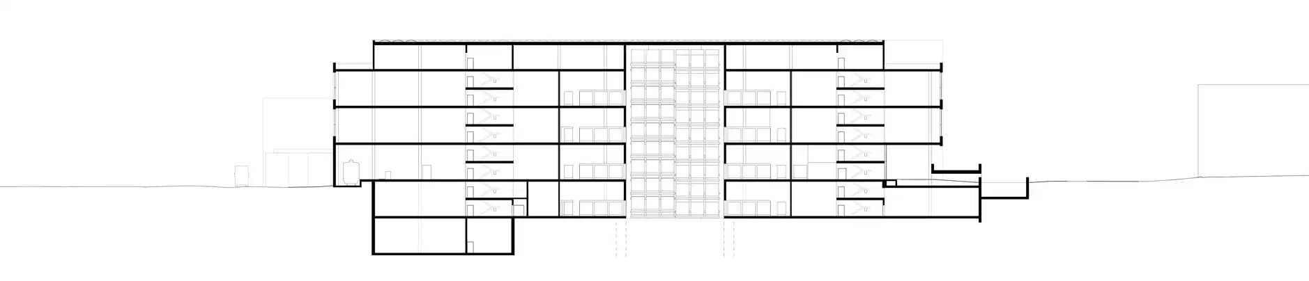
H92 C HP Schnitt 1
H92 C HP Schnitt 2

Alle Pläne anzeigen

Typ

Industrie & Gewerbe

Ort

Spreitenbach

Auftraggeber

Privat

Kopiert!