H92 B Visualisierung Aussen 01

2025 | Industrie & Gewerbe

Logistikhub Schafisheim | Schafisheim

Impressionen
Pläne
Kenndaten
H92 B Visualisierung Aussen 02
H92 HP Schwarzplan
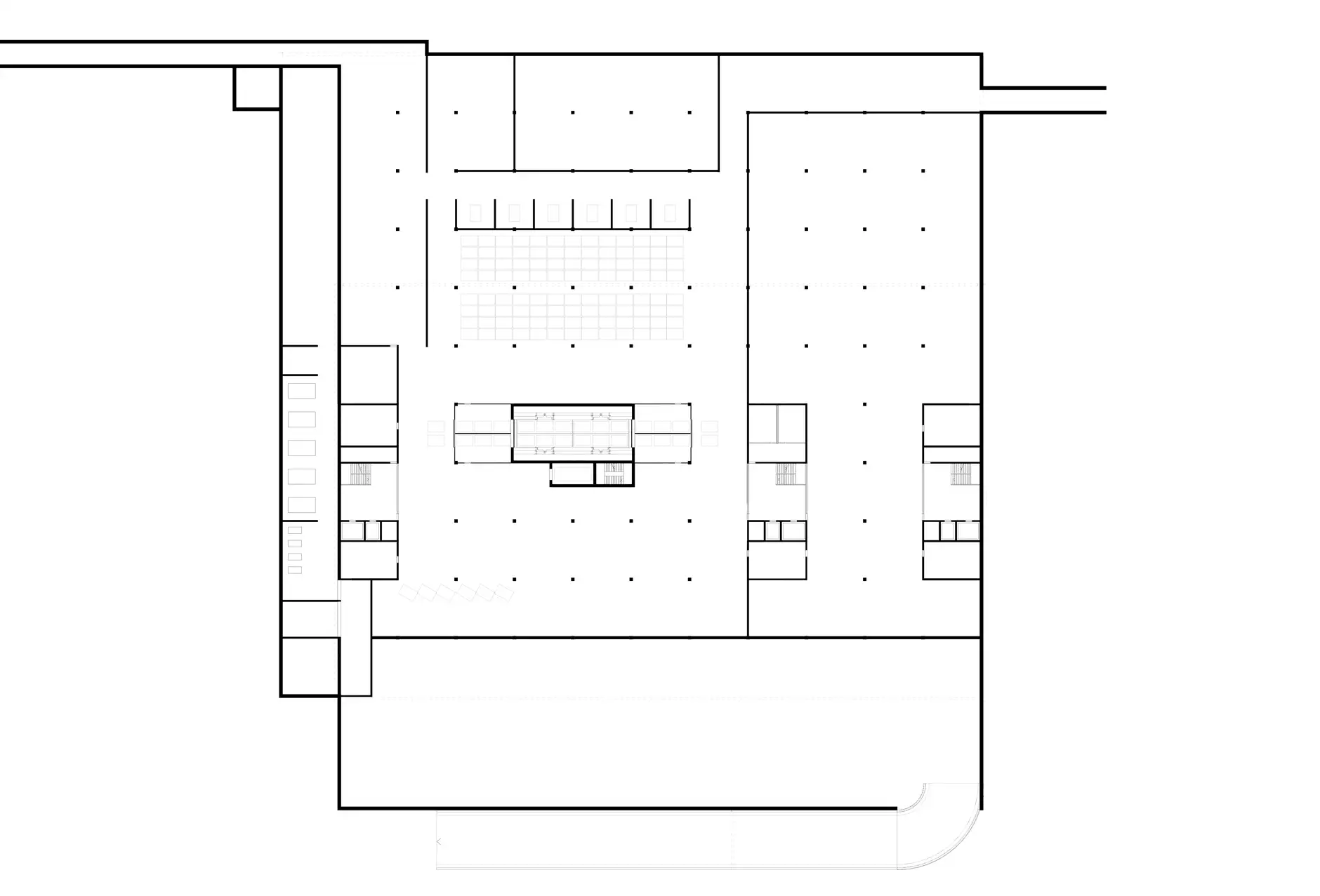
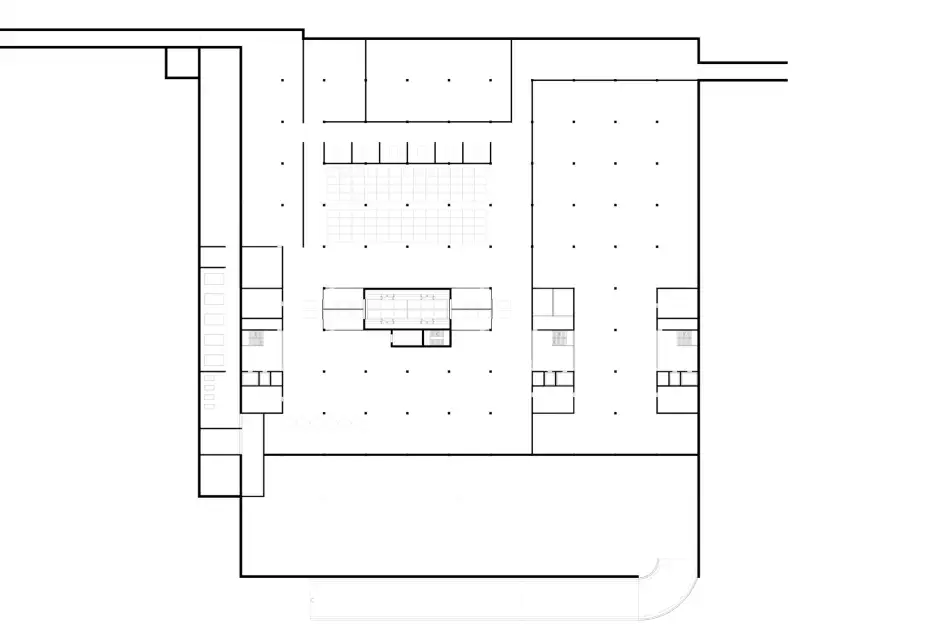
H92 HP Grundriss Erdgeschoss
H92 HP Grundriss 1 Obergeschoss
H92 HP Grundriss 2 Obergeschoss
H92 HP Grundriss 3 Obergeschoss
H92 HP Grundriss Dachgeschoss
H92 HP Grundriss Untergeschoss
H92 HP Fassade Nord
H92 HP Fassade Ost
H92 HP Fassade Süd
H92 HP Fassade West

Alle Pläne anzeigen

Typ

Industrie & Gewerbe

Ort

Schafisheim

Auftraggeber

Privat

Arbeitsgemeinschaft

ARGE CST Architektur

Kopiert!