H92 A Schwarzplan Header

2025 | Industrie & Gewerbe

Logistikhub Mittelland 1 | Suhr

Impressionen
Pläne
Kenndaten
H92 A Visualisierung Aussen
H92 A HP Schwarzplan
H92 A HP Grundriss Erdgeschoss
H92 A HP Grundriss Erdgeschoss ZG
H92 A HP Grundriss 1 Obergeschoss
H92 A HP Grundriss 1 Obergeschoss ZG
H92 A HP Grundriss 2 Obergeschoss
H92 A HP Grundriss 2 Obergeschoss ZG
H92 A HP Grundriss 3 Obergeschoss
H92 A HP Grundriss 3 Obergeschoss ZG
H92 A HP Grundriss Dachgeschoss
H92 A HP Grundriss Untergeschoss
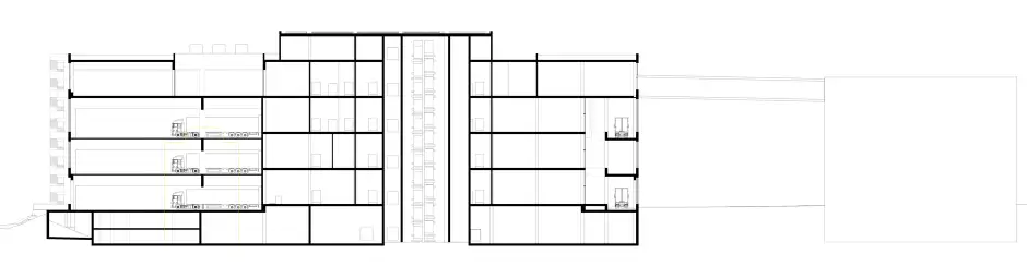
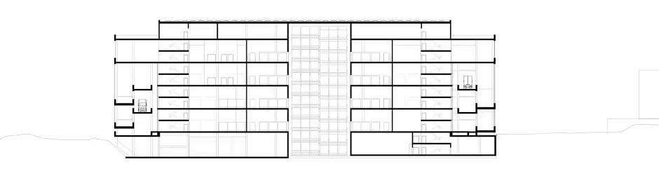
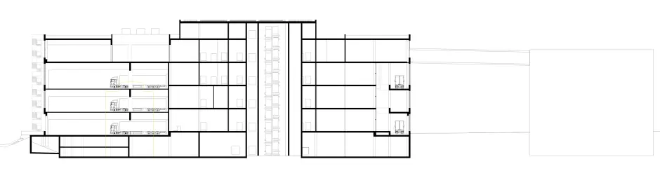
H92 A HP Schnitt 1
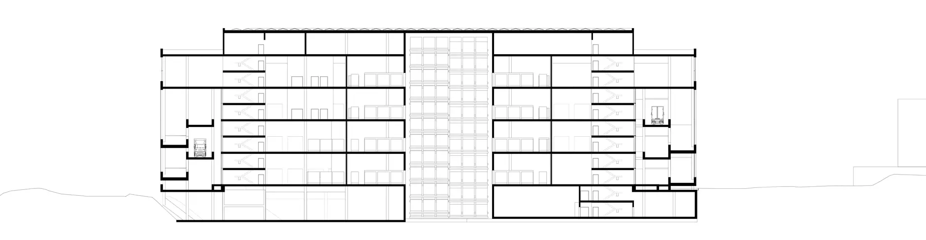
H92 A HP Schnitt 2

Alle Pläne anzeigen

Typ

Industrie & Gewerbe

Ort

Suhr

Auftraggeber

Privat

Kopiert!