E13 Foto Aussen Nordostfassade

2012 | Industrie & Gewerbe

Logistikcenter | Spreitenbach

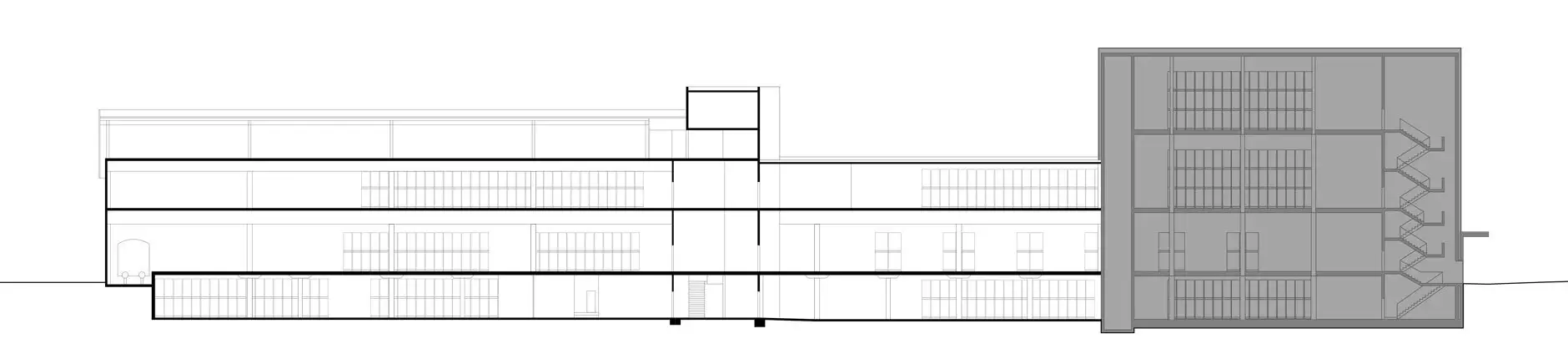
Der Logistikkomplex für Lebensmittelagerung, -umschlag und -verteilung wurde mit drei Hauptelementen, einem Blocklager, einem Hochregallager und einem Fabrikshop erweitert. Die südseitige Erweiterung mit der Spedition im Erdgeschoss sowie Kommissionier- und Lagerbereichen im Unter- und den beiden Obergeschossen wurde in konventioneller Betonskellettbauweise erstellt. Geschosse mit 6m Höhe und hohen Nutzlasten charakterisieren diesen Bereich. Der Zwischenraum zwischen der neuen Erweiterung und dem bestehenden Hochregallager wurde mit einem zweiten Hochregallager aufgefüllt. Ein neuer Fabrikshop am Arealeingang bildet den Kopf des gesamten Logistikcenters.

Die Fassaden des bestehenden, rund 100m langen Hochregallagers wurden saniert und mit einer neuen Hülle versehen. Diese Gebäudehülle aus rohem Aluminium zieht sich weiter über sämtliche neu erstellten Fassaden und bindet das heterogene Gefüge zu einer Einheit zusammen. Die einzelnen Aluminiumbahnen wurden leicht verzogen angebracht, so dass der Effekt eines zerknüllten Schokoladenpapieres entsteht. Diese Fassadengestaltung ist als Referenz und Hinweis auf die im Innern gelagerten Schokoladenprodukte zu verstehen.

Impressionen
Pläne
Kenndaten
E13 Foto Aussen Südostfassade 02
E13 Foto Aussen Südwestfassade 03
E13 Foto Aussen Südostfassade 01
E13 Foto Aussen Südostfassade 03
E13 Foto Aussen Südwestfassade 01
E13 Foto Aussen Dach Nordostfassade 03
E13 Foto Aussen Dach Nordostfassade 02
E13 Foto Aussen Dach Nordostfassade 01

Alle Bilder anzeigen

E13 HP Schwarzplan
E13 HP Situation
E13 HP Grundriss Erdgeschoss
E13 HP Schnitt A
E13 HP Schnitt B
E13 HP Fassade West

Typ

Industrie & Gewerbe

Ort

Spreitenbach

Auftraggeber

Lagerhäuser Aarau

Fertigstellung

2012

Gebäudevolumen

73'050 m³

Fotograf

Thomas Zueger

Kopiert!