E29 C Foto Aussen Nordostfassade 02

2012 | Industrie & Gewerbe

Lagerhäuser Aarau | Schafisheim

Die bestehenden Lagergebäude der Lagerhäuser Aarau in Schafisheim werden um ein neues Pallettenlager mit einem Büroteil im 3. Obergeschoss erweitert. Das Gebäude wird auf dem bestehenden Firmenareal errichtet und ersetzt die bestehenden Hallen 1+2, welche abgerissen werden. Der Hauptteil bildet das Pallettenlager, welches sich über vier oberirdische und ein unterirdisches Geschoss erstreckt. Im Erdgeschoss befindet sich auf der Nordseite die An-/Auslieferung für Lastwagen und auf der Südseite die An-/Auslieferung für die Bahn. Im 3. Obergeschoss befinden sich neben dem Pallettenlager ein Produktionsbereich, Sozial- und Technikräume sowie der Bürobereich.

Die Fassade ist in drei Zonen gegliedert: die erdgeschossige Sockelzone in Beton, die Obergeschosse mit einer hinterlüfteten Blechfassade, sowie das 3. Obergeschoss mit einem dreiseitig umlaufenden Fensterband.

In Analogie zum bestehenden Hochregallager mit seinem einprägsamen Fassadenmuster wird für den Neubau Halle 1+2 die Thematik weitergeführt. Das Fassadenmuster strukturiert die Fassaden des Gebäudes, reduziert dessen Dimensionen und verbindet es gleichzeitig mit dem bestehenden Hochregallager. Die trapezförmigen Aluminiumbleche sind abwechselnd in schwarzem resp. naturfarbigem Aluminium materialisiert. Durch die unterschiedliche Stellung entsteht ein 3-D Effekt. Dieses Fassadenmuster wurde von Prof. Jürg Nänni entworfen.

Impressionen
Pläne
Kenndaten
E29 C Foto Aussen Nordostfassade 01
E29 C Foto Aussen Fassade Fenster
E29 C Foto Aussen Fassade Eck
E29 C Foto Aussen Fassade Struktur
E29 C Foto Aussen Nordfassade Fensterband
E29 C Foto Innen Halle
E29 C HP Schwarzplan
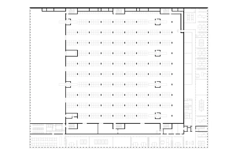
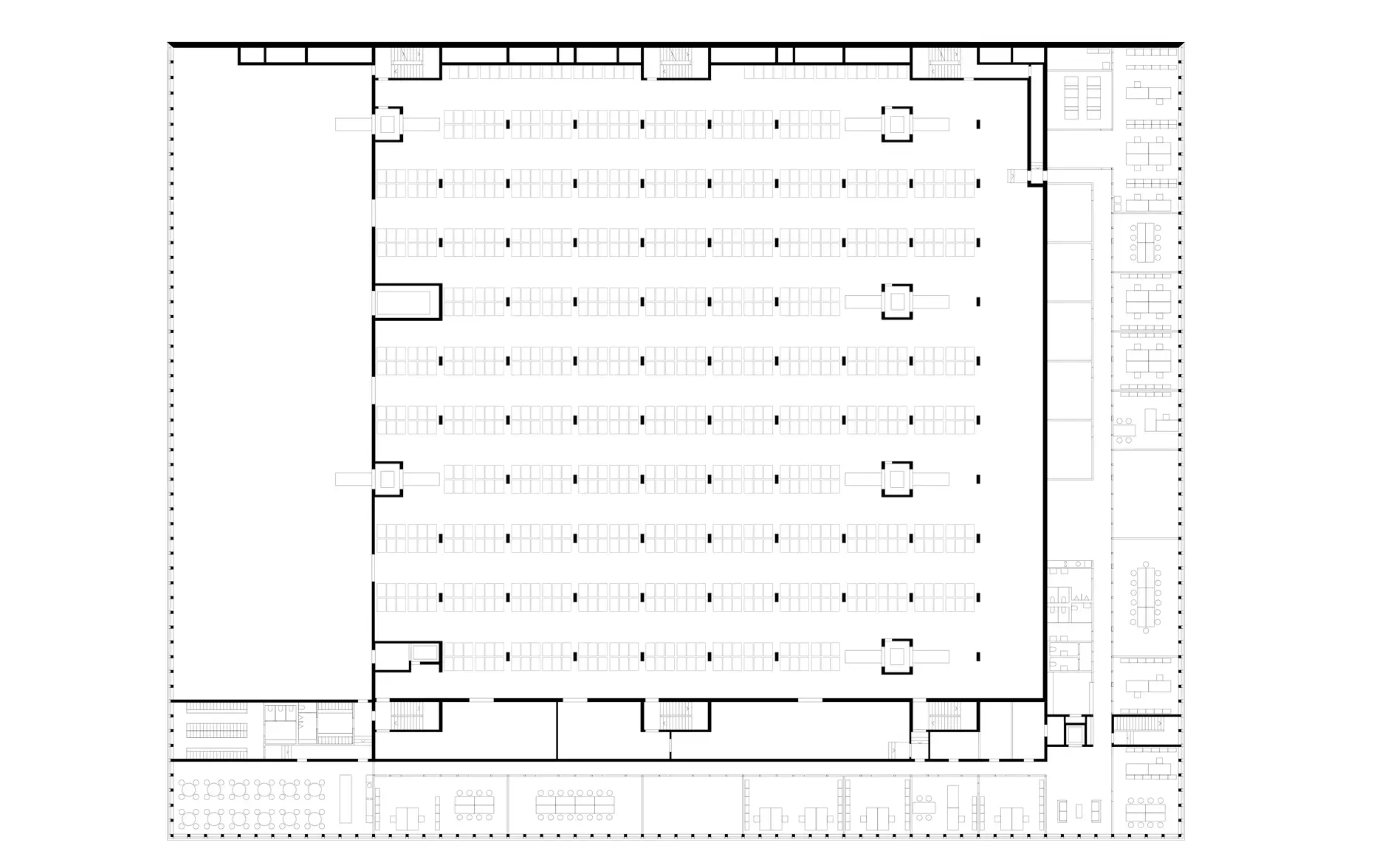
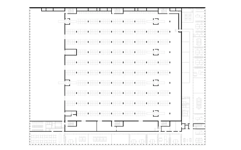
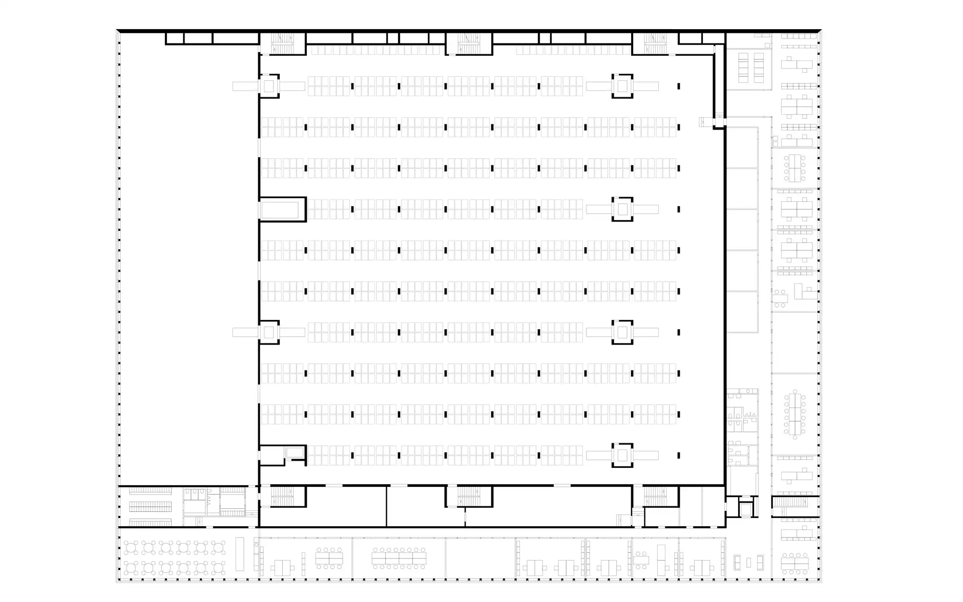
E29 C HP Grundriss Erdgeschoss
E29 C HP Grundriss 1 Obergeschoss
E29 C HP Grundriss 3 Obergeschoss
E29 C HP Schnitt 2
E29 C HP Schnitt 1
E29 C HP Fassade Nord
E29 C HP Fassade Ost

Alle Pläne anzeigen

Typ

Industrie & Gewerbe

Ort

Schafisheim

Auftraggeber

Lagerhäuser Aarau

Fertigstellung

2012

Kunst am Bau

Jürg Nänni

Kopiert!