2012 | Industrie & Gewerbe
Kundenservicecenter Bucher Guyer | Niederweningen
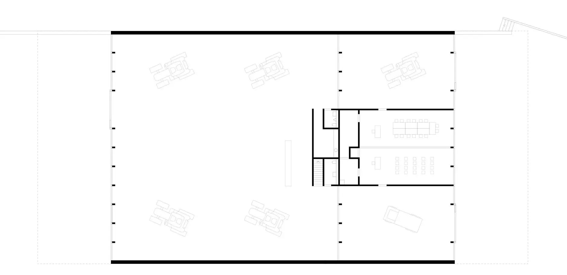
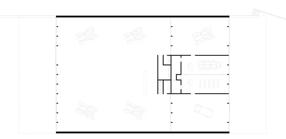
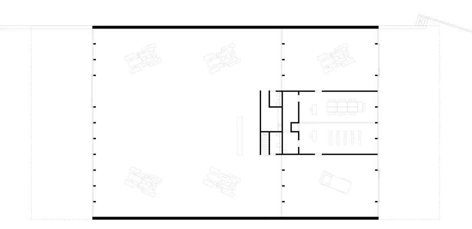
Das Gebäude der Firma Bucher Guyer ersetzt eine Fabrikhalle auf dem Firmengelände in Niederweningen. Städtebaulich bildet das Kundenservicecenter für Traktoren das Gesicht des Werkgeländes zur Kantonsstrasse und zum Bahnhof Niederweningen hin. Als einfacher Kubus mit zwei grossen, auskragenden Vordächern gegen Westen und Osten fügt sich der Bau selbstverständlich in die Struktur des Firmenareals ein. Die West- und die Ostfassade sind vollständig verglast und ermöglichen Einblicke ins Innere.
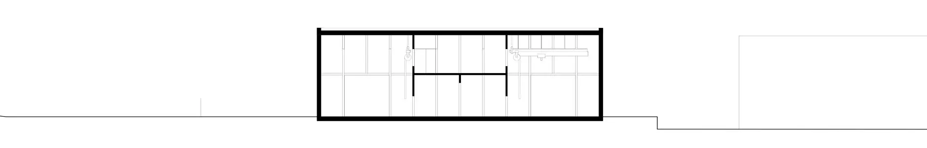
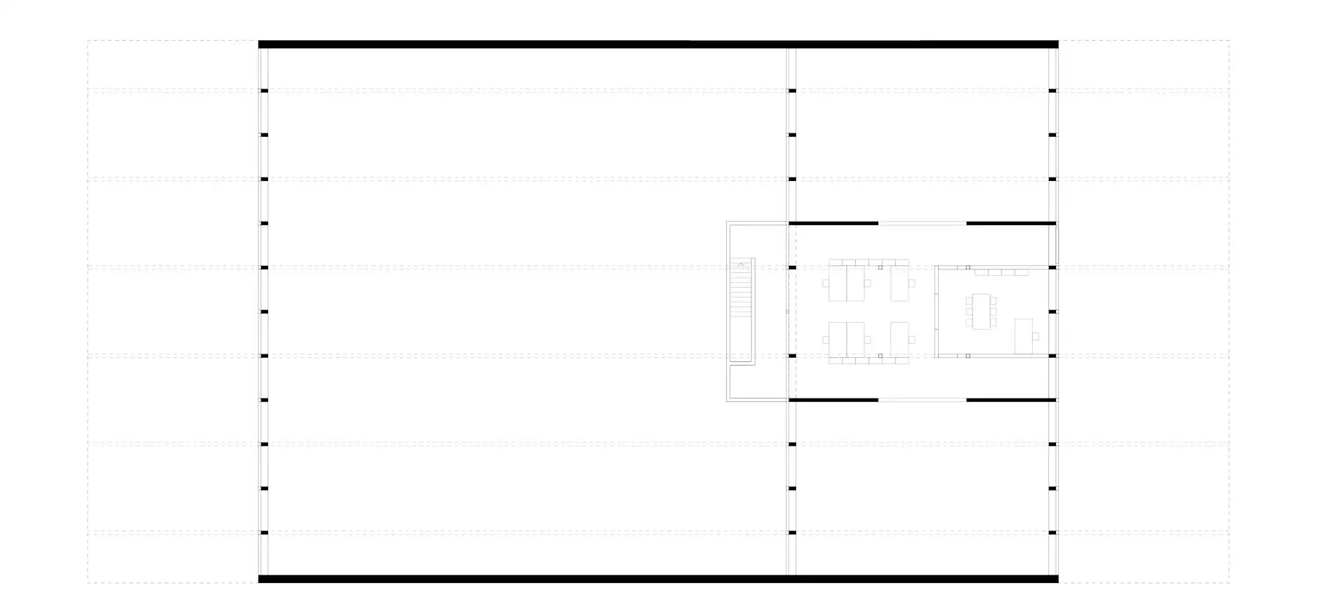
Der Niveauunterschied zwischen dem Grundstück und dem restlichen Firmengelände wurde beibehalten und schafft eine Plattform, auf der das Kundenservicecenter positioniert ist. In die grosse, stützenlose Ausstellungshalle wurden Theorie- und Nebenräume als Box hineingestellt. In Anlehnung an den ländlichen Kontext wurde das Gebäude in Holz errichtet. Durch die hohen, in Längsrichtung verlaufenden Primärträger und die darauf aufgelegten Querträger wird die seitlich und zenital belichtete Ausstellungsfläche rhythmisiert. Struktur, Form und Licht definieren den Raum und schaffen eine fast museale Atmosphäre, in der die Maschinen beinahe wie Kunstwerke wirken. Sämtliche innere Oberflächen wurden unbehandelt belassen und tragen zur Wirkung des Showrooms bei.
Durch die grossen Vordächer entstehen geschützte Aussenräume. Die Glasfronten sowie die vertikal strukturierte Fassadenverkleidung aus Blech entlang der geschlossenen Längsseiten sorgen für eine zurückhaltende, aber elegante Erscheinung.
Typ
Industrie & Gewerbe
Ort
Niederweningen
Auftraggeber
Bucher Guyer AG
Fertigstellung
2012
Fotograf
Daniel Schäfer