F83 Foto Aussen Header

2014 | Industrie & Gewerbe

Gewerbehaus "Vorderi Böde" | Oberrohrdorf

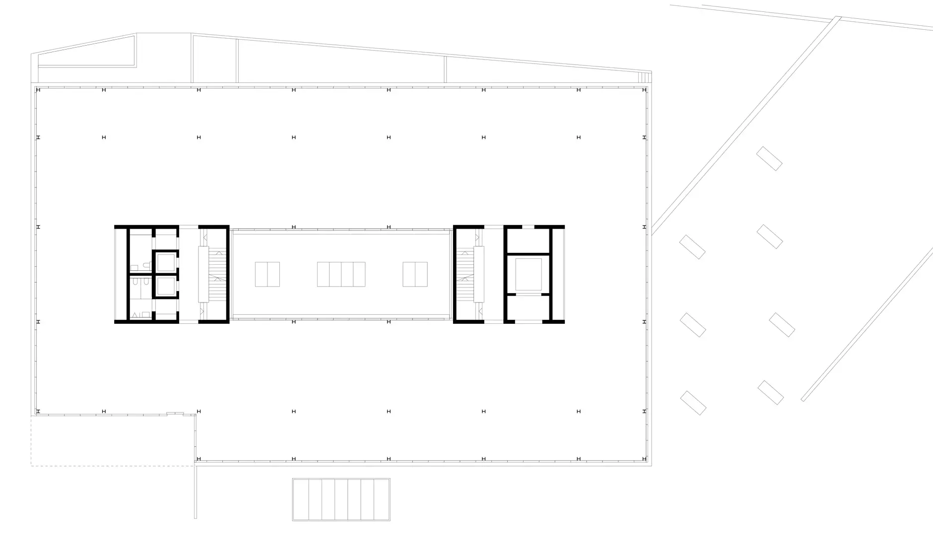
Der Neubau liegt im Gewerbebereich „Vorderi Böde“. Die ortsbauliche Setzung des Bauvolumens ist durch den Bebauungsplan bestimmt. Der kompakte, rechteckige Gebäudekörper liegt parallel zur Badenerstrasse. Mit den drei Vollgeschossen und einem auf den Gebäudelängsseiten zurückgesetzten Attikageschoss gelingt die massstäbliche Integration des Bauvolumens in den bestehenden baulichen Kontext. Durch die leichte Hanglage tritt das Gebäude von der Kantonsstrasse her als dreigeschossiges Bauvolumen mit Attika in Erscheinung. Von Westen, von der Zufahrt Vorderi Böde her, wird das Volumen mit nur zwei Geschossen und einem Attika wahrgenommen.

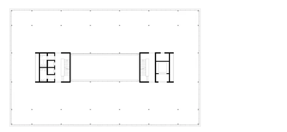
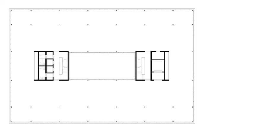
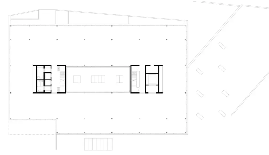
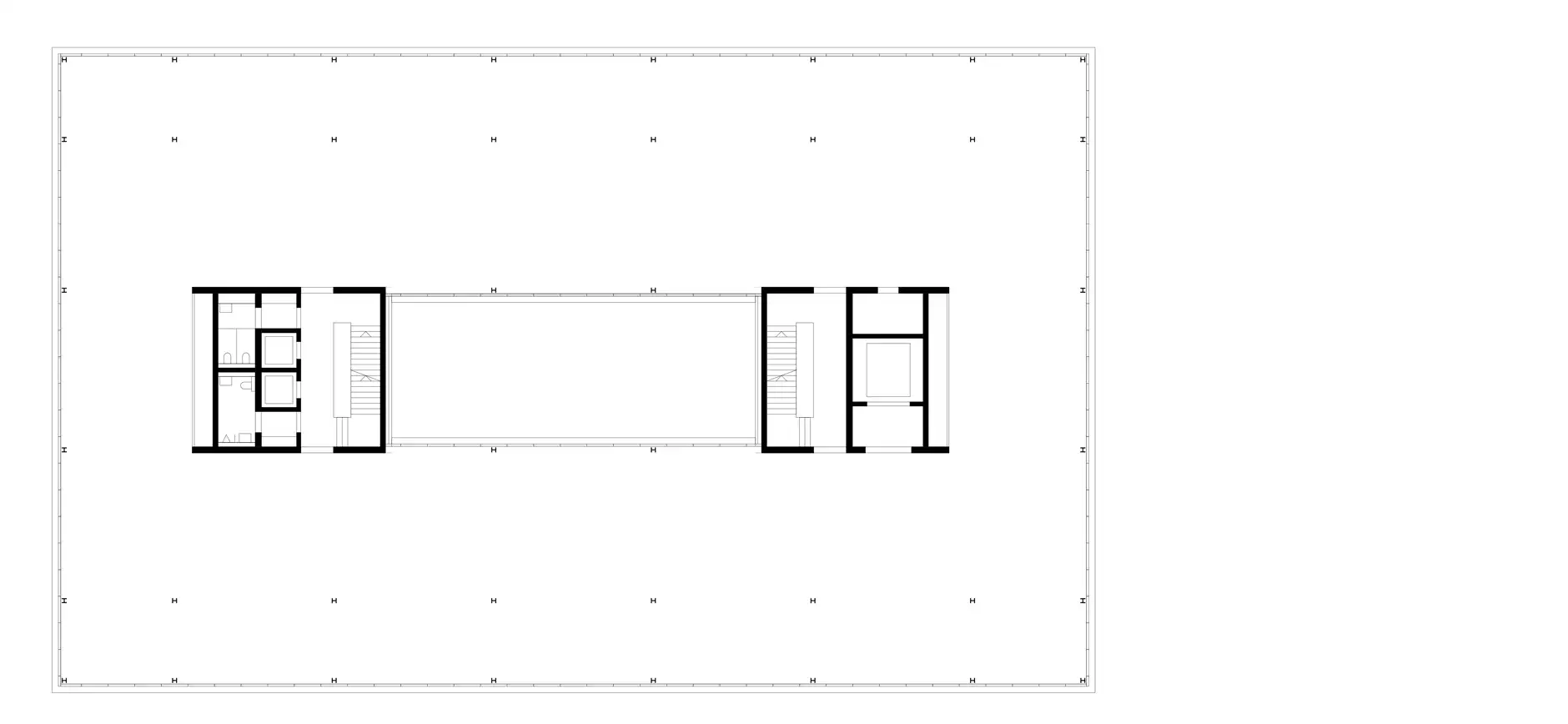
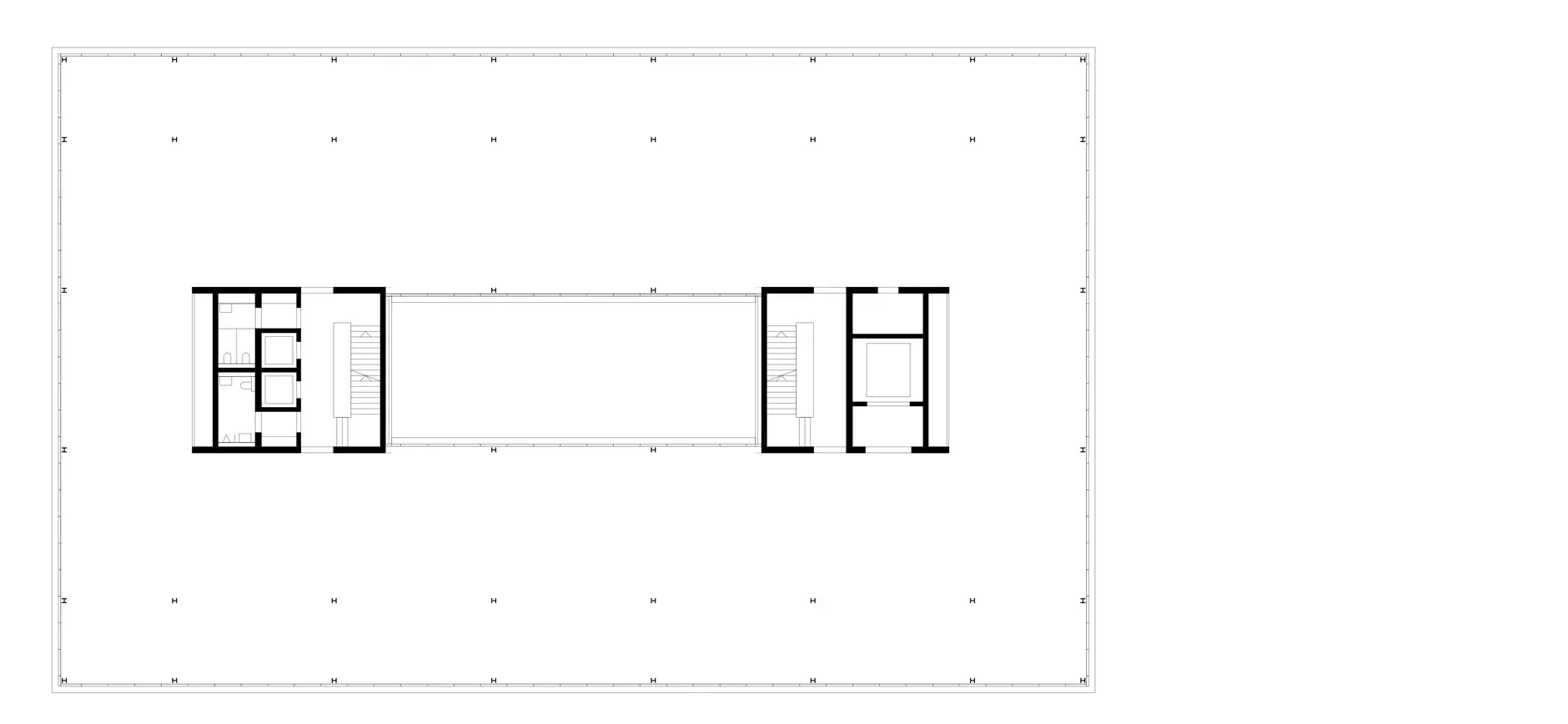
Vom Eingangsgeschoss bis zum Attika sind Flächen für Büronutzungen angeordnet. Der Zugang wird durch einen Rücksprung der Fassade im Eingangsbereich akzentuiert. Für eine optimale natürliche Belichtung des tiefen Gebäudekörpers sorgt ein grosszügiger Innenhof.

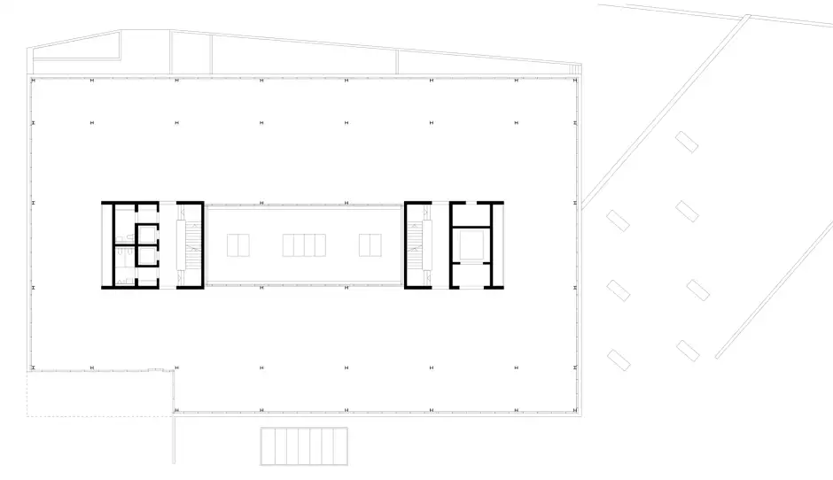
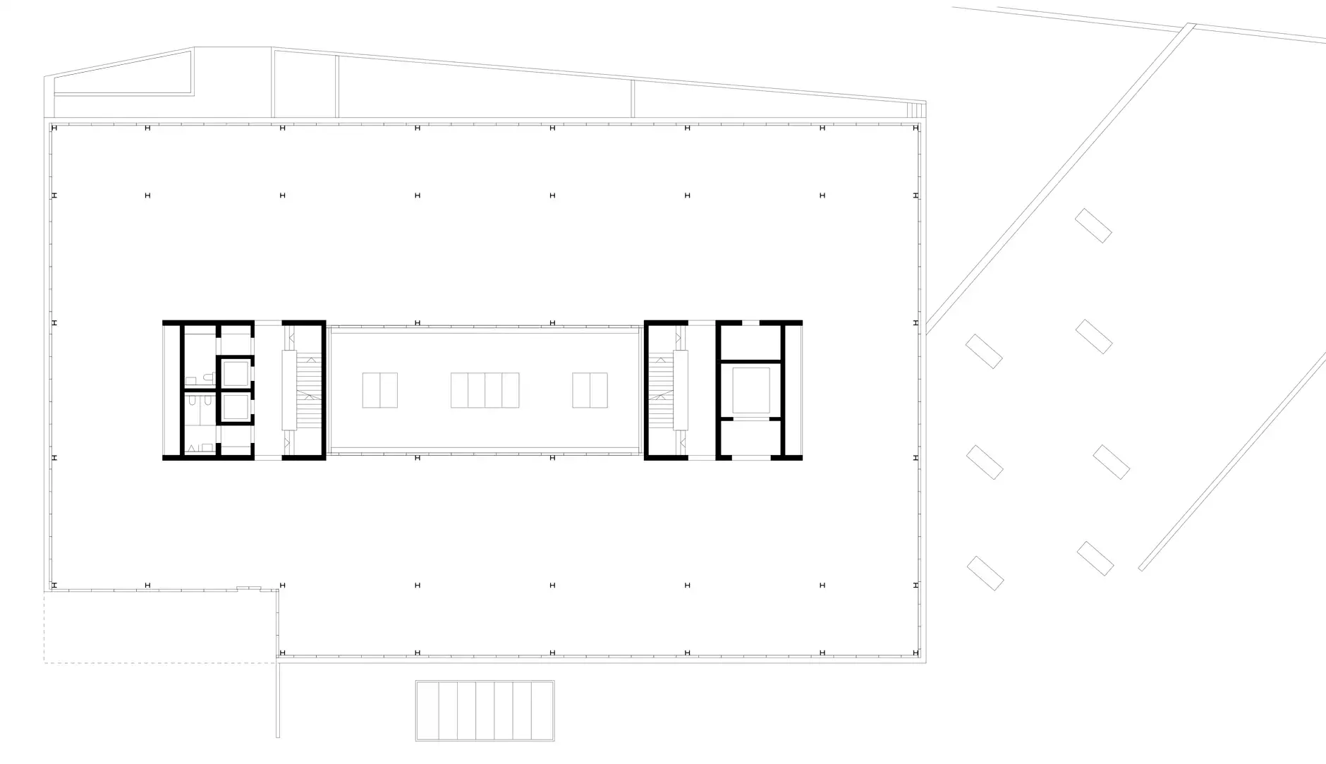
Die Anlieferung erfolgt über das Untergeschoss. Die Andockstellen liegen im überdachten Bereich auf der Südseite des Gebäudes. Im Anlieferungsgeschoss, sowie in der darunterliegenden Ebene befinden sich Lager- und Kommissionierflächen. Die natürliche Belichtung dieser Flächen wird über die raumhohen Fenster auf der Ostfassade, über den zentralen Lichthof und eine „Lichtkanone“ im erdberührten Bereich der Geschosse gewährleistet.

Die äussere Gestaltung der Bauten weist eine horizontale Gliederung mit umlaufenden Geschossbändern auf. Die Fassadenmaterialisierung reflektiert die Gebäudekonstruktion. Die oberen Geschosse, welche als Stahlbaukonstruktion realisiert wurden, verfügen über leichte und filigrane Brüstungsbänder mit einer horizontal geschichteten Profilit-Verglasung. Die erdberührten Geschosse sind in Ortbeton konstruiert.

Impressionen
Pläne
Kenndaten
F83 Foto Aussen Fussweg
F83 Foto Aussen
F83 Foto Aussen Eck
F83 Foto Innen Treppenhaus
F83 Foto Innen Küche
F83 Foto Innen Korridor
F83 Foto Innen Restaurant Terrasse
F83 Foto Innen Cafeteria 02
F83 Foto Innen Cafeteria 01

Alle Bilder anzeigen

F83 HP Schwarzplan
F83 HP Situation
F83 HP Grundriss Ebene 1
F83 HP Grundriss Ebene 2
F83 HP Grundriss Ebene 3
F83 HP Grundriss Ebene 4
F83 HP Grundriss Ebene 5
F83 HP Grundriss Ebene 6
F83 HP Grundriss Ebene 7
F83 HP Schnitt A
F83 HP Schnitt B
F83 HP Fassade Nordwest
F83 HP Fassade Südwest

Alle Pläne anzeigen

Typ

Industrie & Gewerbe

Ort

Oberrohrdorf

Auftraggeber

Vorderi Böde AG

Fertigstellung

2014

Gebäudevolumen

42‘188 m³

Hauptnutzfläche

10‘180 m²

Kopiert!