F27 C Foto Header

2016 | Industrie & Gewerbe

Gewerbehaus Hangartner | Aarau

Das Hangartner Areal liegt in einem Aussenquartier von Aarau am Übergang zwischen der schweizweit bekannten Telli-Wohnüberbauung und einem Gewerbegebiet. Das neue Gebäude bildet den markanten östlichen Abschluss des angrenzenden Wohnquartiers.

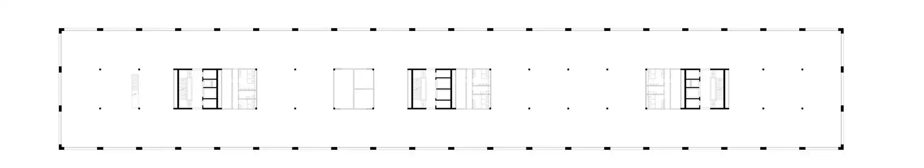
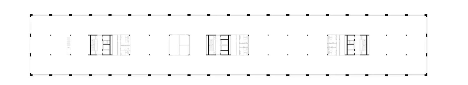
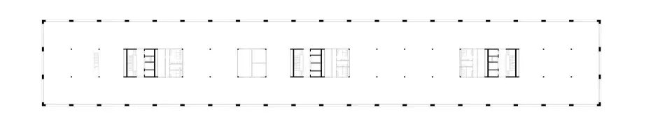
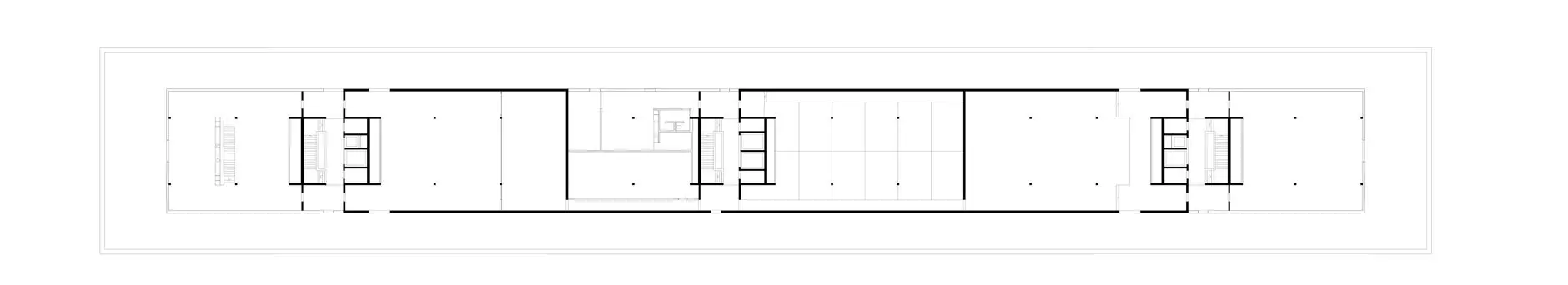
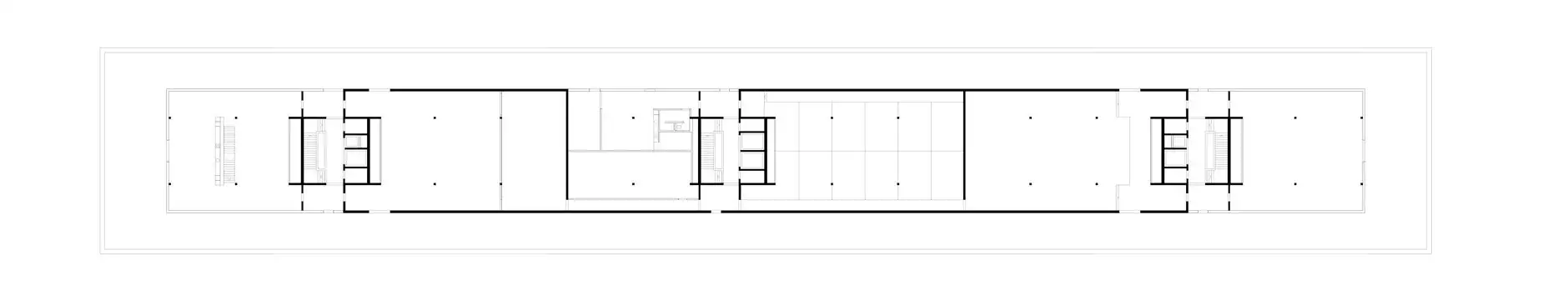
Der viergeschossige Bau mit Technikgeschoss ist 170 Meter lang und 25 Meter breit. Er ist dreibündig und wird von drei Treppenhauskernen erschlossen. Im überhohen Erdgeschoss sowie in den drei Obergeschossen sind flexibel unterteilbare Büro- und Gewerbeflächen. Der Büroraster von 1,40 Meter bildet mit dem Sechsfachen den Stützenraster von 8,40m mal 8,40 Meter, der wiederum ideal ist für die darunterliegende Tiefgarage.  Auf dem Dach sind die Haustechnikanlagen und im Süden und Norden je ein Aufenthaltsbereich mit interner Erschliessung und Aussenterrasse untergebracht. 

Die konzeptionelle und rationale Fassade mit ihrem spröden Charme besteht aus Brüstungen und Pfeilern aus vorfabrizierten, eingefärbten und geschliffenen Betonelementen. Um Kittfugen zu vermeiden, wurden die horizontalen Elementstösse überlappend ausgebildet und die vertikalen mit Aluminiumblech verkleidet. Zusammen mit den horizontalen Blechabdeckungen der Fensterbrüstungen ergibt sich ein spannendes Spiel zwischen den dunkel eingefärbten Betonelementen und den hellen Aluminiumintarsien. Die grossen Metallfenster spiegeln die einfache und funktionale Disposition wider.  Das Technikgeschoss auf dem Dach ist mit Trapezblech verkleidet, die Aufenthaltsbereiche sind grossflächig verglast.

Impressionen
Pläne
Kenndaten
F27 C Foto Aussen Frontal
F27 C Foto Aussen
F27 C Foto Aussen Strasse
F27 C Foto Aussen 02
F27 C Foto Aussen Einfahrt Einstellhalle
F27 C Foto Innen Treppenhaus 02
F27 C Foto Innen Treppenhaus 01
F27 C Foto Innen Treppe
F27 C Foto Innen Büro Fenster
F27 C Foto Innen Küche

Alle Bilder anzeigen

F27 C Schwarzplan
F27 C Grundriss Erdgeschoss
F27 C Grundriss 1 2 Obergeschoss
F27 C Grundriss 3 Obergeschoss
F27 C Grundriss Dachgeschoss
F27 C Grundriss Untergeschoss
F27 C Längsschnitt
F27 C Querschnitte
F27 C Nord und Südfassaden
F27 C Ostfassade
F27 C Westfassade

Alle Pläne anzeigen

Typ

Industrie & Gewerbe

Ort

Aarau

Auftraggeber

Hanimob AG

Fertigstellung

2016

Gebäudevolumen

114'376 m³

Hauptnutzfläche

16‘505 m²

Fotograf

Felix Wey

Kopiert!