D23 Foto Aussen Südfassade 02

2010 | Industrie & Gewerbe

Fabrikationsgebäude Högg AG | Wattwil

Die Fabrikanlage für eine Metallbearbeitungsfirma wird als grosser Quader in die Flussebene gestellt und stirnseitig vom Dorf her erschlossen. Parallel zur Strasse erstreckt sich ein Gebäudekörper in Massivbauweise, der Administration und Produktionsräume beinhaltet. Dieser Neubau bildet das Gesicht des Betriebes zur Bahnlinie hin.

An diesem Rückgrat angedockt ist die Fabrikationshalle in Stahlbauweise, die sich bis zur Thur hin erstreckt. Der gesamte Hallenraum wird nebst umlaufenden Lichtbändern zusätzlich zenital über Oblichter erhellt.

Die Fassade ist geprägt durch einen Sockel in Sichtbeton, der als Schutz gegen Hochwasser dient. Über einem umlaufenden Fensterband "schwebt" ein Metallkörper. Dieser Körper tritt in Nordrichtung als grosszügiger gedeckter Bereich für den Warenumschlag in Erscheinung. Die Metallfassade wird mit einer starken Profilierung der Aluminiumbleche strukturiert. Das Dach ist extensiv begrünt und trägt somit der Aufsicht von den umliegenden Hügeln Rechnung. Die gesamte Organisation der Grundstruktur ist so angelegt, dass diese in Südrichtung erweitert werden kann.

Impressionen
Pläne
Kenndaten
D23 Foto Aussen Südostfassade
D23 Foto Aussen Nordostfassade 02
D23 Foto Innen Produktionshalle 01
D23 Foto Innen Produktionshalle 02
D23 Foto Innen Produktionshalle 03
D23 Foto Innen Produktionshalle 04
D23 Foto Innen Produktionshalle 05

Alle Bilder anzeigen

D23 HP Schwarzplan
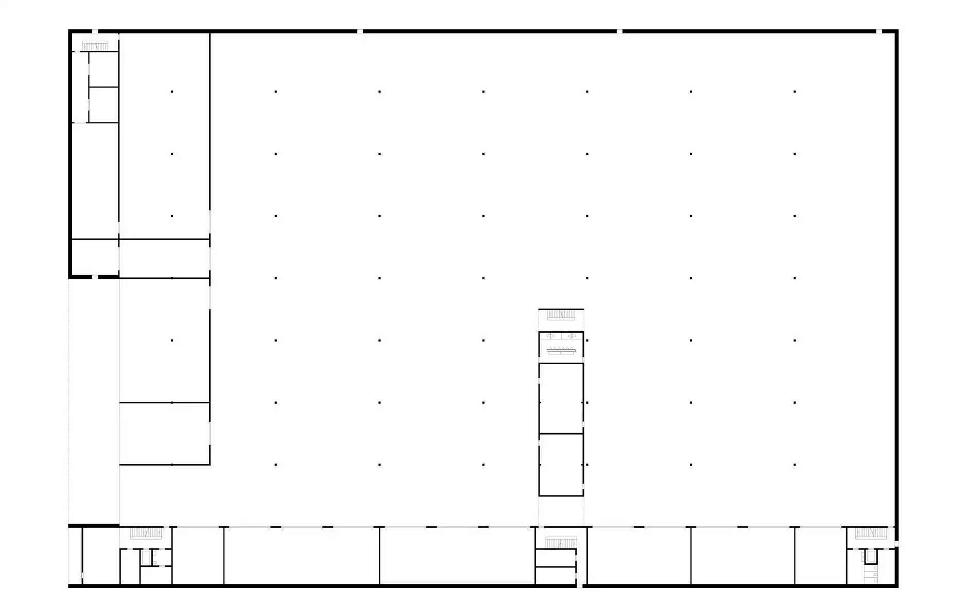
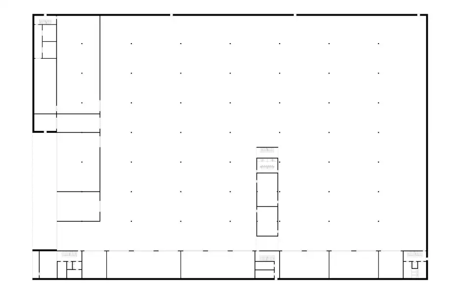
D23 HP Grundriss Erdgeschoss
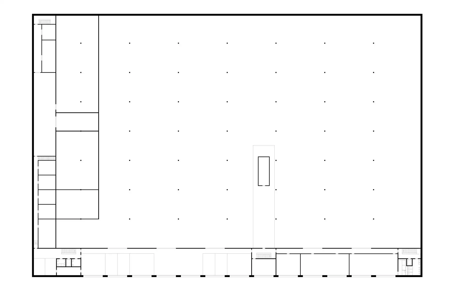
D23 HP Grundriss Obergeschoss
D23 HP Schnitt
D23 HP Fassade Nord
D23 HP Fassade Ost

Typ

Industrie & Gewerbe

Ort

Wattwil

Auftraggeber

Högg AG

Fertigstellung

2010

Gebäudevolumen

109'487 m³

Fotograf

Andrea Scavini

Kopiert!