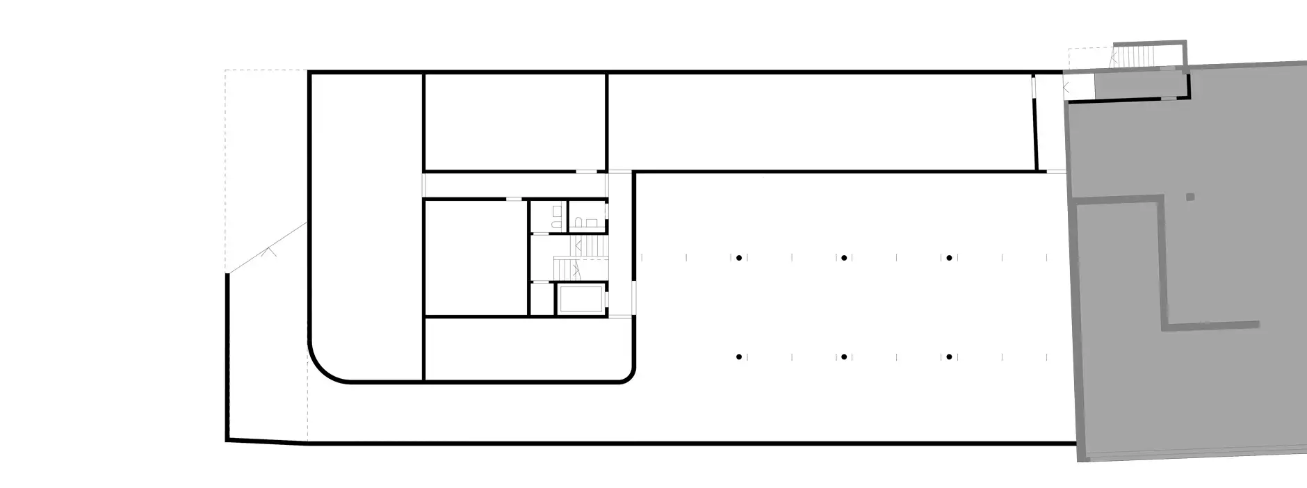
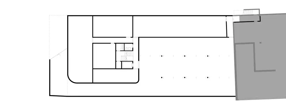
2013 | Industrie & Gewerbe
Erweiterung Urma AG | Rupperswil
Typ
Industrie & Gewerbe
Ort
Rupperswil
Auftraggeber
Urma AG
Fertigstellung
2013
Gebäudevolumen
10'741 m³
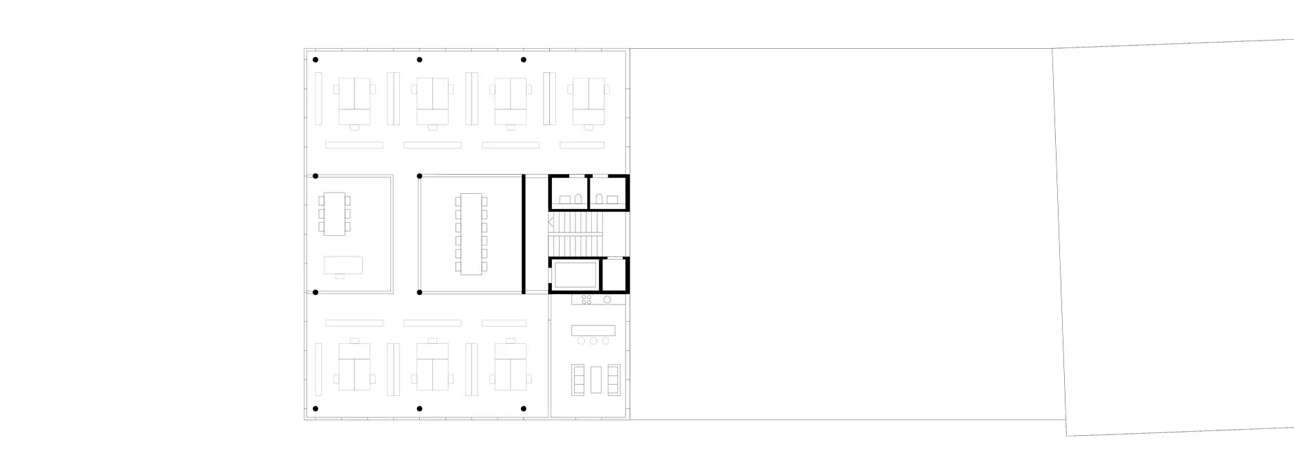
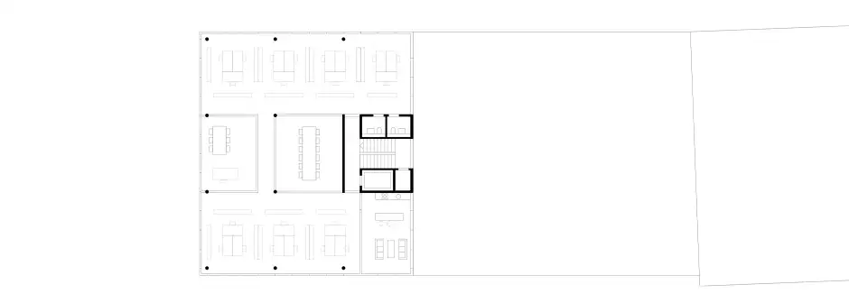
2013 | Industrie & Gewerbe
Typ
Industrie & Gewerbe
Ort
Rupperswil
Auftraggeber
Urma AG
Fertigstellung
2013
Gebäudevolumen
10'741 m³