F70 Foto Aussen Header

2014 | Industrie & Gewerbe

Energiezentrale Torfeld Nord | Aarau

Die Energiezentrale Torfeld liegt an der Bahnstrecke Zürich-Aarau-Bern. Sie nimmt eine Torfunktion für Aarau ein, da es sich von Osten kommend um das erste grössere Gebäude handelt. Seine expressive Volumetrie, die sich aus den funktionalen Anforderungen ergibt, trägt dieser Lage Rechnung und schafft eine Landmarke. Der 28 Meter hohe, markante Kamin ist der Bahn zugewandt und verleiht dem Bau seine Dominanz. Der Bau ist ein Monument für eine zeitgemässe Energieproduktion, enthält sich aber jeglicher Überhöhung und will nicht mehr sein als ein intelligentes Abbild seiner betrieblichen Rahmenbedingungen.

Die Energiezentrale ist auf Grund der technischen und statischen Anforderungen ein reiner Betonbau. Um die Verschmutzung der Fassade durch den Flugrost der Bahnlinie zu minimieren und die skulpturale Gebäudeform zu stärken, wurde der Beton schwarz eingefärbt.

Impressionen
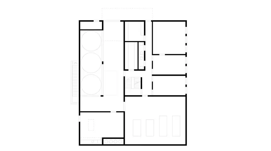
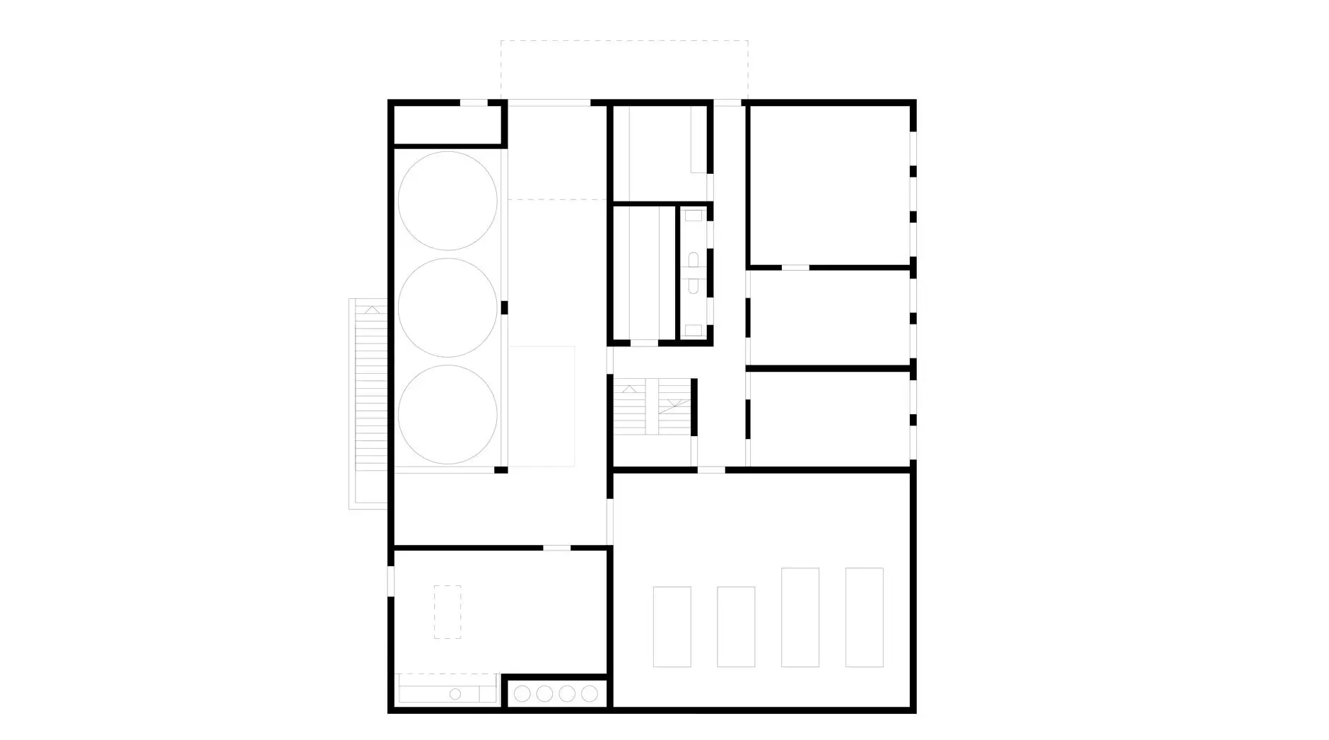
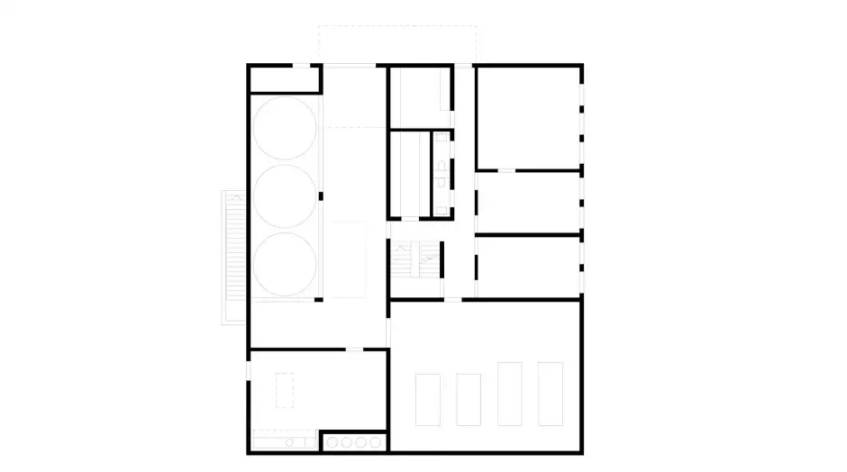
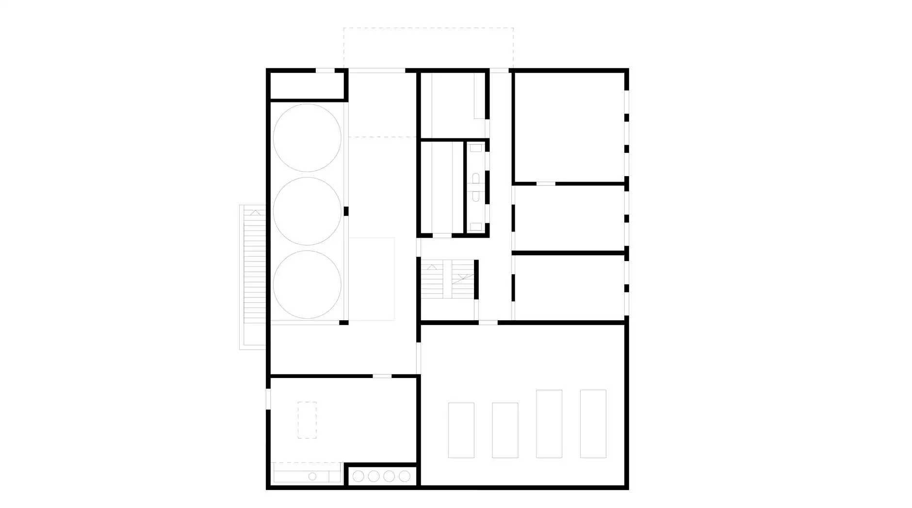
Pläne
Kenndaten
F70 Foto Aussen Bahngleise 01
F70 Foto Aussen 02
F70 Foto Aussen Frontal Eingang
F70 HP Schwarzplan
F70 HP Grundriss Erdgeschoss
F70 HP Grundriss 1 Obergeschoss
F70 HP Grundriss 2 Obergeschoss
F70 HP Grundriss Untergeschoss
F70 HP Schnitt 01
F70 HP Schnitt 02
F70 HP Nordfassade
F70 HP Ostfassade
F70 HP Südfassade
F70 HP Westfassade

Alle Pläne anzeigen

Typ

Industrie & Gewerbe

Ort

Aarau

Auftraggeber

IBAarau Wärme AG

Fertigstellung

2014

Gebäudevolumen

6'261 m³

Hauptnutzfläche

875 m²

Fotograf

Daniel Erne

Kopiert!