2002 | Wohnen
Einfamilienhaus P | Oberrohrdorf
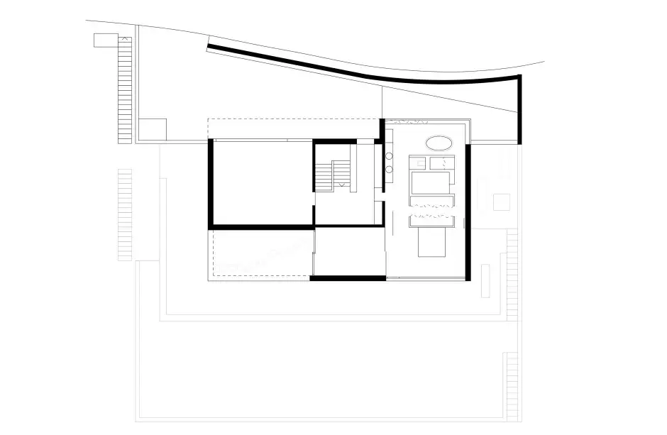
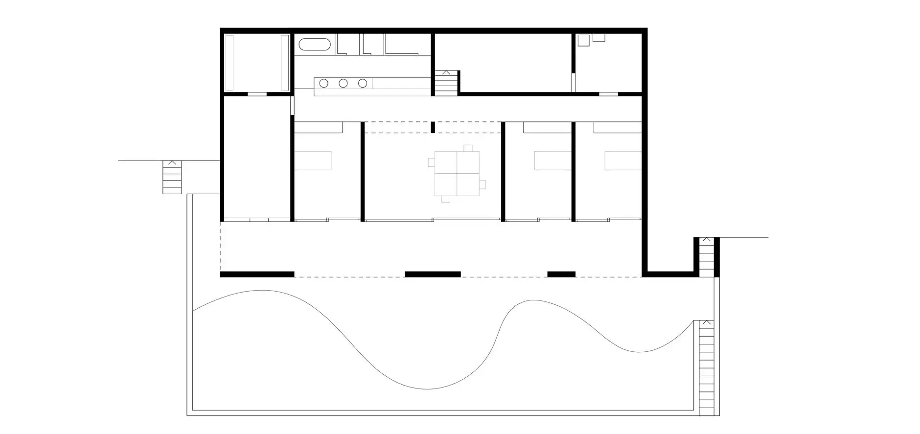
Das Haus steht zwischen anderen Einfamilienhäusern auf einem stark nach Süden und leicht nach Westen abfallenden Grundstück an exponierter Lage mit Ausblick in die Alpen. Der Körper ist der Topographie entsprechend zurück gestaffelt und in drei horizontale Schichten unterteilt.
Die Weitsicht bestimmt zusammen mit den Himmelsrichtungen die Ausrichtung der Räume und deren Öffnungen. Die Zugangsseite im Norden bleibt bis auf das Bad fensterlos. Die übrigen Fassaden gewähren selektive Ausblicke und öffnen sich mit grossen Glasfronten nach Süden, Westen und Osten.
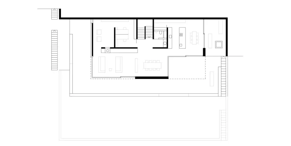
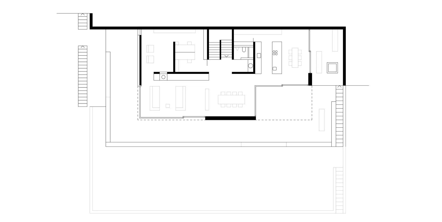
Im Eingangsbereich und in der Ankleide bringen grosse Öffnungen im Dach Licht in die Räume. Das Gebäude lebt vom Kontrast unterschiedlicher Räume und Raumstimmungen. Die Aussenräume leben ebenfalls von der Spannung zwischen weiten und engen Räumen. Die formale Sprache ist auf das absolute Minimum reduziert. Weit auskragende Gebäudeteile, Ein- und Ausbuchtungen prägen den Körper.
Mit seiner minimalistischen Architektur, den schlichten Materialen sowie der Umgebungsbepflanzung wirkt das Haus ruhig und besinnlich und lässt den vom Bauherrn gewünschten japanischen Charakter anmuten.
Typ
Wohnen
Ort
Oberrohrdorf
Auftraggeber
Privat
Fertigstellung
2002
Gebäudevolumen
2'433 m³
Fotograf
Daniel Roznovjak, Toni Leimer