C24 Foto Aussen Westfassade

2006 | Industrie & Gewerbe

Blumenmarkt | Rothrist

Das übergeordnete Ziel war die Erstellung eines zeitgemässen, kostengünstigen Gebäudes für die Blumenbörse Rothrist unter Berücksichtigung der spezifischen Anforderungen eines modernen Blumenmarktes.

Die Positionierung in unmittelbarer Nähe der Kantonsstrasse und dem Autobahnkreuz A1/A2 sowie die kompakte Form tragen dazu bei, dass die An- und Ablieferung, die innere Organisation sowie die Arbeitsabläufe optimiert werden konnten. Die Rohbaukosten des Untergeschosses konnten auf ein Minimum reduziert werden, indem die zur Abspriessung der Böschung notwendigen Stahl-Larsen direkt als Kellerwand verwendet wurden.

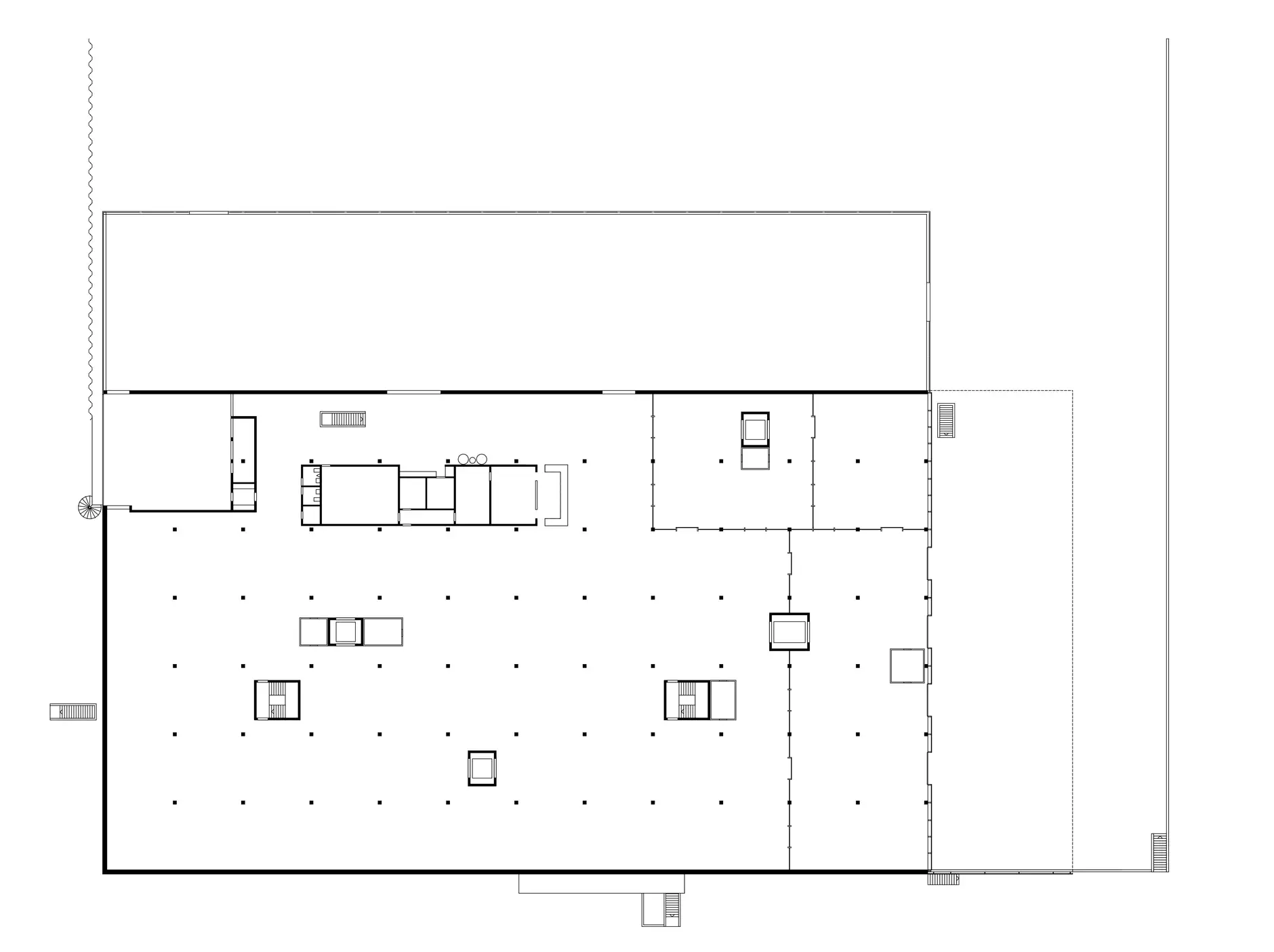
Der Neubau besteht aus einem in Beton erstellten rechteckigen Körper. Das unbeheizte Unter-geschoss dient ausschliesslich der An- und Ablieferung sowie der Lagerung von Pflanzen und Gartenprodukten.

Im Gegensatz dazu steht die Verkaufsebene im Erdgeschoss, welche für den Kundenverkehr zugänglich und somit auch temperiert ist. In diesem Bereich befindet sich zudem eine Cafeteria, die Büros und ein knapp 200 m2 grosser Hörsaal. Das Erdgeschoss, inklusive Parkhalle, ist mit einer glasfaserverstärkten Lichtwellplatte ummantelt.

Um den ökologischen Anforderungen gerecht zu werden, ist ein Speichersee angelegt worden. Darin wird das Dachwasser gesammelt, welches zur Bewässerung der Pflanzen im Aussenbereich genutzt wird.

Impressionen
Pläne
Kenndaten
C24 Foto Aussen Westfassade
C24 Foto Aussen Nordfassade
C24 Foto Aussen Nordfassade Fassadendetail
C24 Foto Innen Oberlicht
C24 Foto Innen Treppenhaus
C24 Foto Innen Halle 02
C24 Foto Innen Halle 01
C24 Foto Innen Halle 04
C24 Foto Innen Halle 05
C24 Foto Innen Halle 03

Alle Bilder anzeigen

C24 HP Schwarzplan
C24 HP Grundriss Erdgeschoss
C24 HP Schnitt A
C24 HP Schnitt B
C24 HP Fassade Süd
C24 HP Fassade West

Typ

Industrie & Gewerbe

Ort

Rothrist

Auftraggeber

Blumenbörse Rothrist

Fertigstellung

2006

Gebäudevolumen

95'080 m³

Fotograf

Jean-Jacques Ruchti

Kopiert!