F54 Visualiserung Aussen Fassade

2015 | Industrie & Gewerbe

Büro Luzernerstrasse | Oftringen

Impressionen
Pläne
Kenndaten
F54 3 D Skizze Aussen Strasse 01
F54 HP Schwarzplan
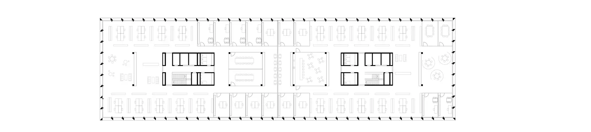
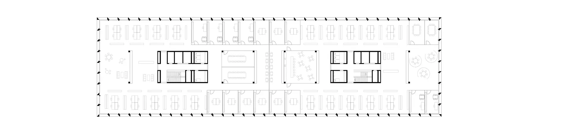
F54 HP Grundriss Erdgeschoss
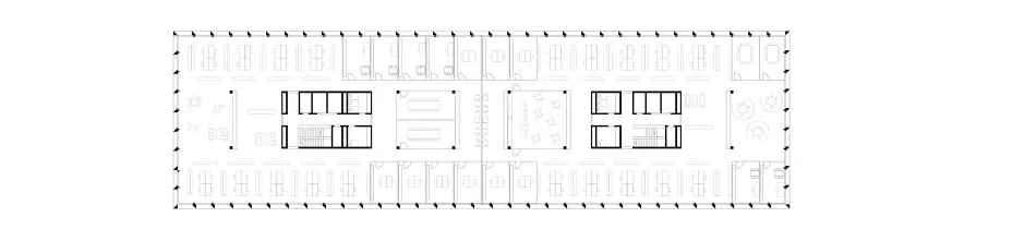
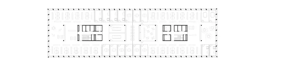
F54 HP Grundriss Obergeschosse
F54 HP Grundriss Attika
F54 HP Schnitt 1
F54 HP Schnitt 2
F54 HP Fassade Süd
F54 HP Fassade West

Alle Pläne anzeigen

Typ

Industrie & Gewerbe

Ort

Oftringen

Auftraggeber

Privat

Gebäudevolumen

54'831 m³

Hauptnutzfläche

1'842 m²

Kopiert!