2010 | Industrie & Gewerbe
Büro- und Produktionsgebäude WKA | Aarau
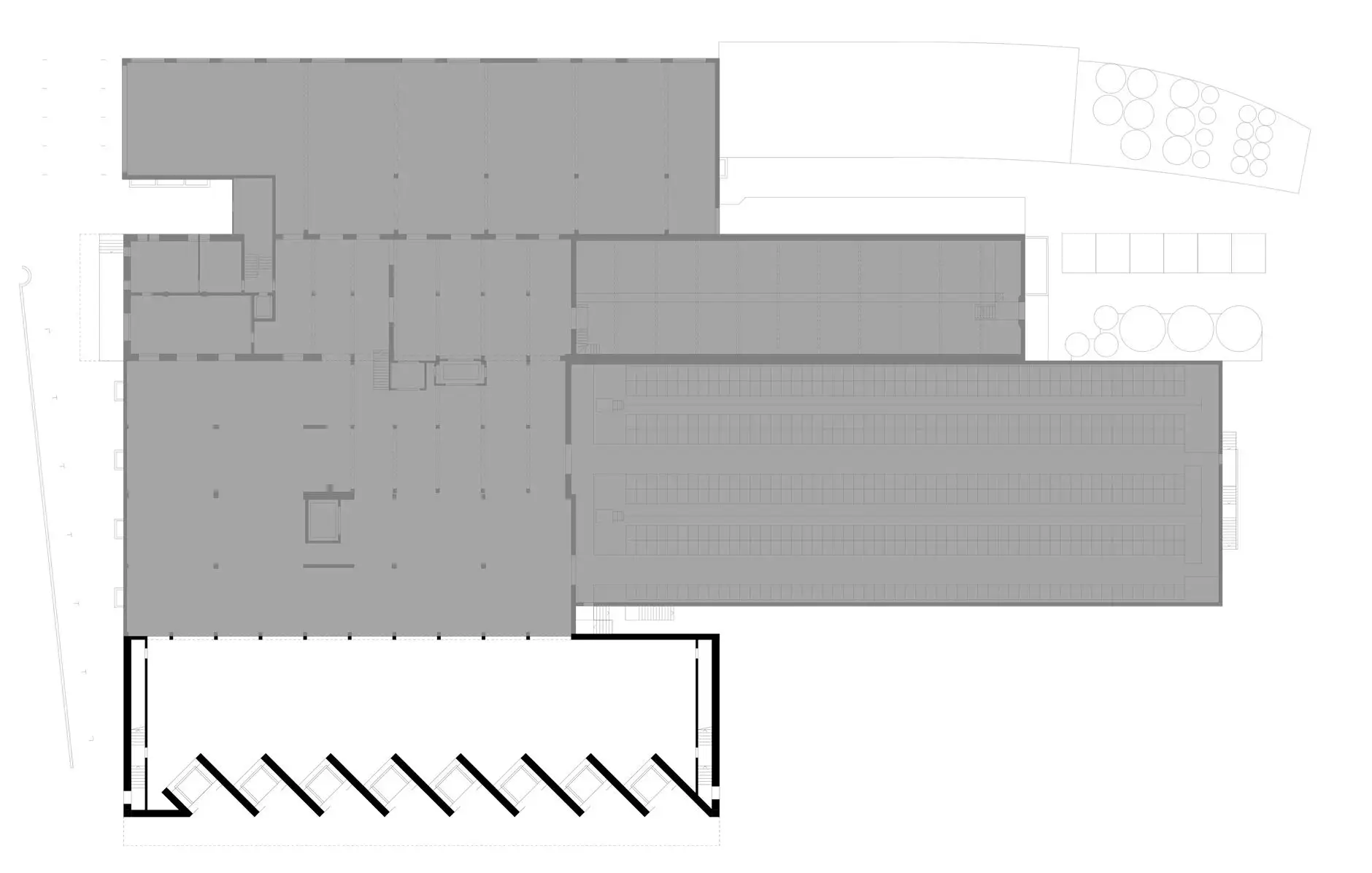
Die Bauten der Weinkellereien in Aarau wurden westseitig um ein Gebäude erweitert. Im Erdgeschoss des angebauten Neubauteils ist der Speditionsbereich mit acht neuen LKW-Andockstellen untergebracht. Im Obergeschoss befindet sich das Herzstück des ganzen Betriebes, die neue Abfüllhalle mit der Abfüllanlage. Der Grundriss der 7 m hohen, stützenfreien Halle wird von einer vorfabrizierten Betonrippenplattendecke überspannt.
Das ostseitig liegende Bürogebäude wurde zm zwei Etagen erweitert. Der neue Bürotrakt ist mit einem Verbindungsbauwerk an die Abfüllhalle angedockt. In diesem Verbindungstrakt befindet sich die Hauptschlagader des Betriebes in Form von Transportbändern, welche die Abfüllanlage via Vertikalförderer mit der Spedition und dem bestehenden Hochregallager verbindet. Während die neue Spedition in Analogie zur bestehenden Sockelbebauung in Ortbetonbauweise erstellt wurde, tritt die Abfüllhalle als aufgesetztes Volumen in Erscheinung. Diese Box orientiert sich in ihrer Materialisierung am bestehenden Bürotrakt. In Anspielung auf die im ganzen Betrieb präsenten Weinflaschen ist die Fassade mit einer Haut aus hinterlüfteten Profilitglasbahnen umhüllt. Ein über die ganze Gebäudelänge von 50 m verlaufendes Schaufenster bietet einen spektakulären Einblick auf die Szenerie der neuen Abfüllanlage.
Typ
Industrie & Gewerbe
Ort
Aarau
Auftraggeber
Weinkellereien Aarau
Fertigstellung
2010
Gebäudevolumen
14'905 m³