H54 A Foto Aussen Platz 03

2025 | Wohnen

Areal Mutschellen-Bolleri Nord | Rudolfstetten

Für den Projektperimeter bestand ein rechtskräftiger Gestaltungsplan. Die vorgesehenen Baufelder werden mit dem Fussabdruck der Gebäude, sowie mit ihrer Geschossigkeit komplett ausgeschöpft. Die Anordnung der beiden Baufelder schafft einen attraktiven städtischen Platz.

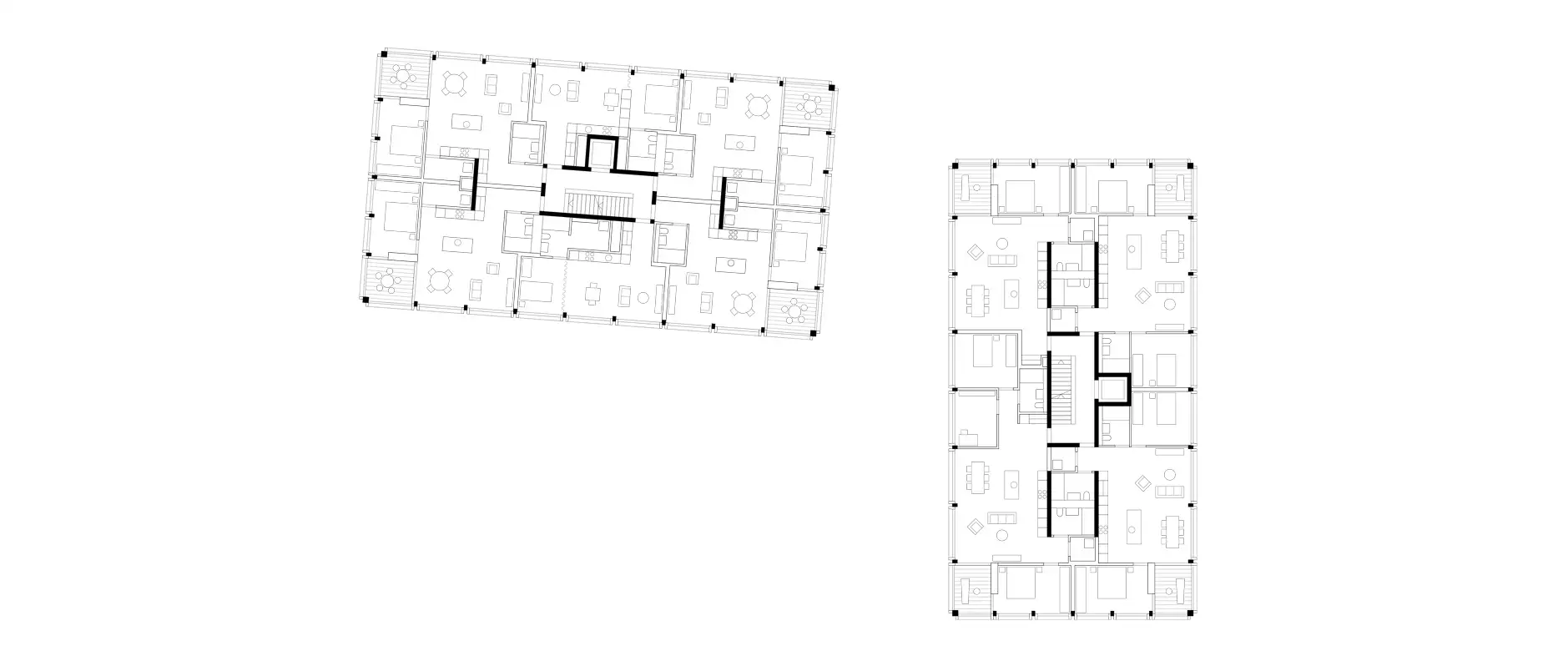
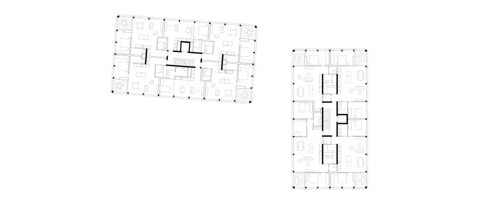
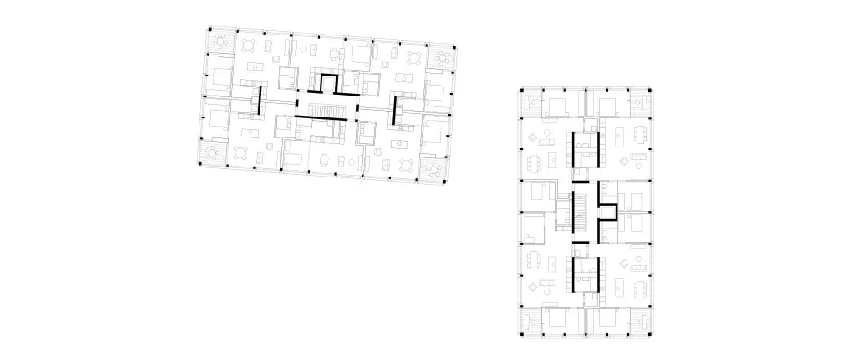
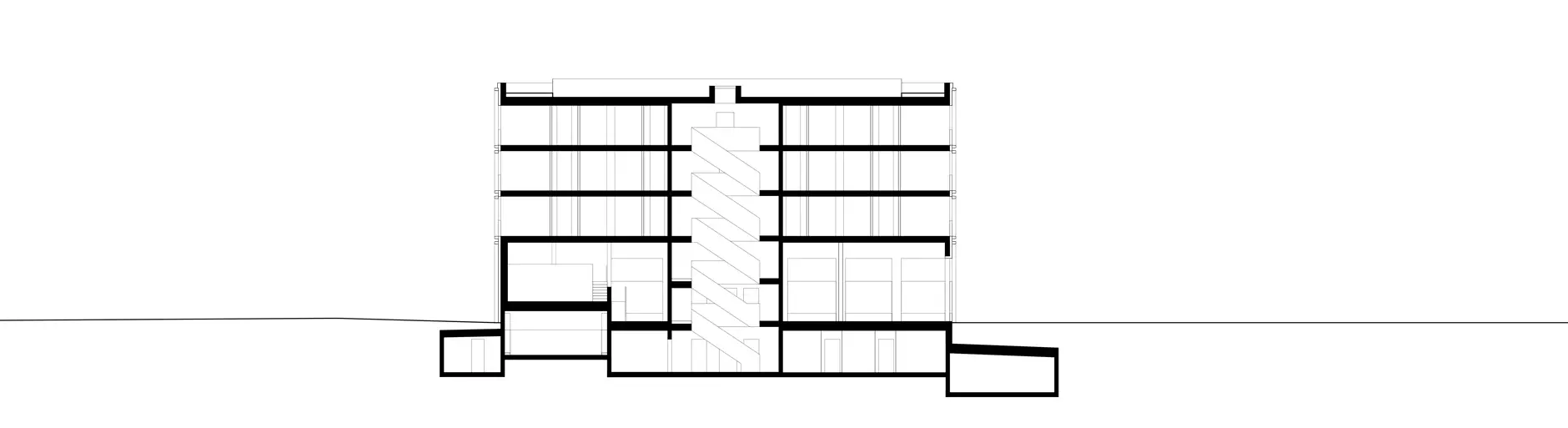
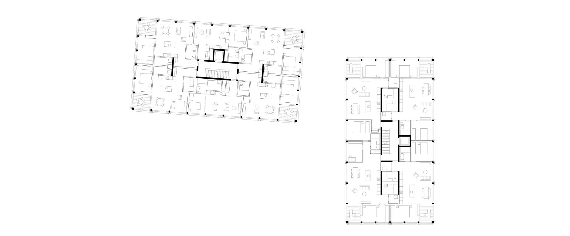
Das Haus A ist grundsätzlich als Sechsspänner, das Haus B als Vierspänner konzipiert. Durch das Zuschalten resp. Wegnehmen von Zimmern können jeweils eine unterschiedliche Anzahl und unterschiedliche Typen von Wohnungen generiert werden. Die Aussenräume der Wohnungen sind als Eckbalkone ausformuliert.

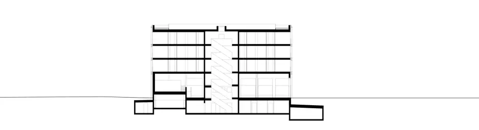
Der Zugang zu Haus A und Haus B sowie zu den Gewerbeflächen erfolgt über die dem Platz zugewandte Arkade. Die Zufahrt zur Tiefgarage erfolgt ganz im Nordosten der Parzelle und ist in das Haus B integriert. Sämtliche Innenparkplätze, Veloräume, Keller- und Technikräume sind in den Untergeschossen angeordnet. 

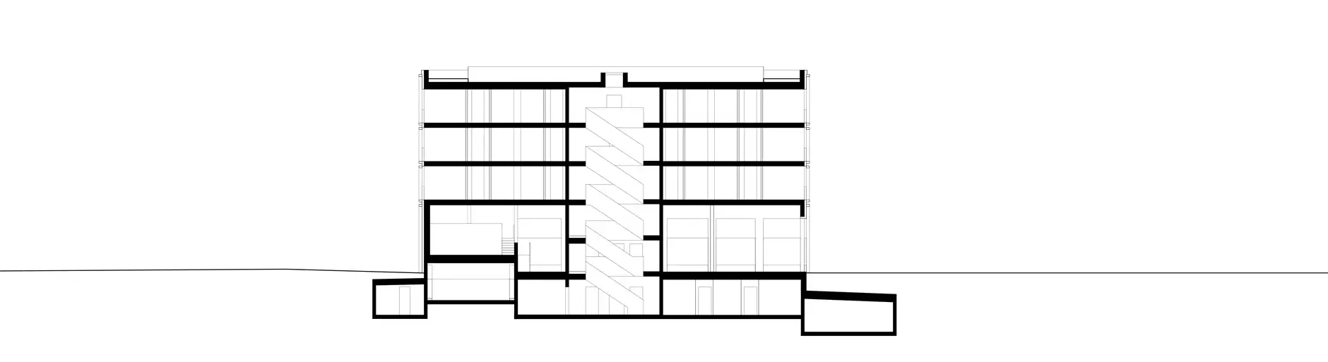
Die Fassaden sind einfach und zurückhaltend ausformuliert. Um einen «klassischen» Ausdruck der Fassaden zu erzielen, wurden diese in die drei Teile «Sockel», «Mitte» und «Dach» gegliedert. Der überhohe Sockel bindet das Erd- und das Galeriegeschoss zusammen. Darüber liegen die mittleren Geschosse und den Abschluss bildet ein überhohes oberstes Geschoss. Die Überhöhe dieses Geschosses resultiert aus einer Brüstung, welche im Haus B zugleich die Absturzsicherung des begehbaren Dachgartens bildet.

Die Materialisierung der Fassade besteht aus dunkel eloxiertem Aluminium. Die Füllungen der „Rahmen“ sind mit opaken und durchsichtigen Glaselementen realisiert.

Impressionen
Pläne
Kenndaten
H54 A Foto Aussen Platz 02
H54 A Foto Aussen Platz 03
H54 A Foto Aussen Einfahrt 02
H54 A Foto Aussen Platz 01
H54 A Foto Aussen Fassade 05
H54 A Foto Aussen Einfahrt 01
H54 A Foto Aussen 01
H54 A Foto Aussen Fassade 02
H54 A Foto Aussen Fassade 03
H54 A Foto Aussen Fassade 04
H54 A Foto Aussen Arkade 01
H54 A Foto Aussen Arkade 02
H54 A Foto Innen Raum Küche Insel 05
H54 A Foto Innen Raum Küche Insel 01
H54 A Foto Innen Raum Küche Insel 04
H54 A Foto Innen Loggia 01
H54 A Foto Innen Raum Küche Insel 03
H54 A Foto Innen Raum Küche Insel 02
H54 A Foto Innen Raum Fenster 04
H54 A Foto Innen Raum Küche 01
H54 A Foto Innen Treppenhaus Treppenlauf
H54 A Foto Innen Treppenhaus Oberlicht Treppenauge
H54 A Foto Innen Treppenhaus Oberlicht

Alle Bilder anzeigen

H54 A HP Schwarzplan
H54 A HP Grundriss Erdgeschoss
H54 A HP Grundriss 1 3 Obergeschoss
H54 A HP Grundriss 4 Obergeschoss
H54 A HP Grundriss 5 7 Obergeschoss
H54 A HP Grundriss 1 Untergeschoss
H54 A HP Grundriss 2 Untergeschoss
H54 A HP Schnitt 1
H54 A HP Schnitt 2
H54 A HP Fassade Nord
H54 A HP Fassade Ost
H54 A HP Fassade Süd
H54 A HP Fassade West

Alle Pläne anzeigen

Typ

Wohnen

Ort

Rudolfstetten

Auftraggeber

Konsortium Mutschellen-Bolleri

Fertigstellung

2026

Wettbewerb

1. Rang, 2020

Gebäudevolumen

25'450 m³

Hauptnutzfläche

4'105 m²

Kopiert!