D08 Foto Innen Wohnen Treppe Header

2011 | Wohnen

Altstadtwohnungen Rain | Aarau

In zwei alten, zum Teil unternutzten Liegenschaften im Zentrum von Aarau wurden 3 grosse Loftwohnungen eingebaut.

Loft 1: Im 1. Obergeschoss befindet sich die 268m² grosse Wohnung. Die ehemalige Trennung der zwei Häuser, über die sich die Wohnung erstreckt, charakterisiert noch heute das Bild der Wohnung. Der Wohn-/Essbereich und die Küche sind vom höher liegenden Schlaf- und Badbereich räumlich abgesetzt. Zusätzliche Wohnfläche findet sich im zurückliegenden Teil des Gebäudes. An diese schliesst eine gut 100m² grosse Terrasse an. Die überdurchschnittlich grossen Räume verleihen ein einzigartiges Raumgefühl.

Loft 2: Auf insgesamt 213m² bietet diese Wohnung im 2. Obergeschoss Platz für grosszügiges Wohnen. Diese Wohnung ist vom Grundsatz her gleich aufgebaut wie Loft 1. Eine etwa 60m² grosse Terrasse mit gedecktem Sitzplatz erweitert den Wohnraum nach aussen.

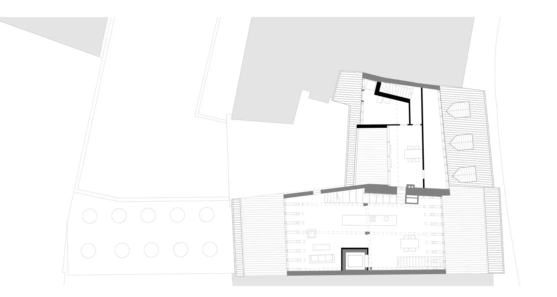
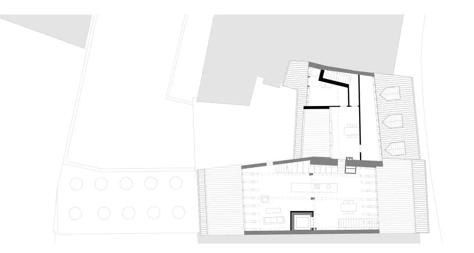
Loft 3: Über insgesamt drei Geschosse erstreckt sich diese Dachgeschosswohnung. Der Eingangsbereich liegt zusammen mit dem Wohn-/Essbereich und der Küche auf dem mittleren Niveau, dem zweiten Dachgeschoss. Von hier aus erreicht man über eine interne Treppe oder über den wohnungsinternen Lift die im 1. Dachgeschoss liegenden Schlaf- und Badbereiche. Im 3. Dachgeschoss, oberhalb des Wohnbereichs, befindet sich die Bibliothek. Seinen urtümlichen Charakter erhält die Maisonettewohnung durch die Dachschrägen mit den sichtbaren Holzbalken.

Impressionen
Pläne
Kenndaten
D08 Foto Innen Dachstock 02
D08 Foto Innen Treppenaufgang
D08 Foto Innen Nasszelle
D08 Foto Innen Dachstock 01
D08 Foto Innen Wohnbereich Küche 01
D08 Foto Innen Terrasse
D08 HP Schwarzplan
D08 HP Grundriss Erdgeschoss
D08 HP Grundriss Obergeschoss
D08 HP Grundriss Dachgeschoss
D08 HP Schnitt A
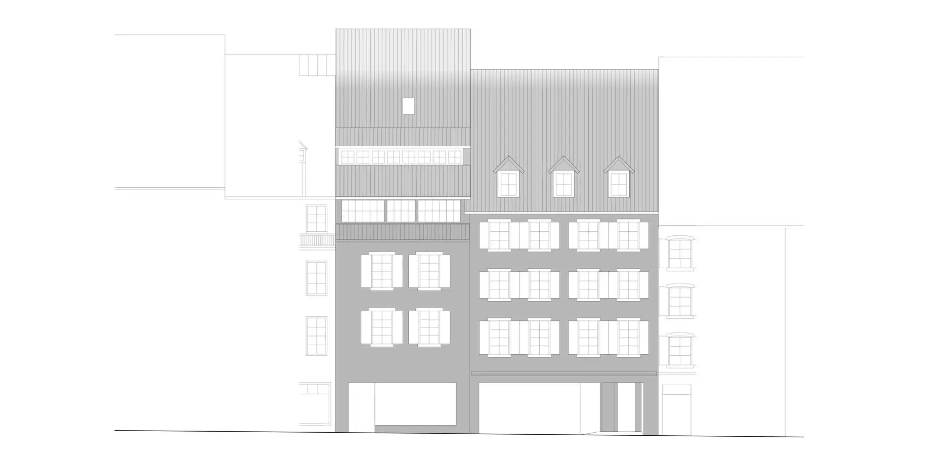
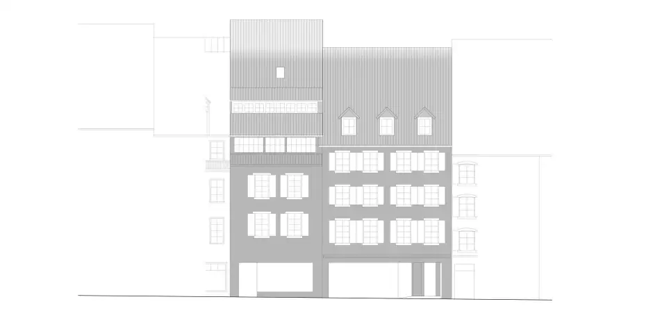
D08 HP Fassade Nordost
D08 HP Fassade Südwest

Alle Pläne anzeigen

Typ

Wohnen

Ort

Aarau

Auftraggeber

Privat

Fertigstellung

2011

Fotograf

Roger Frei

Kopiert!