2008 | Öffentliche Gebäude
Alterszentrum Wehntal | Schöfflisdorf
Analog den längs zum Hang gebauten Häusern reiht sich auch der Neubau des Alterswohnheims Wehntal mit seinem Satteldach nahtlos in die bestehende Dorfstruktur ein. Zwischen dem bestehenden Altersheim und dem Neubau wird ein grosszügiger öffentlicher Aussenraum aufgespannt.
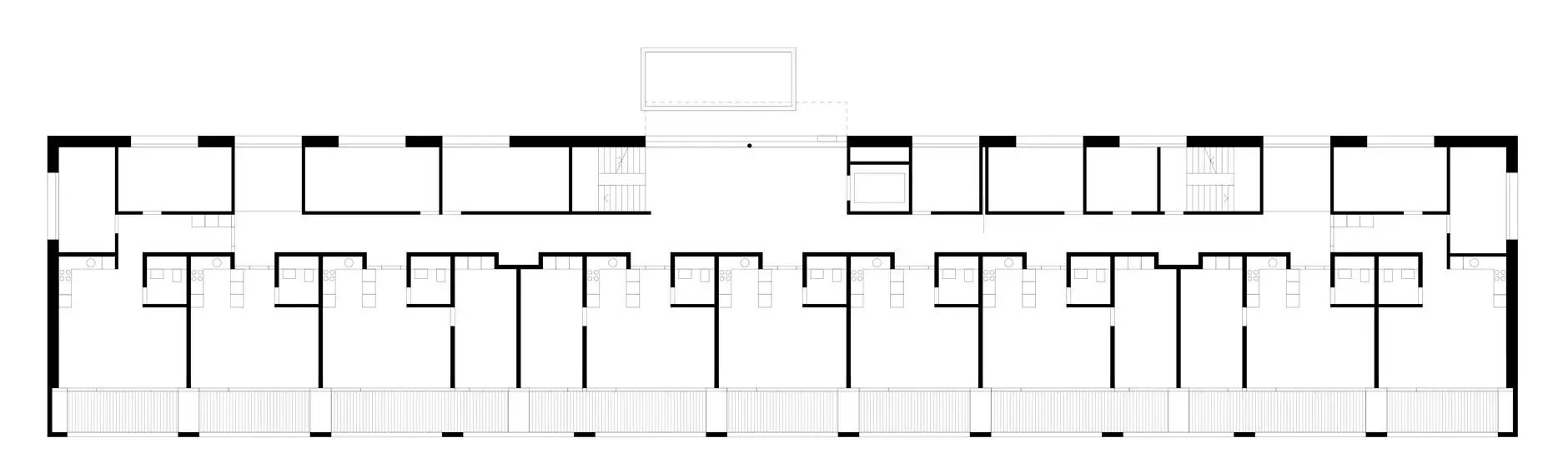
Der Neubau mit den 26 Alterswohnungen wird vom Chileweg im mittleren Geschoss erschlossen. Ein strassenseitiges Rückgrat beinhaltet eine Zone mit Erschliessung, Aufenthaltsbereichen sowie Disponibelräumen. Über den natürlich belichteten Gangbereich werden sämtliche Räume und Wohnungen erschlossen. Der Erschliessungsbereich des Gartengeschosses wird hangseitig über einen zentralen Hof sowie über die endständig angeordneten Lufträume belichtet.
Sämtliche Wohnungen sind talseitig auf eine vorgelagerte Balkonschicht orientiert. Eine entlang des Korridors verlaufende Betonstruktur beinhaltet die Haustechniksteigzonen. Sämtliche Wohnungs- und Zimmertrennwände sind in Leichtbauweise konzipiert um eine langfristige Entwicklung des Gebäudes (allfällige Umnutzung zu Pflegeheim) nicht zu beeinträchtigen.
Die neuen Alterswohnungen werden via neu erstellter unterirdischer Einstellhalle und einem Verbindungskorridor mit dem bestehenden Altersheim verbunden. Im bestehenden Altersheim wurde, neben mehreren kleineren Eingriffen, der bestehende Speisesaal um einen Cafeteriabereich erweitert. Durch diese Massnahme erhält das Altersheim ein völlig neues Gesicht zur Strasse.
Typ
Öffentliche Gebäude
Ort
Schöfflisdorf
Auftraggeber
Stiftung Alterszentrum
Fertigstellung
2008
Gebäudevolumen
8'800 m³
Fotograf
Roger Frei