I14 Visualisierung Aussen Header

2025 | Wohnen

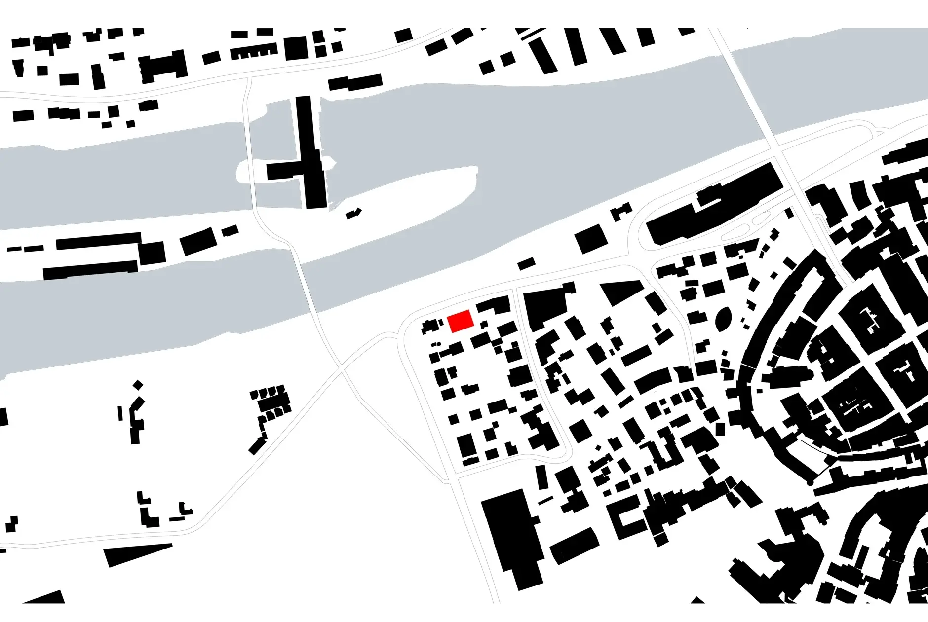
Überbauung Schiffländestrasse | Aarau

Auf der Parzelle an der Schiffländestrasse steht heute ein kleines Mehrfamilienhaus mit einem angebauten Garagenbetrieb. Das Gebäude soll durch einen zeitgemässen Neubau ersetzt werden. Dieser soll auf drei Voll- und einem Attikageschoss eine reine Wohnnutzung beinhalten.

Der Neubau ist vertikal in drei Teile gegliedert. Über einem zurückversetzten Erdgeschoss liegt ein 2-geschossiger Betonquader, der durch runde Bögen in der Fassadenebene getragen wird. Darüber liegt ein allseitig zurückgesetztes Attikageschoss, das mit Aluminium verkleidet wird. Der Neubau steht parallel zur Strasse und orientiert sich mit den Hauptwohnseiten nach Süden.

Impressionen
Pläne
Kenndaten
I14 Visualisierung Aussen
I14 HP Schwarzplan
I14 HP Grundriss Erdgeschoss
I14 HP Grundriss 1 2 Obergeschoss
I14 HP Grundriss Attika
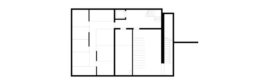
I14 HP Grundriss Untergeschoss
I14 HP Längsschnitt
I14 HP Querschnitt
I14 HP Fassade Nord
I14 HP Fassade Ost
I14 HP Fassade Süd
I14 HP Fassade West

Alle Pläne anzeigen

Typ

Wohnen

Ort

Aarau

Auftraggeber

Privat

Gebäudevolumen

5'970 m³

Hauptnutzfläche

727 m²

Kopiert!